208 - 2875 14th Avenue, Markham, Ontario L3R 0H9

Listed for:
$18
0 beds
2 baths
Listed 1 day ago
Offices for rent: 208 - 2875 14th Avenue, Markham, Ontario L3R 0H9

View all 22 photos

Learn more about this property
Listing provided by:
CENTURY 21 HERITAGE GROUP LTD.
MLS® number:
N12519730
Agent:
Babak Poorgholam Mahammadi
*Indicates required field
Name is required
Email is required
Please enter a valid phone number (e.g., 416-111-1111).

About

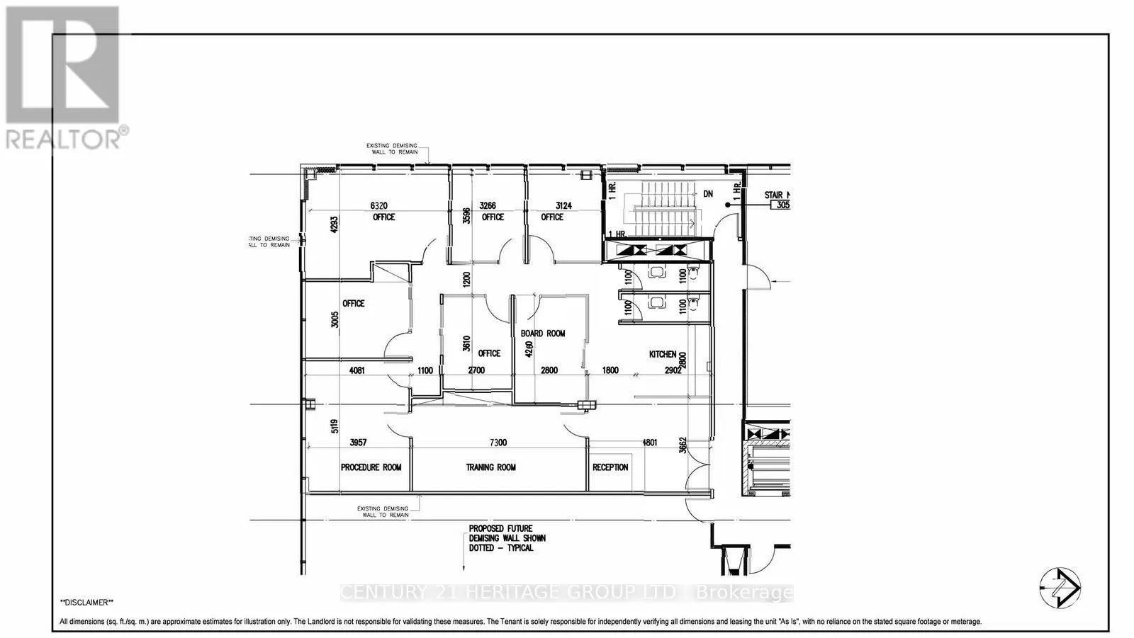
Woodbine/Fourteenth Ave W Calling All Professionals! Lease this newly finished, highly upgraded, modern office in a prime commercial building with EMP-GE (Employment - General Employment) zoning (City report available upon request). This desirable corner unit is situated on the 2nd floor, boasting exceptional natural light, porcelain tile flooring throughout, and extensive professional millwork complemented by a large glass entry door.Enjoy top-tier amenities, including a newly built kitchenette complete with a dishwasher,two-door fridge, and microwave, plus the convenience of two separate washrooms featuring great vanities, touchless light switches, a touchless faucet, and a hot water bidet. Furthermore, the unit is professionally wired for 16 phone extensions and 18 data/internet plugs, ensuring immediate and robust connectivity.Hydro and Gas are extra. Parking is premium, featuring two (2) reserved parking spots plus plenty of common surface parking for all visitors and staff.This unit is perfectly suited for professional services such as lawyers, accountants, mortgage brokers, insurance brokers, and tutors. Benefit from a very convenient location with easy access to Highways 404, 407, and 401, and close proximity to major amenities like Costco, Home Depot, Staples, and banks. Move-in ready with flexible lease terms available-don't miss this opportunity! (id:27476)

Property Highlights

MLS® Number
N12519730
Type
Office
Community Name
Milliken Mills West

Building

Building Type
Offices
Square Footage
2750 sqft
Bathrooms Total
2
Fireplace Present
No
Basement Type
Basement Features
Building Heating Type
Forced air
Heating Fuel
Natural gas
Building Cooling Type
Fully air conditioned

Utilities

Water
Municipal water

Location

Community Spotlight: Homes For lease in Your Neighborhood