232 - 68 Main Street N, Markham, Ontario L3P 0N5

Listed for:
$758,000
3 beds
2 baths
Listed 48 days ago
Apartment for rent: 232 - 68 Main Street N, Markham, Ontario L3P 0N5

View all 50 photos

Learn more about this property
Listing provided by:
CENTURY 21 LEADING EDGE REALTY INC.
MLS® number:
N12567658
Agent:
Sylvia Morris
*Indicates required field
Name is required
Email is required
Please enter a valid phone number (e.g., 416-111-1111).

About

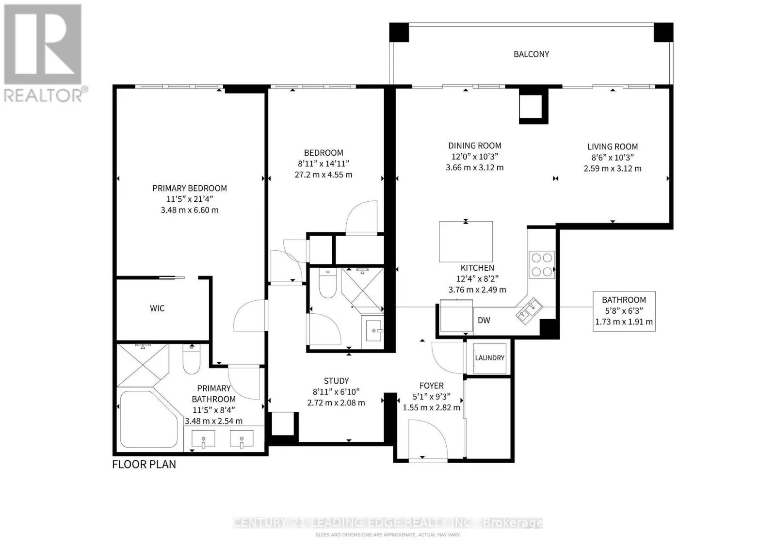
Cross Streets: Hwy.7/Markham Rd. ** Directions: Just North Of Hwy.7 On Main Street North, Turn Left At Second Cup To Get To Building Lobby. This Rare Gem Is Located In An Amazing Boutique Building Located At 68 Main Street North, Nestled In The Heart Of Historic Markham Village. This North Facing Spacious 2 Bedroom Plus Study Suite Has Approx. 9ft Ceilings, Roughly 1,106 SF Of Luxury, Floor To Ceiling Windows, White Kitchen And Has 2 Walk-Outs To A Large Balcony From The Living Room And Dining Room. Looks Like A Model Home And Offers Amenities: A Rooftop Patio For Those Amazing BBQ's, An Exercise Room, Party Room, And Wonderful Guest Suites. This Condo Unit Boasts Of 9ft Ceilings, Very Quiet Complex, Walk To Shopping, Cafes And Wonderful Restaurants. Walk To GO Train Station To Toronto, Minutes Away From 407ETR, Parks, Schools And Much More! Enjoy All The Charm And Character Of One Of Ontario's Most Historic Communities While Just Steps Away From Modern Amenities. Don't Miss Out! (id:27476)

Property Highlights

MLS® Number
N12567658
Type
Single Family
Community Name
Old Markham Village
Maintenance Fee
882.71
Ownership Type
Condominium/Strata
Parking Space Total
1

Building

Building Type
Apartment
Square Footage
1000 - 1199 sqft
Bathrooms Total
2
Bedrooms Above Ground
2
Bedrooms Total
3
Amenities
Security/Concierge, Party Room, Exercise Centre Hospital, Park, Public Transit
Exterior Finish
Brick
Fireplace Present
No
Basement Type
None
Basement Features
Building Heating Type
Heat Pump, Not known
Heating Fuel
Electric
Building Cooling Type
Central air conditioning

Location

Street Spotlight - For sale