1807 - 18 Water Walk Drive, Markham, Ontario L3R 6L5

Listed for:
$2,500
2 beds
2 baths
Listed 19 days ago
Apartment for rent: 1807 - 18 Water Walk Drive, Markham, Ontario L3R 6L5

View all 16 photos

Learn more about this property
Listing provided by:
EXP REALTY
MLS® number:
N12632202
Agent:
Eko Liu
*Indicates required field
Name is required
Email is required
Please enter a valid phone number (e.g., 416-111-1111).

About

Highway 7 & Warden Prime Location In The Heart Of Markham On Hwy 7. This Luxurious Riverview Condo Building Is The Newest Addition To The Markham Skyline. Spacious and Efficient One-Bedroom plus Den (w' door, can be 2nd bedroom). Steps To Whole Foods, LCBO, GO train station, VIP Cineplex, Good Life And Much More. Minutes To Main St. Unionville, Public Transit Right In Front, Minutes To Highway 407 & 404. (id:27476)

Property Highlights

MLS® Number
N12632202
Type
Single Family
Community Name
Unionville
Ownership Type
Condominium/Strata
Parking Space Total
1

Building

Building Type
Apartment
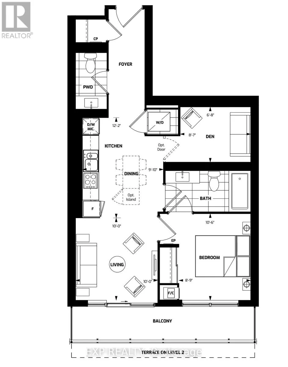
Square Footage
600 - 699 sqft
Bathrooms Total
2
Bedrooms Above Ground
1
Bedrooms Total
2
Amenities
Exercise Centre, Party Room, Visitor Parking, Storage - Locker, Security/Concierge Public Transit, Park, Schools
Exterior Finish
Brick
Fireplace Present
No
Basement Type
None
Basement Features
Building Heating Type
Coil Fan
Heating Fuel
Other
Building Cooling Type
Central air conditioning

Location

Street Spotlight - For rent