A636 - 9763 Markham Road, Markham, Ontario L6E 0W4

Listed for:
$2,499
2 beds
2 baths
Listed 1 day ago
Apartment for rent: A636 - 9763 Markham Road, Markham, Ontario L6E 0W4

View all 17 photos

Learn more about this property
Listing provided by:
RE/MAX GOLD REALTY INC.
MLS® number:
N12652778
Agent:
Raj Dhawan
*Indicates required field
Name is required
Email is required
Please enter a valid phone number (e.g., 416-111-1111).

About

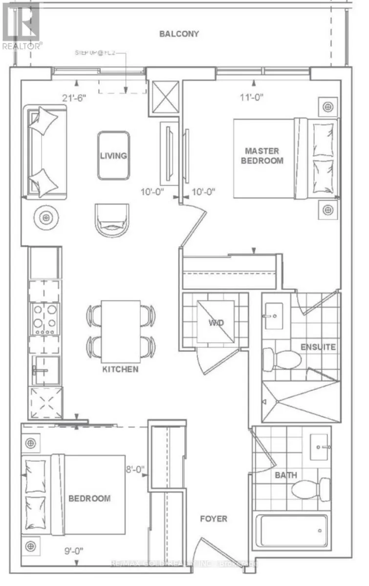
Markham Rd & Castlemore Ave Brand new 2 bed, 2 bath condo at Joy Station Condos in a highly desirable Markham neighbourhood, just steps to Mount Joy GO Station, shopping, dining, parks, grocery stores, and everyday essentials, with quick access to major highways. Ideal for professionals, couples, or downsizers seeking a modern, turnkey home with 667 sq. ft. of efficient living space plus a 70 sq. ft. balcony featuring clear, unobstructed south-facing views. Functional open-concept layout with floor-to-ceiling windows, stainless steel appliances, and stone countertops. Primary bedroom includes a spacious closet and private ensuite. Building amenities include a children's play area, fitness centre, games room, guest suite, party room with private dining area, pet wash, golf simulator, rooftop terrace, and 24-hour concierge. (id:27476)

Property Highlights

MLS® Number
N12652778
Type
Single Family
Community Name
Greensborough
Maintenance Fee
0.00
Ownership Type
Condominium/Strata
Parking Space Total
1

Building

Building Type
Apartment
Square Footage
600 - 699 sqft
Bathrooms Total
2
Bedrooms Above Ground
2
Bedrooms Total
2
Amenities
Party Room, Security/Concierge, Recreation Centre, Exercise Centre, Visitor Parking Public Transit
Exterior Finish
Concrete, Brick
Fireplace Present
No
Basement Type
None
Basement Features
Building Heating Type
Forced air
Heating Fuel
Natural gas
Building Cooling Type
Central air conditioning

Location

Street Spotlight - For rent