37 Main Street, Markham, Ontario L3R 2E5

Listed for:
$4,180,000
0 beds
0 baths
Listed 34 days ago
37 Main Street, Markham, Ontario L3R 2E5

View all 3 photos

About

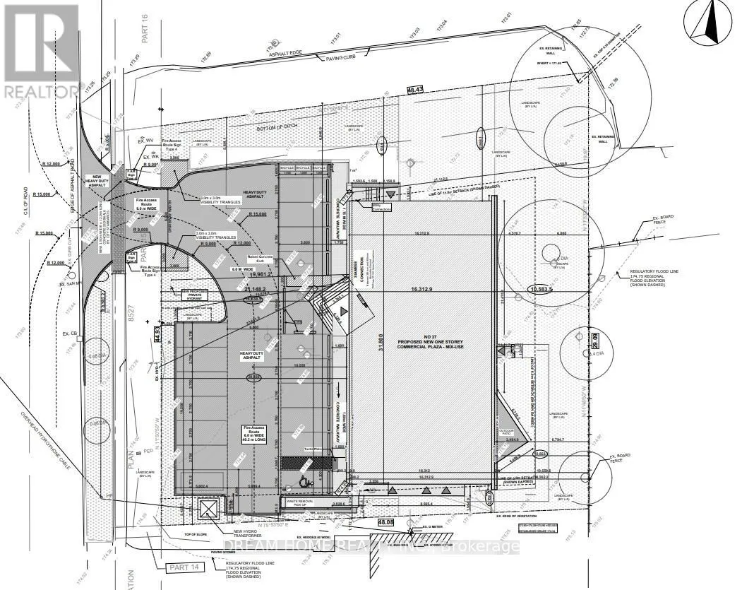
Kennedy/Hwy 407 Rarely offer Vacant Commercial land (0.6 Acres) in Prime Unionville Community. A 2 Story Plaza Building with 18 parking spots has been approved. All approved permit drawings, consultation report and design are included. (id:27476)

Property Highlights

MLS® Number
N12687482
Type
Vacant Land
Community Name
Unionville
Land Size
0.588 ac

Building

Square Footage
1 ac
Fireplace Present
No
Basement Type
Basement Features
Building Heating Type
Heating Fuel
Building Cooling Type

Utilities

Water
Municipal water

Location

Learn more about this property
Listing provided by:
DREAM HOME REALTY INC.
MLS® number:
N12687482
Agent:
Ada Liu
*Indicates required field
Name is required
Email is required
Please enter a valid phone number (e.g., 416-111-1111).