10 River Bend Road, Markham, Ontario L3R 1K2

Listed for:
$1,799,000
0 beds
0 baths
Listed 9 days ago
House for rent: 10 River Bend Road, Markham, Ontario L3R 1K2

View all 28 photos

About

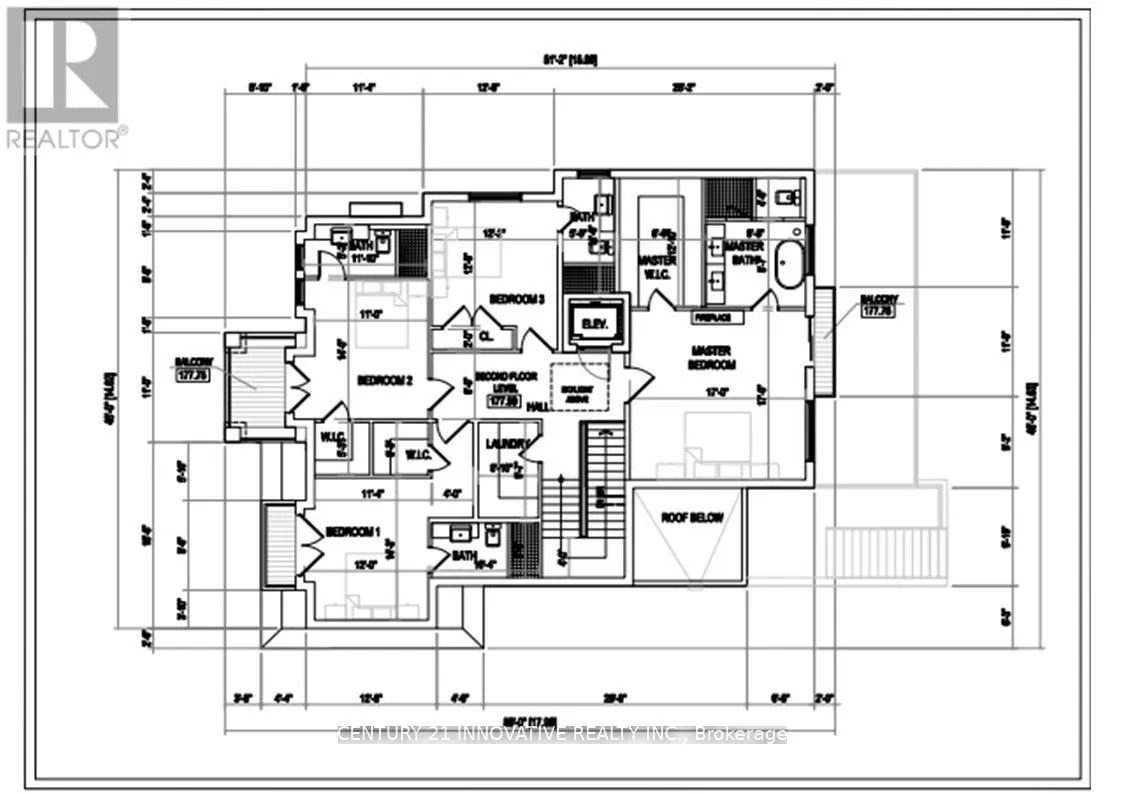
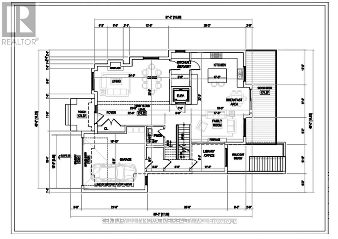
McCowan and HWY #7 Discover unparalleled luxury living on these extraordinary ravine lots backing onto the picturesque Rouge River. A spacious, pie-shaped and regular lots boasts over 210 feet of frontage, expanding to over 300 feet, and subdivided into four premium custom home LOTS each 50+ x 150+, Only two lots for sale LOT 2 & 3. Key features: Large Custom Homes: Each lot offers ample space for 4,000+ sqft homes. Prime location: Situated in a highly sought-after area, close to all amenities. Breathtaking Views: Principal rooms feature expansive windows and a finished basement with walk-up access to the serene riverfront yard. Private and Mature Lots: Enjoy unobstructed views of the Rouge River from your private oasis. Flexible Ownership Options: Individual Lot Sales: Purchase one of multiple lots separately. Combined lots: Acquire adjacent lots to create an expansive estate. Unmatched lifestyle: Experience the epitome of luxury living in these stunning custom homes, perfectly positioned to take advantage of the natural beauty of the Rouge River (id:27476)

Property Highlights

MLS® Number
N12967516
Type
Single Family
Community Name
Village Green-South Unionville
Ownership Type
Freehold
Land Size
50 x 135 FT|under 1/2 acre
Parking Space Total
4

Building

Building Type
House
Storeys
2.00
Square Footage
0 - 699 sqft
Fireplace Present
No
Basement Type
None
Basement Features
Building Heating Type
Forced air
Heating Fuel
Natural gas
Building Cooling Type
None

Utilities

Water
Municipal water
Utility Sewer
Sanitary sewer

Location

Learn more about this property
Listing provided by:
CENTURY 21 INNOVATIVE REALTY INC.
MLS® number:
N12967516
Agent:
Sameem Mohamed
*Indicates required field
Name is required
Email is required
Please enter a valid phone number (e.g., 416-111-1111).

Community Spotlight: Homes For sale in Your Neighborhood