35 Sunrise Drive, Markham, Ontario L3R 1A1

Listed for:
$2,450
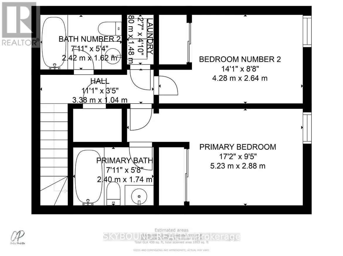
2 beds
2 baths
Listed 8 days ago
Row / Townhouse for rent: 35 Sunrise Drive, Markham, Ontario L3R 1A1

View all 23 photos

About

Cross Streets: Old Kennedy Rd and Steeles Ave. ** Directions: Going westbound on Steeles, turn right to Old Kennedy then turn left to Sunrise Dr. Location! Location! Location! Welcome to this well-maintained condo townhouse in the highly sought-after Old Kennedy Village-a family and pet-friendly community in one of Markham's most convenient neighbourhoods.This bright and functional home offers comfortable living with a practical layout, perfect for families or professionals. Move-in ready, clean, and well cared for-just bring your belongings and settle in. Enjoy unbeatable convenience with walking distance to Pacific Mall, TTC, GO Train, restaurants, and everyday essentials including No Frills supermarket. Surrounded by great schools, parks, and amenities, this location truly has it all. A fantastic opportunity to live in a vibrant, connected community. (Some photos are virtually staged for virtualization purposes) (id:27476)

Property Highlights

MLS® Number
N12974474
Type
Single Family
Community Name
Milliken Mills East
Ownership Type
Condominium/Strata
Parking Space Total
1

Building

Building Type
Row / Townhouse
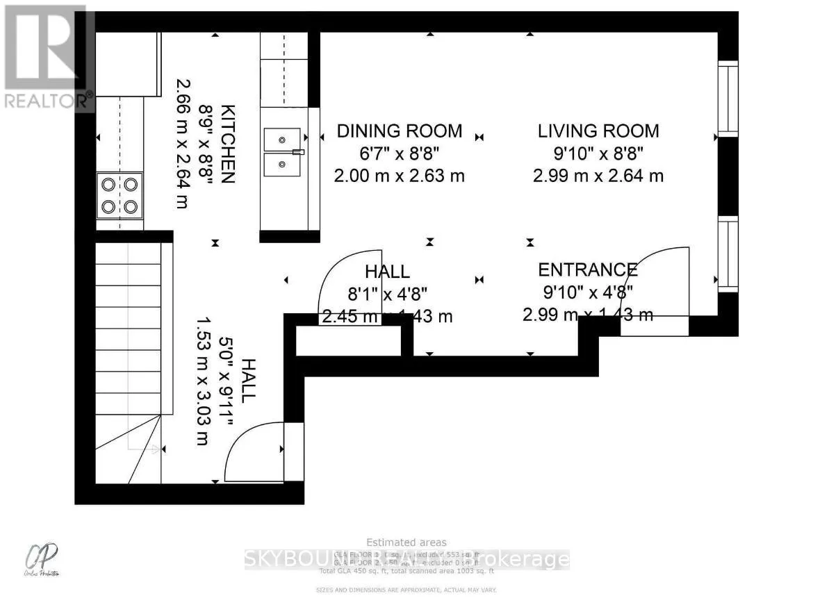
Square Footage
1000 - 1199 sqft
Bathrooms Total
2
Bedrooms Above Ground
2
Bedrooms Total
2
Exterior Finish
Brick Facing, Aluminum siding
Fireplace Present
No
Basement Type
Full (Finished)
Basement Features
Building Heating Type
Forced air
Heating Fuel
Natural gas
Building Cooling Type
Central air conditioning

Location

Learn more about this property
Listing provided by:
SKYBOUND REALTY
MLS® number:
N12974474
Agent:
Brian Thomson
*Indicates required field
Name is required
Email is required
Please enter a valid phone number (e.g., 416-111-1111).