2 Titan Trail, Markham, Ontario L3S 0E2

Listed for:
$1,049,000
5 beds
4 baths
Listed Today
House for rent: 2 Titan Trail, Markham, Ontario L3S 0E2

View all 50 photos

About

Cross Streets: Markham Rd and Denison. ** Directions: From Denison Turn on Kirkham Street and go straight towards Titan. Spacious and full of light, gorgeous 4+1 Bedroom, 4 Washroom link house on a premium Corner lot. Modern open concept layout. Freshly painted. 9 ft ceiling on the main floor. Upgraded hardwood floors throughout the main floor. Beautiful large kitchen with central island and stainless steel appliances is perfect for entertaining. Functional separate office room with vaulted ceiling. Laundry room is conveniently located on the 2nd floor. Primary bedroom features a 5pcs ensuite and large walk-in closet. Excellent location within minutes to HWY 407, GO train, shopping and entertainment. Steps to a beautiful golf course. ** This is a linked property.** (id:27476)

Property Highlights

MLS® Number
N13008904
Type
Single Family
Community Name
Cedarwood
Ownership Type
Freehold
Land Size
37 x 88.7 FT
Parking Space Total
2

Building

Building Type
House
Storeys
2.00
Square Footage
2000 - 2500 sqft
Bathrooms Total
4
Bedrooms Above Ground
4
Bedrooms Total
5
Exterior Finish
Brick
Fireplace Present
No
Basement Type
N/A (Unfinished)
Basement Features
Building Heating Type
Forced air
Heating Fuel
Natural gas
Building Cooling Type
Central air conditioning

Utilities

Water
Municipal water
Utility Sewer
Sanitary sewer

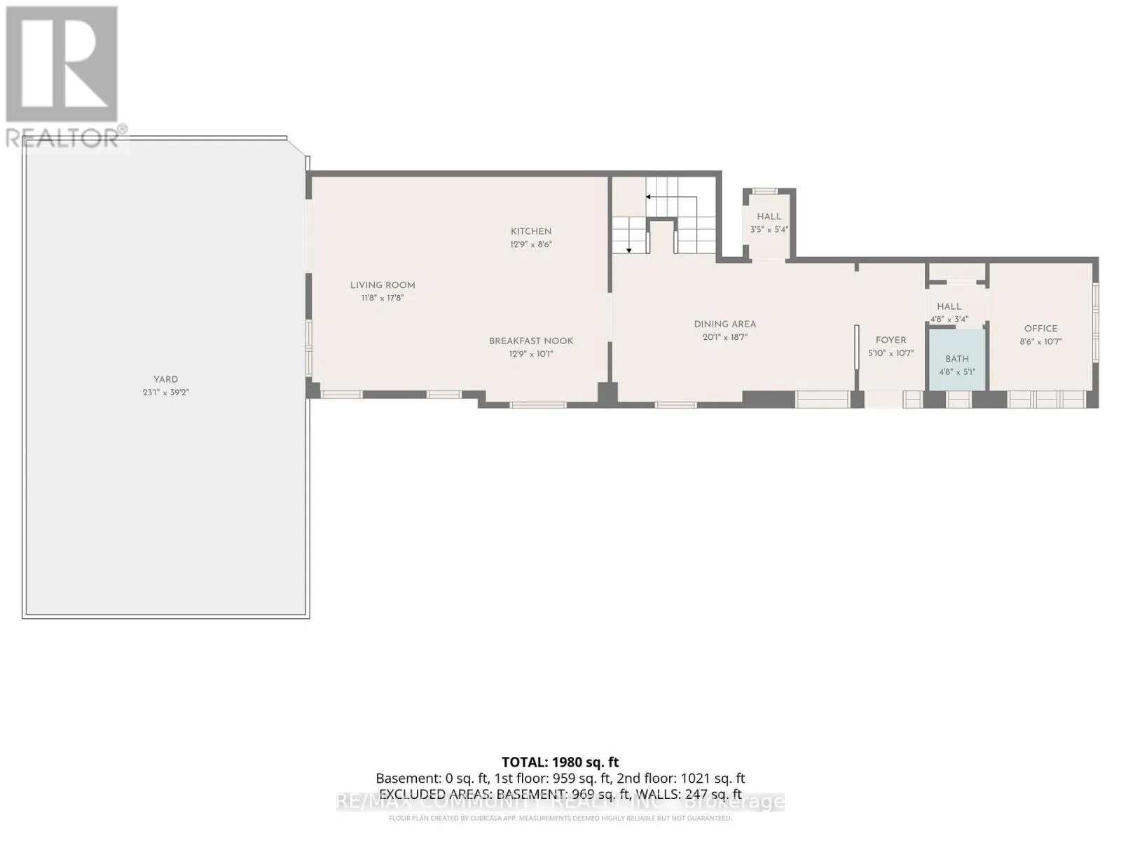
Room Layout

Laundry room
Second level
2.05 m x 1.8 m
Primary Bedroom
Second level
4.38 m x 3.68 m
Bedroom 2
Second level
2.74 m x 2.59 m
Bedroom 3
Second level
4.23 m x 2.74 m
Bedroom 4
Second level
3.65 m x 2.86 m
Living room
Main level
6.09 m x 3.35 m
Dining room
Main level
6.09 m x 3.38 m
Den
Main level
3.35 m x 2.7 m
Kitchen
Main level
3.77 m x 2.6 m
Eating area
Main level
3.77 m x 2.7 m
Great room
Main level
3.77 m x 5.79 m

Location

Learn more about this property
Listing provided by:
RE/MAX COMMUNITY REALTY INC.
MLS® number:
N13008904
Agent:
Navajeevan Anantharaj
*Indicates required field
Name is required
Email is required
Please enter a valid phone number (e.g., 416-111-1111).

Community Spotlight: Homes For sale in Your Neighborhood