811 Centre Road, McKellar, Ontario P2A 0B4

Listed for:
$159,500
0 beds
0 baths
Listed 110 days ago
811 Centre Road, McKellar, Ontario P2A 0B4

View all 29 photos

Learn more about this property
Listing provided by:
RE/MAX Parry Sound Muskoka Realty Ltd
MLS® number:
X12313739
Agent:
Holly Cascanette
*Indicates required field
Name is required
Email is required
Please enter a valid phone number (e.g., 416-111-1111).

About

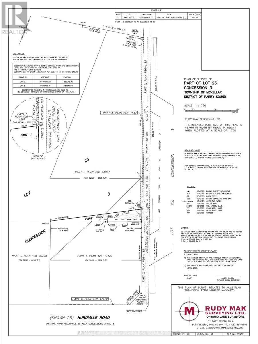
Cross Streets: 400, McDougall Rd, Hurdville Rd, Centre Rd. ** Directions: Hwy 400 to McDougall Rd to Hurdville Rd to Centre Rd, near left corner. DESIRABLE, TURNKEY BUILDING LOT ACREAGE ! Ideal for building your dream home or cottage, Driveway is in, Dug well on property, Private, Picturesque and Level Land, Hydro nearby, Fantastic opportunity to invest in the North, Enjoy weekend getaways or build your 4 season dream property! Year-round road access, Municipally maintained and plowed road, Mins to area lakes and boat launch! Book your appt today; You will love it! (id:27476)

Property Highlights

MLS® Number
X12313739
Type
Vacant Land
Community Name
McKellar
Land Size
313.42 x 354.25 FT|2 - 4.99 acres

Building

Amenities
Beach, Golf Nearby, Hospital
Fireplace Present
No
Basement Type
Basement Features
Building Heating Type
Heating Fuel
Building Cooling Type

Utilities

Water
Dug Well

Location

Street Spotlight - For sale