20 Kodiak Road, McKellar, Ontario P0G 1G0

Listed for:
$1,125,000
3 beds
2 baths
Listed 70 days ago
House for rent: 20 Kodiak Road, McKellar, Ontario P0G 1G0

View all 33 photos

About

Cross Streets: HWY 124 / CENTRE ROAD. ** Directions: HWY 124 to Centre Rd to Balsam Rd to Kodiak Rd to SOP. Set on Swan Lake, away from the crowds, sits this well built 3 bedroom, 2 bathroom, 4 season log home. With 6 acres and over 380 feet of water frontage, this property provides a peaceful and secluded setting to relax and unwind. The Open concept main living area provides a warm and welcoming environment with stone fireplace and a wall of windows wrapped around the pine log interior. An updated kitchen with stainless steel appliances, tile backsplash and walkout to the large deck. The three spacious bedrooms are tastefully decorated and offer a comfortable retreat, the primary bedroom provides a 2pc ensuite bath and walkout to the deck. With 2 walkouts the spacious south facing deck provides comfortable seating areas overlooking the waterfront, the peaceful back fields and treeline frequented by deer and other wildlife. For all the toys and to provide extra space there is a nicely set up 24' x 30' garage with unfinished loft area plus a 10' x 14' storage shed. The garage has been recently sided with complimentary board & batten on front. Steps & a treed path take you down to the waterfront area and deep water dock. Moffat Lake is a quieter lake, decent sized and well suited for fishing, swimming and relaxing. Located about 25 minutes from the amenities of Parry Sound, this is the perfect retreat for those looking to escape the hustle and bustle of the city and unwind in a serene environment. (id:27476)

Property Highlights

MLS® Number
X12534240
Type
Single Family
Community Name
McKellar
Ownership Type
Freehold
Land Size
381.2 x 595 FT|5 - 9.99 acres
Parking Space Total
14

Building

Building Type
House
Storeys
1.50
Square Footage
1100 - 1500 sqft
Bathrooms Total
2
Bedrooms Above Ground
3
Bedrooms Total
3
Amenities
Fireplace(s)
Exterior Finish
Log
Fireplace Present
Yes
Basement Type
None
Basement Features
Building Heating Type
Baseboard heaters
Heating Fuel
Propane
Building Cooling Type
None

Utilities

Water
Lake/River Water Intake
Utility Sewer
Septic System

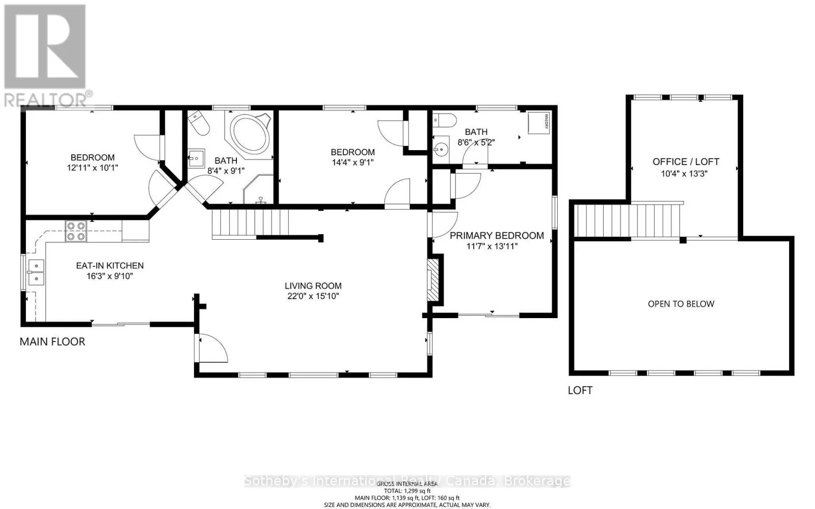
Room Layout

Loft
Second level
4.04 m x 3.15 m
Living room
Main level
6.71 m x 4.83 m
Kitchen
Main level
4.95 m x 3 m
Primary Bedroom
Main level
4.24 m x 3.53 m
Bedroom 2
Main level
3.91 m x 3.07 m
Bedroom 3
Main level
4.34 m x 2.77 m
Bathroom
Main level
2.77 m x 2.54 m

Location

Learn more about this property
Listing provided by:
Sotheby's International Realty Canada
MLS® number:
X12534240
Agent:
Chuck Murney
*Indicates required field
Name is required
Email is required
Please enter a valid phone number (e.g., 416-111-1111).

Community Spotlight: Homes For sale in Your Neighborhood