328 Cedar Avenue, Meaford, Ontario N4L 1W5

Listed for:
$3,750
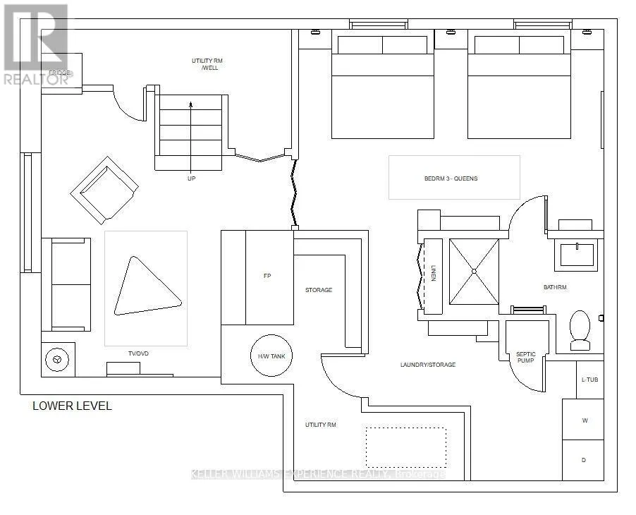
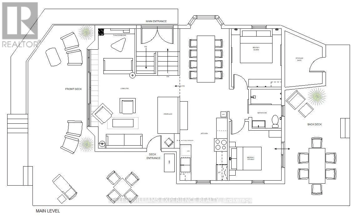
3 beds
2 baths
Listed 66 days ago
House for rent: 328 Cedar Avenue, Meaford, Ontario N4L 1W5

View all 21 photos

About

Harbour Beach Dr/Cedar Ave ***SKI SEASON RENTAL***Charming seasonal retreat perfectly situated minutes from Meaford's shops, trails, and the world-class ski clubs of Georgian Bay. This cozy getaway is designed for comfort, featuring warm, inviting living spaces, modern amenities, and a private hot tub. It's the ideal spot to unwind after a day on the slopes. Enjoy a well-equipped kitchen, spacious bedrooms, ample parking, and a layout that's perfect for families or couple's seeking a relaxing winter escape. With its serene setting, thoughtful updates, and close proximity to skiing, dining, and waterfront views, this home offers the perfect base for a memorable seasonal stay. (id:27476)

Property Highlights

MLS® Number
X12628530
Type
Single Family
Community Name
Meaford
Ownership Type
Freehold
Land Size
48.6 FT
Parking Space Total
6

Building

Building Type
House
Storeys
1.00
Square Footage
1100 - 1500 sqft
Bathrooms Total
2
Bedrooms Above Ground
2
Bedrooms Total
3
Amenities
Beach
Exterior Finish
Brick, Vinyl siding
Fireplace Present
Yes
Basement Type
Full (Finished)
Basement Features
Building Heating Type
Forced air
Heating Fuel
Propane
Building Cooling Type
Central air conditioning

Utilities

Water
Drilled Well
Utility Sewer
Septic System

Location

Learn more about this property
Listing provided by:
KELLER WILLIAMS EXPERIENCE REALTY
MLS® number:
X12628530
Agent:
Allyson Dublack
*Indicates required field
Name is required
Email is required
Please enter a valid phone number (e.g., 416-111-1111).