517403 County Rd 124 Road, Melancthon, Ontario L9V 1T9

Listed for:
$749,000
0 beds
0 baths
Listed 265 days ago
517403 County Rd 124 Road, Melancthon, Ontario L9V 1T9

View all 1 photos

About

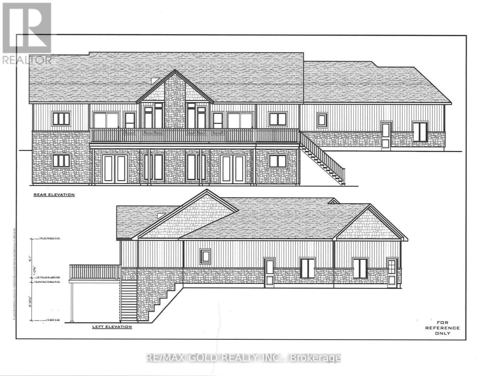
15 Sdrd / County Rd 124 Exceptional opportunity to build your dream home on this stunning 2.37-acre property! Featuring a picturesque ravine lot, this land offers a blend of clear rolling landscape and a rustic natural forest border, complete with a secluded creek and breathtaking vistas. Just minutes from local town amenities, cottage country, and ski hills, this location offers the perfect balance of country relaxation and convenient access to town amenities. Approved plans include a custom home with a 3-car garage, walkout basement, deck, main floor laundry, and a luxurious master bedroom with ensuite. The driveway is approved and in place, and hydro is available at the road. NEC and NVCA approvals are secured for the building location. Architect drawings are available. Don't miss out on this unique opportunity to create a tranquil retreat with stunning views! **EXTRAS** LOCATION! LOCATION!! LOCATION!!! $$$$$ VTB is AVALABLE $$$$$ (id:27476)

Property Highlights

MLS® Number
X12285029
Type
Vacant Land
Community Name
Rural Melancthon
Land Size
169.3 x 574.77 FT ; 2.38 Acres|2 - 4.99 acres

Building

Fireplace Present
No
Basement Type
Basement Features
Building Heating Type
Heating Fuel
Building Cooling Type

Location

Learn more about this property
Listing provided by:
RE/MAX GOLD REALTY INC.
MLS® number:
X12285029
Agent:
Jaz Kahlon
*Indicates required field
Name is required
Email is required
Please enter a valid phone number (e.g., 416-111-1111).

Community Spotlight: Homes For sale in Your Neighborhood