75 Allister Drive, Middlesex Centre, Ontario N0L 1R0

Listed for:
$865,000
3 beds
3 baths
Listed 92 days ago
House for rent: 75 Allister Drive, Middlesex Centre, Ontario N0L 1R0

View all 24 photos

Learn more about this property
Listing provided by:
EXP REALTY
MLS® number:
X12249482
Agent:
Mike Ashby
*Indicates required field
Name is required
Email is required
Please enter a valid phone number (e.g., 416-111-1111).

About

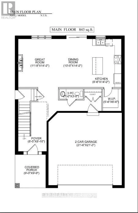
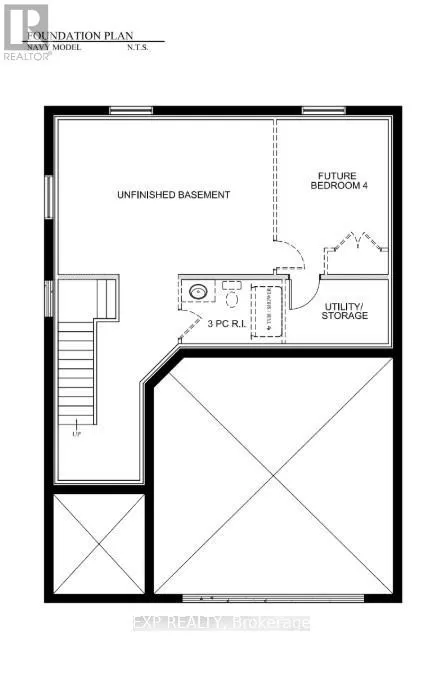
Cross Streets: crestview and glendon. ** Directions: Benner and Allister. TO BE BUILT! Magnus Homes presents The Navy model, consisting of 3 bedrooms, this 1812 sqft 2 storey home sits on a 40' lot located in Kilworth Heights West. Magnus Homes offers various home designs ranging from 1,450 - 2,700sqft bungalows and 2 storeys. Check out the Magnus standard at our model home. Inquire for builder package and available lots. NOTE - Some images or renderings may be from a different models or have optional upgrades not included as standard. ** This is a linked property.** (id:27476)

Property Highlights

MLS® Number
X12249482
Type
Single Family
Community Name
Kilworth
Ownership Type
Freehold
Land Size
40.1 x 118.5 FT
Parking Space Total
4

Building

Building Type
House
Storeys
2.00
Square Footage
1500 - 2000 sqft
Bathrooms Total
3
Bedrooms Above Ground
3
Bedrooms Total
3
Amenities
Fireplace(s)
Exterior Finish
Brick Veneer, Vinyl siding
Fireplace Present
Yes
Basement Type
N/A (Unfinished)
Basement Features
Building Heating Type
Forced air
Heating Fuel
Natural gas
Building Cooling Type
Central air conditioning

Utilities

Water
Municipal water
Utility Sewer
Sanitary sewer

Location

Street Spotlight - For sale