14216 Thirteen Mile Road, Middlesex Centre, Ontario N0M 1P0

Listed for:
$1,830,000
3 beds
3 baths
Listed 150 days ago
House for rent: 14216 Thirteen Mile Road, Middlesex Centre, Ontario N0M 1P0

View all 4 photos

About

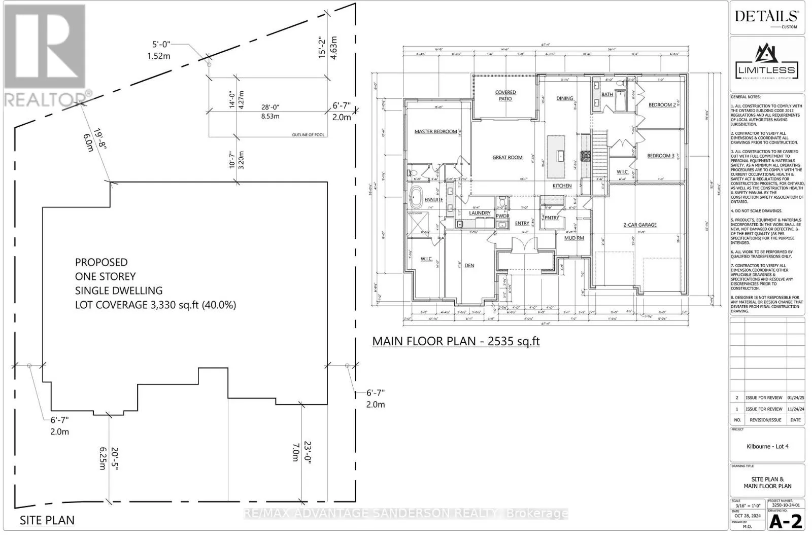
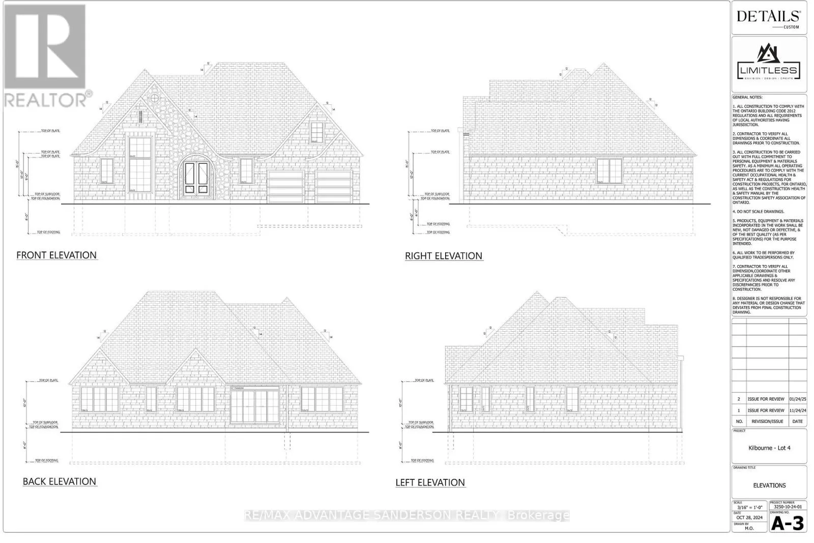
Cross Streets: Richmond Street. ** Directions: Richmond St north to Thirteen Mile turn West (left). Welcome to beautiful Birr Estates! This is the custom home building opportunity you have been waiting for! Looking for more space than the 40'-60' building lots you are restricted to in the city? Looking to truly customize your dream home from the ground up? These stunning properties are 1.125 acres with the most spectacular sunsets and panoramic rolling farmland views, small-town community feel, excellent schools, all within a short 10 minute drive to all the amenities of North London. Our Scarlett model features 2,535sf of meticulously designed living space. The large kitchen features custom cabinetry, stone countertops and appliances included! The walk-in pantry is outfitted with custom cabinetry and counters to match the kitchen. In the vaulted great room you can relax in front of the gas fireplace while enjoying the beautiful country sunset. Continue to enjoy the country views as you enter the principal suite with its large windows and hardwood floors then step into the spa-like 5 piece bathroom and large walk-in closet. Hardwood floors continue throughout the home into bedrooms two and three, each featuring large closets and a shared 4 piece bathroom. An executive home office off of the front foyer, separate mudroom and laundry rooms, and a powder room complete this functional and beautiful main floor layout. The striking elevation of this home design definitely makes a statement, highlighted by the contrast of light brick, natural stone and black hardie accents. At DETAILS Custom, we specialize in custom design + build projects, and we do not believe you should be restricted to a specific house model or a selection of possible finishes. If The Scarlett is not quite perfect for you no problem! - we can either customize an existing plan or start fresh. We believe in working together to design your dream home from floor plan to elevations to finishes. Your home should be 100% you! To be Built. This is Lot 2B. For more info please visit www.detailscustom.ca. (id:27476)

Property Highlights

MLS® Number
X12552446
Type
Single Family
Community Name
Birr
Ownership Type
Freehold
Land Size
111 x 441 FT|1/2 - 1.99 acres
Parking Space Total
8

Building

Building Type
House
Storeys
1.00
Square Footage
2500 - 3000 sqft
Bathrooms Total
3
Bedrooms Above Ground
3
Bedrooms Total
3
Amenities
Fireplace(s)
Exterior Finish
Brick
Fireplace Present
Yes
Basement Type
Full (Unfinished)
Basement Features
Building Heating Type
Forced air
Heating Fuel
Natural gas
Building Cooling Type
Central air conditioning

Utilities

Utility Sewer
Septic System

Room Layout

Den
Main level
5.33 m x 3.57 m
Laundry room
Main level
2.87 m x 2.35 m
Mud room
Main level
2.44 m x 2.62 m
Kitchen
Main level
5.97 m x 3.69 m
Great room
Main level
4.88 m x 5.27 m
Dining room
Main level
4.08 m x 3.69 m
Primary Bedroom
Main level
4.57 m x 4.45 m
Bedroom 2
Main level
3.41 m x 3.75 m
Bedroom 3
Main level
3.41 m x 3.87 m

Location

Learn more about this property
Listing provided by:
RE/MAX ADVANTAGE SANDERSON REALTY
MLS® number:
X12552446
Agent:
Rob Sanderson
*Indicates required field
Name is required
Email is required
Please enter a valid phone number (e.g., 416-111-1111).