60 Bayshore Drive, Middlesex Centre, Ontario N0L 1R0

Listed for:
$1,569,000
4 beds
5 baths
Listed 23 days ago
House for rent: 60 Bayshore Drive, Middlesex Centre, Ontario N0L 1R0

View all 34 photos

About

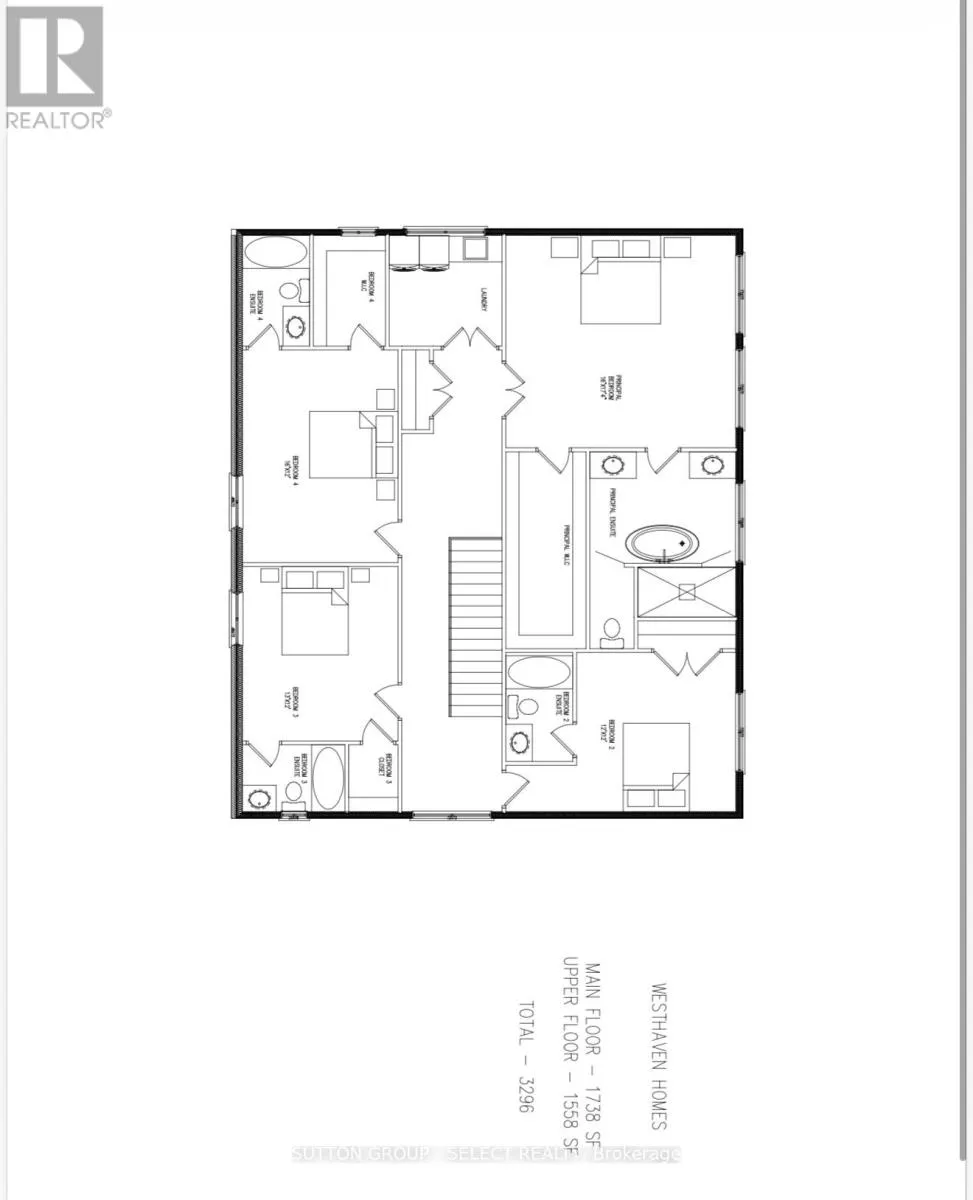
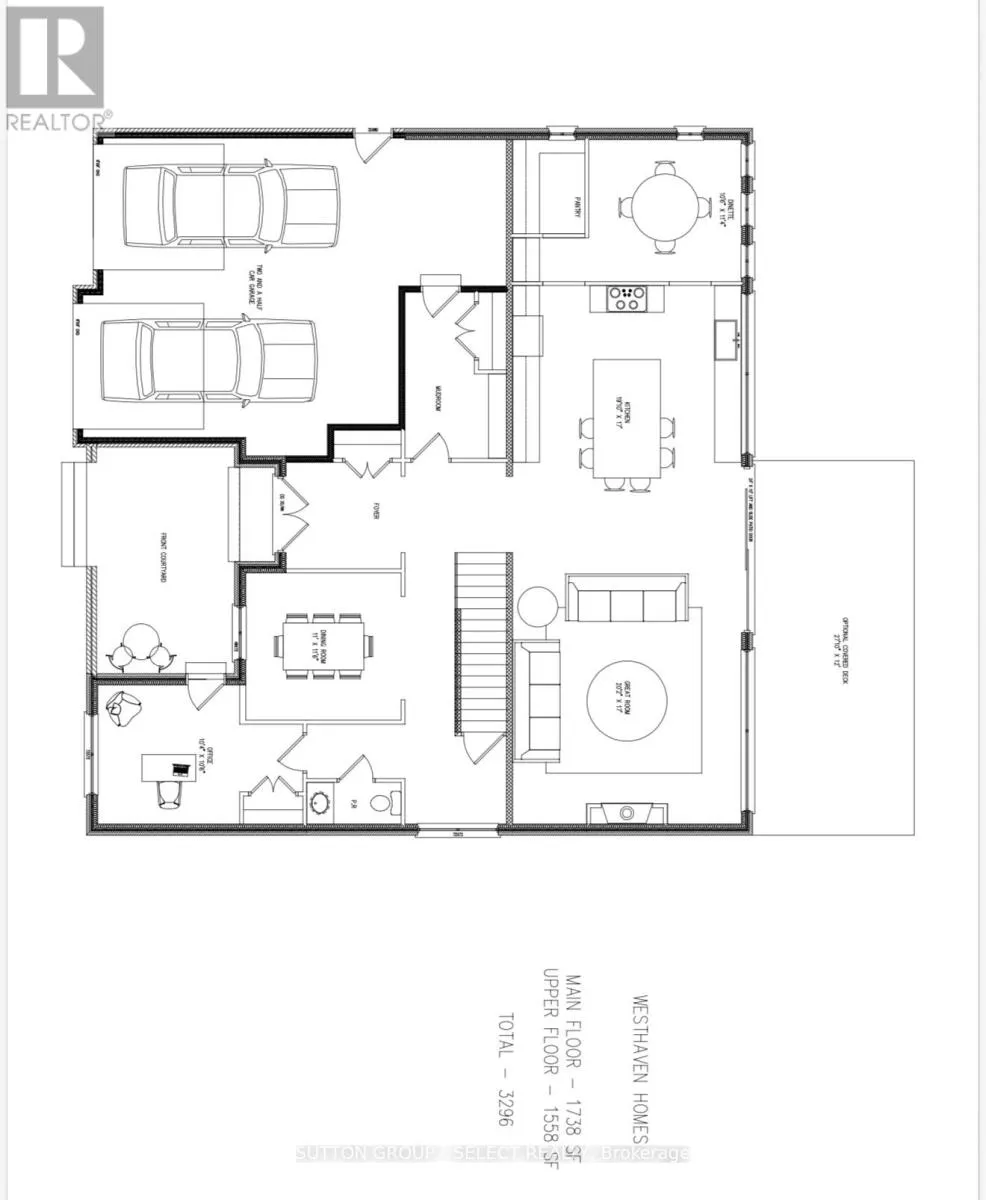
Cross Streets: Edgewater. Blvd. ** Directions: Jeffries to Westbrook to Bayshore. Scandinavian inspired architecture defines this distinctive new build plan, where dramatic 10 ft ceilings on both the main & second floor create remarkable scale & light, & a rare layout showcases four bedrooms each with their own private ensuite for exceptional comfort & privacy. Offering a spacious 3296 sq ft of executive finished living space above grade, this home blends architectural presence with thoughtful design. A signature courtyard entry creates a striking architectural arrival & an intimate outdoor lounge that introduces the home's modern European influence. The refined stucco exterior reinforces the home's clean architectural lines & timeless modern presence, while a warm wood & white palette carries throughout the interior. Hardwood floors extend across the main living areas, leading to a bright & expansive great room framed by a dramatic wall of windows & sliding glass doors overlooking the backyard. A contemporary gas fireplace anchors the space & creates a refined focal point for gathering. Impressive kitchen is designed with beauty & function forefront featuring premium cabinetry, quartz counters, a large centre island & a walk in pantry. A long windowed prep run with sink fills the workspace with natural light, while architectural transitions between the kitchen & dinette add character. A main floor home office offers separate direct entry, ideal for meeting clients or operating a home based business while maintaining privacy from the main living areas. Upstairs, a wide light filled hallway & open landing form an airy central gallery, with bedrooms thoughtfully arranged around the space. The primary suite features a spacious walk in closet with built ins & a spa inspired ensuite with freestanding tub & glass shower finished in large format tile. The upper level laundry room includes cabinetry & a folding counter for everyday convenience. The basement offers full 9 ft ceilings & excellent potential for additional living space. (id:27476)

Property Highlights

MLS® Number
X12862848
Type
Single Family
Community Name
Rural Middlesex Centre
Ownership Type
Freehold
Land Size
65.8 x 125.3 FT
Parking Space Total
3

Building

Building Type
House
Storeys
2.00
Square Footage
3000 - 3500 sqft
Bathrooms Total
5
Bedrooms Above Ground
4
Bedrooms Total
4
Amenities
Fireplace(s)
Exterior Finish
Brick, Stucco
Fireplace Present
Yes
Basement Type
Full (Unfinished)
Basement Features
Building Heating Type
Forced air
Heating Fuel
Natural gas
Building Cooling Type
Central air conditioning, Air exchanger

Utilities

Water
Municipal water
Utility Sewer
Sanitary sewer

Room Layout

Bedroom
Second level
3.96 m x 3.66 m
Bedroom 2
Second level
4.88 m x 3.86 m
Bedroom 3
Second level
3.86 m x 3.66 m
Primary Bedroom
Second level
4.88 m x 5.28 m
Office
Main level
3.15 m x 3.2 m
Great room
Main level
6.15 m x 5.18 m
Eating area
Main level
3.45 m x 3.17 m
Dining room
Main level
3.35 m x 3.51 m
Kitchen
Main level
6.05 m x 5.18 m

Location

Learn more about this property
Listing provided by:
SUTTON GROUP - SELECT REALTY
MLS® number:
X12862848
Agent:
Kim Mullan
*Indicates required field
Name is required
Email is required
Please enter a valid phone number (e.g., 416-111-1111).

Community Spotlight: Homes For sale in Your Neighborhood