113 Holloway Trail, Middlesex Centre, Ontario N0M 2A0

Listed for:
$749,900
4 beds
3 baths
Listed 29 days ago
House for rent: 113 Holloway Trail, Middlesex Centre, Ontario N0M 2A0

View all 3 photos

About

Cross Streets: STONEFIELD AND HYDE PARK RD. ** Directions: EAST OFF HYDE PARK RD ONTO STONEFIELD, TURN NORTH ONTO BOWMAN DR, HOLLOWAY IS ON THE RIGHT. TO BE BUILT. FREE UPGRADE TO A PREMIUM LOT! A $50,000 value at no extra charge. Welcome to the NEW MOCOLEY layout with a NEW PRICE by Vranic Homes. 1863 sq ft of beauty and luxury. This 4 bedroom two storey home in beautiful Clear Skies is available with closing in late summer 2026. Come and select your own finishing, and don't wait - our special pricing is first come first served. Quartz counters throughout, plus design your own kitchen with our design consultant! See documents for a list of standard features. Visit our model at 133 Basil Cr in Ilderton, open Saturdays and Sundays from 2-4 or by appointment. Other models and lots are available, ask for the complete builder's package. (id:27476)

Property Highlights

MLS® Number
X12896028
Type
Single Family
Community Name
Ilderton
Ownership Type
Freehold
Land Size
44.2 x 115.1 FT
Parking Space Total
4

Building

Building Type
House
Storeys
2.00
Square Footage
1500 - 2000 sqft
Bathrooms Total
3
Bedrooms Above Ground
4
Bedrooms Total
4
Exterior Finish
Brick, Vinyl siding
Fireplace Present
No
Basement Type
N/A (Unfinished)
Basement Features
Building Heating Type
Forced air
Heating Fuel
Natural gas
Building Cooling Type
Central air conditioning

Utilities

Water
Municipal water
Utility Sewer
Sanitary sewer

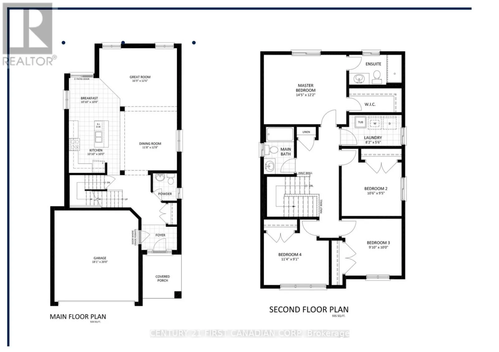
Room Layout

Laundry room
Second level
2.5 m x 1.7 m
Primary Bedroom
Second level
4.4 m x 3.7 m
Bedroom
Second level
3.23 m x 2.9 m
Bedroom
Second level
3.03 m x 3 m
Bedroom
Second level
3.3 m x 2.85 m
Foyer
Main level
1.83 m x 1.83 m
Bathroom
Main level
Measurements not available
Kitchen
Main level
3 m x 3.08 m
Dining room
Main level
3.54 m x 3.9 m
Great room
Main level
5.15 m x 3.9 m
Eating area
Main level
3.54 m x 3.9 m
Kitchen
Main level
3.54 m x 3.9 m

Location

Learn more about this property
Listing provided by:
CENTURY 21 FIRST CANADIAN CORP
MLS® number:
X12896028
Agent:
Kevin Knell
*Indicates required field
Name is required
Email is required
Please enter a valid phone number (e.g., 416-111-1111).

Street Spotlight - For sale