201 Bay Street, Midland, Ontario L4R 1M9

Listed for:
$12
0 beds
4 baths
Listed 54 days ago
Warehouse for rent: 201 Bay Street, Midland, Ontario L4R 1M9

View all 17 photos

Learn more about this property
Listing provided by:
ED LOWE LIMITED
MLS® number:
S12429370
Agent:
Mike Kane
*Indicates required field
Name is required
Email is required
Please enter a valid phone number (e.g., 416-111-1111).

About

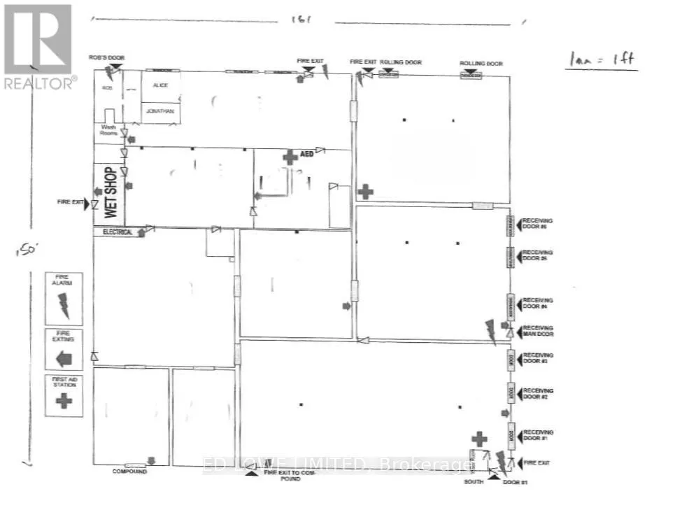
Cross Streets: BAY AND WILLIAM. ** Directions: William st to Bay St. 24,150 s.f building for sublease. 3000 s.f. nicely finished office space and 21,150 s.f. of warehouse space located in the heart of Midland. Ideal for a wide range of uses permitted under M1 zoning. Suitable for light industrial, warehousing, distribution, and more. Numerous shipping and receiving doors for easy access, unloading and loading. 1 with dock leveler. Property also includes a 10,000 s.f. fenced yard at the rear of the building and a 1/2 acre side yard and parking lot. Ceiling heights range from 12' to 16'. Perfect for businesses needing functional and well-located warehousing or storage space. Centrally located in Midland with convenient access to major routes. $12.50/s.f. /yr + TMI $3.00/s.f./yr. + HST, Utilities. (id:27476)

Property Highlights

MLS® Number
S12429370
Type
Industrial
Community Name
Midland
Land Size
Bldg=231 x 283 FT

Building

Building Type
Warehouse
Square Footage
24150 sqft
Bathrooms Total
4
Fireplace Present
No
Basement Type
Basement Features
Building Heating Type
Forced air
Heating Fuel
Natural gas
Building Cooling Type
Partially air conditioned

Utilities

Water
Municipal water

Location