224 4th Street, Midland, Ontario L4R 3T5

Listed for:
$550,000
6 beds
3 baths
Listed 50 days ago
Duplex for rent: 224 4th Street, Midland, Ontario L4R 3T5

View all 18 photos

Learn more about this property
Listing provided by:
Keller Williams Co-Elevation Realty, Brokerage
MLS® number:
S12508488
Agent:
Lorraine Jordan
*Indicates required field
Name is required
Email is required
Please enter a valid phone number (e.g., 416-111-1111).

About

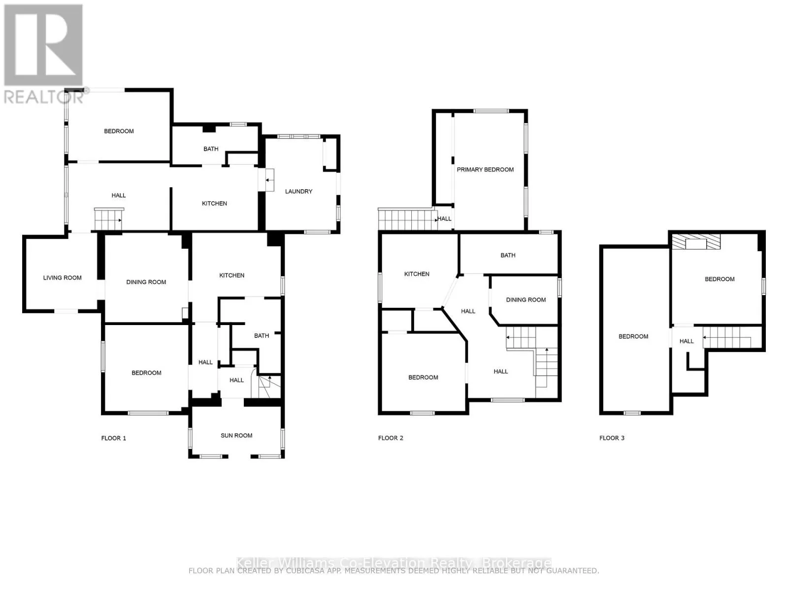
Cross Streets: Bay St/4th. ** Directions: Hwy 12 to King St to Hugel Ave to 4th St. This legal duplex offers a rare opportunity to generate steady rental income with three fully self-contained units, perfectly situated in Midland's vibrant downtown core. The property includes a bright and spacious 1-bedroom, 1-bath main floor unit with on-site laundry; a second main floor unit offering 2 bedrooms and 1 bath; and a well-appointed upper-level unit with 2 bedrooms, 1 bath, a bonus den, and its own laundry facilities. With a smart layout and private living spaces, this home caters perfectly to the needs of todays renters. Outside, the partially fenced backyard offers a shared outdoor area, while two separate driveways provide ample parking for tenants. Located just minutes from Georgian Bay, marinas, downtown shops and restaurants, and all essential amenities, this property is a fantastic option for those looking to invest in a high-demand rental market. Whether you're expanding your portfolio or entering the investment space for the first time, this property offers immediate income potential and long-term value. Take possession any time this is a rare find in one of Midlands most sought-after locations. (id:27476)

Property Highlights

MLS® Number
S12508488
Type
Multi-family
Community Name
Midland
Land Size
68 x 100 FT ; 100.33ft x 69.15ft x 100.41ft x 69.59ft|under 1/2 acre
Parking Space Total
6

Building

Building Type
Duplex
Storeys
2.50
Square Footage
2000 - 2500 sqft
Bathrooms Total
3
Bedrooms Above Ground
6
Bedrooms Total
6
Amenities
Hospital, Park, Schools, Beach
Exterior Finish
Brick
Fireplace Present
No
Basement Type
Crawl space
Basement Features
Building Heating Type
Forced air
Heating Fuel
Natural gas
Building Cooling Type
None

Utilities

Water
Municipal water
Utility Sewer
Sanitary sewer

Room Layout

Bedroom 5
Third level
6.47 m x 2.63 m
Bedroom
Third level
3.59 m x 3.58 m
Sunroom
Main level
1.92 m x 3.53 m
Bedroom
Main level
3.43 m x 3.32 m
Kitchen
Main level
3.56 m x 3.53 m
Dining room
Main level
3.56 m x 3.32 m
Living room
Main level
3.04 m x 2.83 m
Mud room
Main level
2.67 m x 4.04 m
Bedroom 2
Main level
2.73 m x 4.03 m
Kitchen
Main level
2.51 m x 3.51 m
Laundry room
Main level
3.65 m x 2.82 m
Bedroom 3
Upper Level
3.09 m x 3.32 m
Kitchen
Upper Level
2.94 m x 3.02 m
Bedroom 4
Upper Level
4.66 m x 2.78 m
Dining room
Upper Level
1.9 m x 2.63 m
Sitting room
Upper Level
2.84 m x 2.71 m

Location

Community Spotlight: Homes For sale in Your Neighborhood