3 Northland Road, Midland, Ontario L4R 0B9

Listed for:
$289,900
2 beds
1 baths
Listed 29 days ago
Mobile Home for rent: 3 Northland Road, Midland, Ontario L4R 0B9

View all 22 photos

About

Cross Streets: King and Galloway. ** Directions: King Street to Smith's Camp. Affordable Living with Great Amenities! Looking for an affordable home with extras you don't usually get at this price? This charming 2-bedroom, 1-bath home is located in the welcoming community of Smith's Camp and offers comfort, convenience, and value! Features Include 2 Bedrooms, 1 Bathroom, Sunroom, Access to Community Pool and no neighbours across the road. Enjoy the benefits of community living while still having your own space - Single car garage with hydro, new vinyl plank flooring and most windows replaced in last 5 years all a rare find at this price point! Low-maintenance living at it's best!Perfect for first-time buyers, downsizers, or anyone looking for a budget-friendly option without sacrificing amenities. (id:27476)

Property Highlights

MLS® Number
S12839994
Type
Single Family
Community Name
Midland
Ownership Type
Leasehold/Leased Land
Parking Space Total
5

Building

Building Type
Mobile Home
Square Footage
700 - 1100 sqft
Bathrooms Total
1
Bedrooms Above Ground
2
Bedrooms Total
2
Amenities
Fireplace(s)
Exterior Finish
Vinyl siding
Fireplace Present
Yes
Basement Type
None
Basement Features
Building Heating Type
Forced air
Heating Fuel
Natural gas
Building Cooling Type
Central air conditioning

Utilities

Water
Municipal water
Utility Sewer
Sanitary sewer

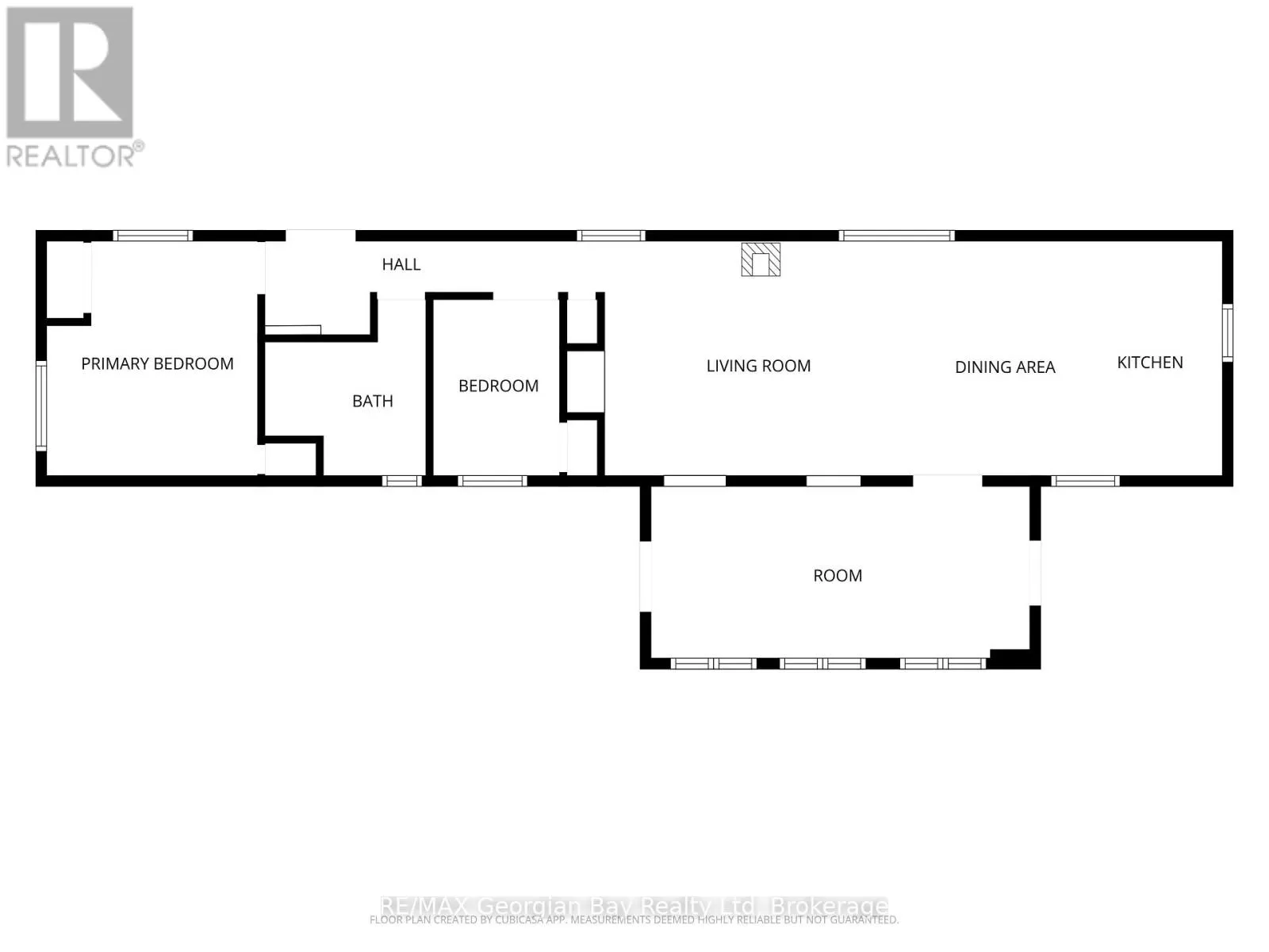
Room Layout

Living room
Main level
4.57 m x 3.47 m
Kitchen
Main level
3.47 m x 4.57 m
Bedroom
Main level
3.35 m x 2.77 m
Bedroom 2
Main level
2.65 m x 1.82 m
Sunroom
Main level
5.79 m x 2.62 m

Location

Learn more about this property
Listing provided by:
RE/MAX Georgian Bay Realty Ltd
MLS® number:
S12839994
Agent:
Nick Dupuis
*Indicates required field
Name is required
Email is required
Please enter a valid phone number (e.g., 416-111-1111).