150 Woodland Drive, Midland, Ontario L4R 4E3

Listed for:
$529,900
3 beds
3 baths
Listed 6 days ago
House for rent: 150 Woodland Drive, Midland, Ontario L4R 4E3

View all 23 photos

About

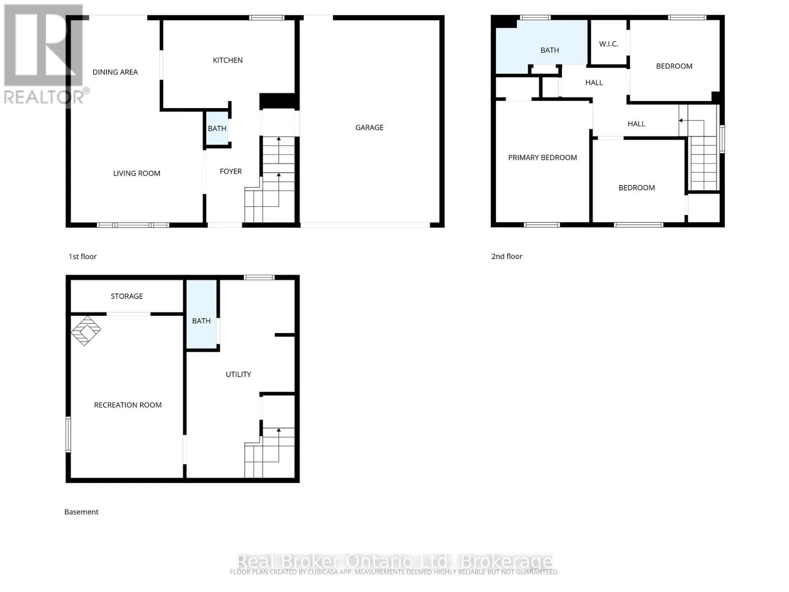
Cross Streets: Penetanguishene Rd/Hugel Ave. ** Directions: Hwy 93 (Penetanguishene Rd to Hugel Ave to Woodland Dr. Charming 2-Storey Family Home in a Fantastic Location! Welcome to this 2-storey family home offering great curb appeal and an unbeatable location directly across from a park and ball diamond-perfect for family fun and outdoor recreation. You'll love being just a short walk from Monsignor Castex, Bayview, and Georgian Bay District Secondary Schools, plus convenient access to shopping, the hospital, and medical centre-everything you need is right nearby. Step inside to find a welcoming space filled with natural light from updated windows and excellent flow for family living and entertaining. You will enjoy preparing meals in the lovely kitchen with stainless steel appliances and a portable island included. Walkout from the dining area to a large, durable, two-tier composite decking system including a large gazebo overlooking the private back yard. A new chain link fence will be installed by the seller in April across the back of the property. Upstairs you will find 3 bedrooms and a beautifully renovated full bath; and in the lower level a large rec room with cozy gas stove, a 2 piece bath, laundry, and plenty of storage space. The lovely stone walkway leads to the front door, while the oversized single attached garage with inside entry and a newer 12' wide door adds convenience and additional storage. The paved driveway easily accommodates parking for four vehicles. Enjoy the best of outdoor living, family comfort, and central convenience in this terrific property ready to welcome its next owners! (id:27476)

Property Highlights

MLS® Number
S12923720
Type
Single Family
Community Name
Midland
Ownership Type
Freehold
Land Size
55 x 135.1 FT ; 54.97 x 135.01 x 34.99 x 121.95|under 1/2 acre
Parking Space Total
5

Building

Building Type
House
Storeys
2.00
Square Footage
700 - 1100 sqft
Bathrooms Total
3
Bedrooms Above Ground
3
Bedrooms Total
3
Amenities
Fireplace(s) Schools, Park, Hospital, Public Transit
Exterior Finish
Brick, Vinyl siding
Fireplace Present
Yes
Basement Type
Full (Finished)
Basement Features
Building Heating Type
Forced air
Heating Fuel
Natural gas
Building Cooling Type
Central air conditioning

Utilities

Water
Municipal water
Utility Sewer
Sanitary sewer

Room Layout

Recreational, Games room
Lower level
5.12 m x 3.55 m
Utility room
Lower level
6.24 m x 3.41 m
Other
Lower level
1.03 m x 3.55 m
Foyer
Main level
3.58 m x 1.7 m
Living room
Main level
3.51 m x 4.17 m
Dining room
Main level
2.86 m x 2.8 m
Kitchen
Main level
2.78 m x 4.14 m
Primary Bedroom
Upper Level
3.82 m x 2.94 m
Bedroom 2
Upper Level
2.61 m x 2.91 m
Bedroom 3
Upper Level
2.56 m x 2.83 m

Location

Learn more about this property
Listing provided by:
Real Broker Ontario Ltd
MLS® number:
S12923720
Agent:
Lorraine Jordan
*Indicates required field
Name is required
Email is required
Please enter a valid phone number (e.g., 416-111-1111).

Community Spotlight: Homes For sale in Your Neighborhood