106 Campbell Avenue E, Milton, Ontario L0P 1B0

Listed for:
$1,349,990
4 beds
3 baths
Listed 18 days ago
House for rent: 106 Campbell Avenue E, Milton, Ontario L0P 1B0

View all 50 photos

Learn more about this property
Listing provided by:
ROYAL LEPAGE MEADOWTOWNE REALTY
MLS® number:
W12484998
Agent:
Aaron Ferguson
*Indicates required field
Name is required
Email is required
Please enter a valid phone number (e.g., 416-111-1111).

About

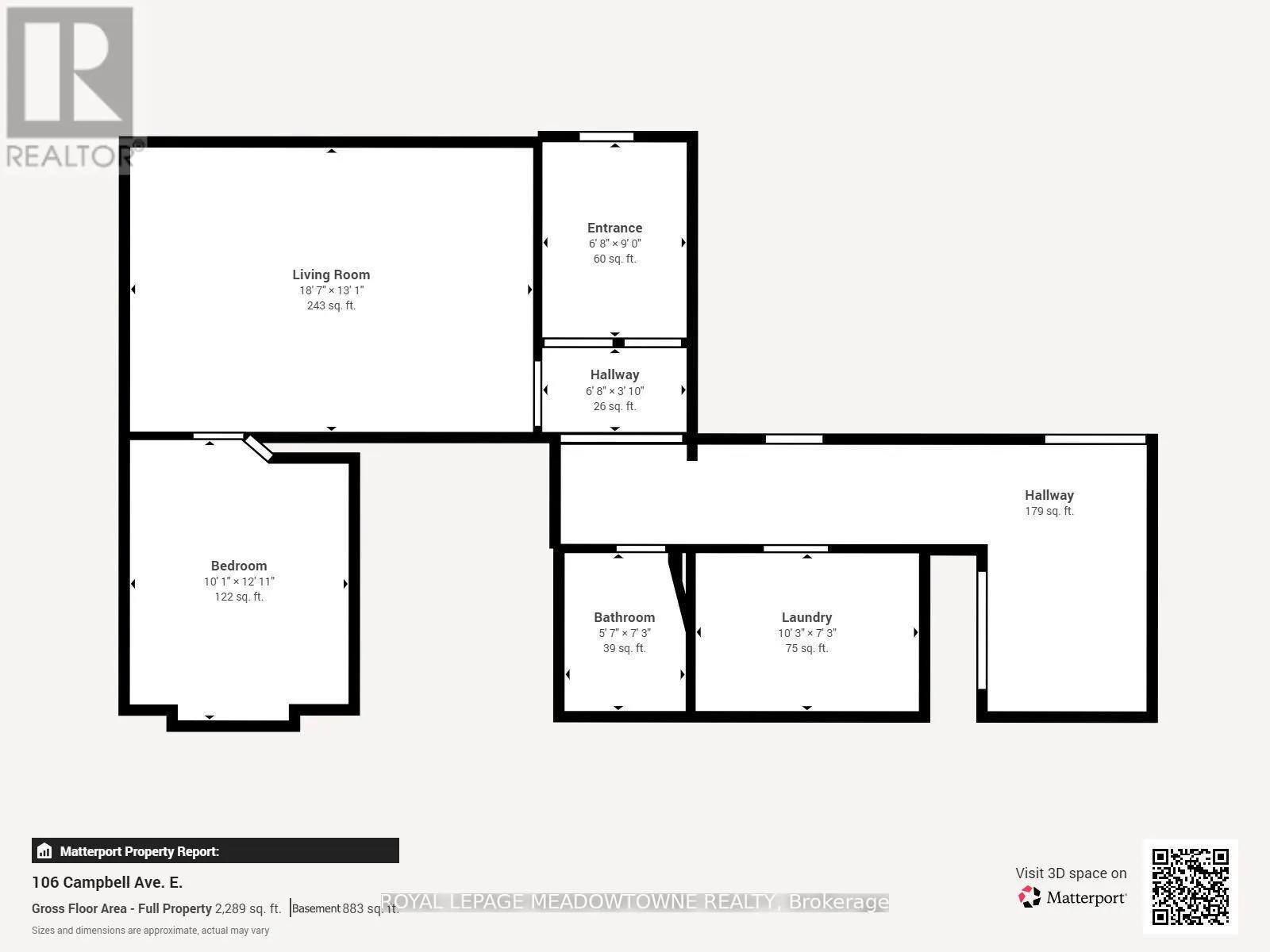
Cross Streets: Guelph Line and Campbell Ave East. ** Directions: Guelph Line exit off 401. Campbell Ave East off of Guelph Line. This meticulously FULLY renovated 3 + 1 Bedroom raised-bungalow has been completely updated from top to bottom. Everything down to the studs. Simply unpack and start living. Enjoy a sun-filled home with an abundance of new windows, highlighting the beautiful new kitchen and spa-like bathrooms. New Roof, plumbing, electric, pot lights, flooring and so much more. Parking for 6 cars on your newly paved driveway. The lower level offers incredible flexibility, featuring a large family room and a home office, plus a generous studio with a separate entrance that's perfect as a private in-law or nanny suite. Experience true indoor-outdoor living with a peaceful and private backyard. The large deck and covered pergola are ideal for entertaining or quiet evenings, surrounded by new sod and stunning gardens. You can't beat this location! Take a short stroll to Campbellville's downtown core to enjoy local coffee shops, restaurants, the post office, and more. With quick highway access, you're just a short drive from Milton, major cycling routes, conservation areas, and Pearson Airport. This home also falls within the highly sought-after Brookville Public School District. Young Family, Downsizers, Multi-Generational...make 106 Campbell Ave E your home. (id:27476)

Property Highlights

MLS® Number
W12484998
Type
Single Family
Community Name
Campbellville
Ownership Type
Freehold
Land Size
100.3 x 190 Acre
Parking Space Total
7

Building

Building Type
House
Storeys
1.00
Square Footage
1100 - 1500 sqft
Bathrooms Total
3
Bedrooms Above Ground
3
Bedrooms Total
4
Amenities
Fireplace(s) Park, Schools
Exterior Finish
Brick, Vinyl siding
Fireplace Present
Yes
Basement Type
N/A (Finished)
Basement Features
Walk out
Building Heating Type
Forced air
Heating Fuel
Natural gas
Building Cooling Type
Central air conditioning

Utilities

Water
Community Water System
Utility Sewer
Septic System

Location