106 Campbell Avenue E, Milton, Ontario L0P 1B0

Listed for:
$1,249,000
4 beds
3 baths
Listed 35 days ago
House for rent: 106 Campbell Avenue E, Milton, Ontario L0P 1B0

View all 50 photos

Learn more about this property
Listing provided by:
ROYAL LEPAGE MEADOWTOWNE REALTY
MLS® number:
W12579206
Agent:
Aaron Ferguson
*Indicates required field
Name is required
Email is required
Please enter a valid phone number (e.g., 416-111-1111).

About

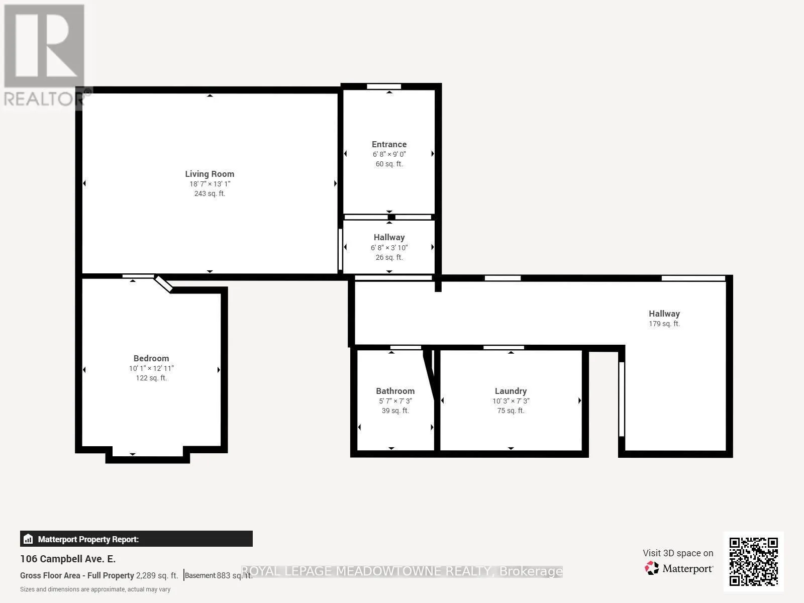
Cross Streets: Guelph Line and Campbell Ave East. ** Directions: Guelph Line exit off 401. Campbell Ave East off Guelph Line. OVER $350,000 INVESTED - FULLY renovated 3 + 1 Bedroom raised-bungalow has been completely updated from top to bottom. Everything down to the studs. Simply unpack and start living. Enjoy a sun-filled home with an abundance of new windows, highlighting the beautiful new kitchen and spa-like bathrooms. New Roof, plumbing, electric, pot lights, flooring and so much more. Parking for 6 cars on your newly paved driveway. The lower level offers incredible flexibility, featuring a large family room and a home office, 3 Pc. bathroom with heated floors, plus a generous studio with a separate entrance that's perfect as a private in-law or nanny suite. Experience true indoor-outdoor living with a peaceful and RARE big backyard. The large deck and covered pergola are ideal for entertaining or quiet evenings, surrounded by new sod and stunning gardens. Triple foam insulation and high quality windows for superb efficiency. You can't beat this location! Take a short stroll to Campbellville's downtown core to enjoy local coffee shops, restaurants, the post office, and more. With quick highway access, you're just a short drive from Milton, major cycling routes, conservation areas, and Pearson Airport. This home also falls within the highly sought-after Brookville Public School District. Young Family, Down sizers, Multi-Generational...make 106 Campbell Ave E your home. (id:27476)

Property Highlights

MLS® Number
W12579206
Type
Single Family
Community Name
Campbellville
Ownership Type
Freehold
Land Size
100.3 x 190 Acre
Parking Space Total
7

Building

Building Type
House
Storeys
1.00
Square Footage
1100 - 1500 sqft
Bathrooms Total
3
Bedrooms Above Ground
3
Bedrooms Total
4
Amenities
Fireplace(s) Park, Schools
Exterior Finish
Brick, Vinyl siding
Fireplace Present
Yes
Basement Type
N/A (Finished)
Basement Features
Walk out
Building Heating Type
Forced air
Heating Fuel
Natural gas
Building Cooling Type
Central air conditioning

Utilities

Water
Community Water System
Utility Sewer
Septic System

Location