830 Apple Terrace, Milton, Ontario L9T 7E7

Listed for:
$1,679,990
6 beds
5 baths
Listed 76 days ago
House for rent: 830 Apple Terrace, Milton, Ontario L9T 7E7

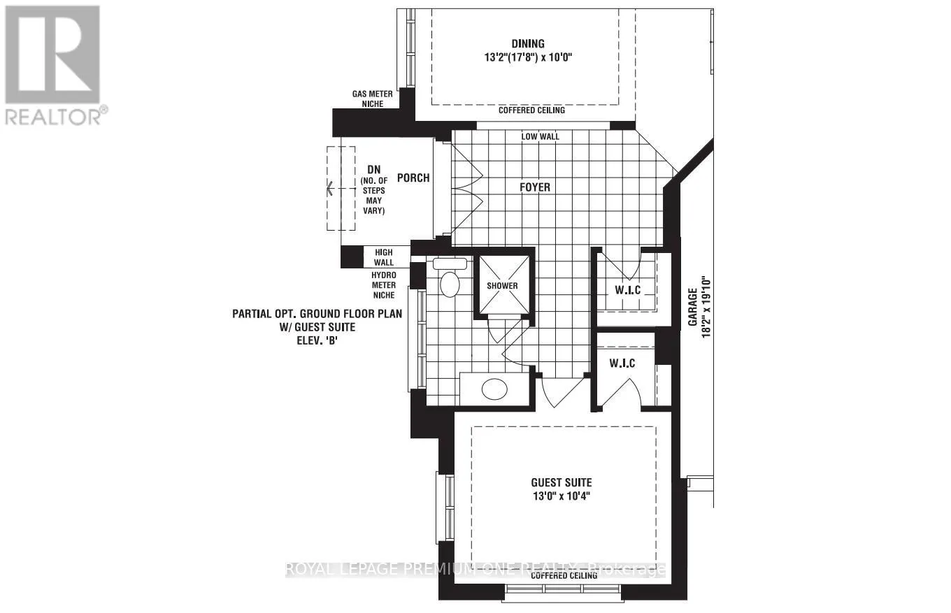
View all 50 photos

About

Britannia Road & Thompson Road S This exquisitely designed home offers the perfect blend of contemporary style and practical living, ideal for both professionals and families. With $300,000 in total upgrades, this residence stands out with premium finishes and exceptional craftsmanship. Step inside to an inviting open-concept layout featuring high ceilings 10' Main 9' Second and 9' Basement with Walk-Up and Side Door, large windows along with 8' interior doors and a bright, airy atmosphere with a seamless flow throughout. The home showcases hardwood flooring throughout, 24'' x 24'' Porcelain Tile, elegant metal picket railings, and glass showers in all bathrooms, enhancing the modern, luxurious feel. Offering 5 bedrooms, including a main-floor guest suite with a 3-piece ensuite, this home provides ample comfort for family and visitors. The upper level includes a convenient laundry room with generous storage, and a serene primary bedroom retreat complete with two large walk-in closets and a 5-piece spa-like ensuite. The gourmet kitchen is a chef's dream, featuring a modern design, quartz countertops, stylish cabinetry, stainless steel appliances, a large center island, and a spacious pantry-perfect for cooking and entertaining alike. Additional highlights include a walk-up basement, abundant natural light, and enhanced curb appeal. Located in an affluent, highly sought-after neighborhood, this home is close to supermarkets, parks, schools, upscale dining, charming shops, and offers quick access to major highways. This beautifully crafted residence in one of Halton's most desirable communities is truly the pinnacle of modern living. Don't miss the opportunity to make it yours! (id:27476)

Property Highlights

MLS® Number
W12590640
Type
Single Family
Community Name
1026 - CB Cobban
Ownership Type
Freehold
Land Size
52 x 88.7 FT ; 5.14x5.14x5.14x5.14x38.68x88.72x34.20|under 1/2 acre
Parking Space Total
6

Building

Building Type
House
Storeys
2.00
Square Footage
2500 - 3000 sqft
Bathrooms Total
5
Bedrooms Above Ground
5
Bedrooms Total
6
Amenities
Fireplace(s)
Exterior Finish
Brick
Fireplace Present
Yes
Basement Type
Full (Unfinished)
Basement Features
Building Heating Type
Forced air
Heating Fuel
Natural gas
Building Cooling Type
Central air conditioning

Utilities

Water
Municipal water
Utility Sewer
Sanitary sewer

Room Layout

Kitchen
Main level
3.96 m x 2.37 m
Eating area
Main level
3.96 m x 2.74 m
Family room
Main level
5.48 m x 3.65 m
Dining room
Main level
4.02 m x 3.04 m
Other
Main level
3.96 m x 3.17 m
Laundry room
Upper Level
2.43 m x 1.99 m
Primary Bedroom
Upper Level
5.79 m x 3.65 m
Bedroom 2
Upper Level
3.62 m x 3.23 m
Bedroom 3
Upper Level
3.96 m x 2.86 m
Bedroom 4
Upper Level
3.62 m x 3.23 m
Bedroom 5
Upper Level
3.84 m x 2.86 m

Location

Learn more about this property
Listing provided by:
ROYAL LEPAGE PREMIUM ONE REALTY
MLS® number:
W12590640
Agent:
Robert Mario Vigna
*Indicates required field
Name is required
Email is required
Please enter a valid phone number (e.g., 416-111-1111).