1133 Barclay Circle, Milton, Ontario L9T 5V9

Listed for:
$855,000
3 beds
3 baths
Listed 16 days ago
Row / Townhouse for rent: 1133 Barclay Circle, Milton, Ontario L9T 5V9

View all 36 photos

Learn more about this property
Listing provided by:
RE/MAX REAL ESTATE CENTRE INC.
MLS® number:
W12590822
Agent:
Sanjiv Khanna
*Indicates required field
Name is required
Email is required
Please enter a valid phone number (e.g., 416-111-1111).

About

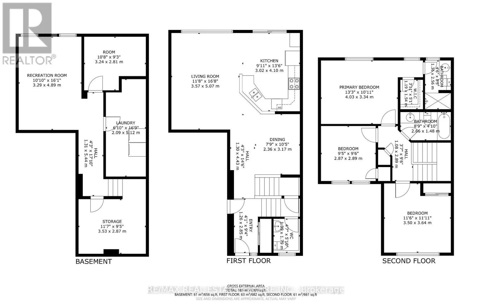
Derry/Thompson Opportunity to Renovate or Move Right In this Bright 3-Bedroom, 2.5-Bath Semi with Finished Basement! Discover this 1343 sq. ft. home plus a finished basement, offering endless possibilities-whether you're ready to move in or customize to your taste. The main floor boasts hardwood flooring, creating a warm and inviting atmosphere. Upstairs, enjoy three spacious bedrooms, including a primary suite with its own ensuite bathroom. Located in a family-friendly neighborhood, this home is close to schools, parks, and all amenities. Benefit from two-car parking on the driveway with no sidewalk-a rare and practical feature! (id:27476)

Property Highlights

MLS® Number
W12590822
Type
Single Family
Community Name
1023 - BE Beaty
Ownership Type
Freehold
Land Size
23 x 80.4 FT
Parking Space Total
3

Building

Building Type
Row / Townhouse
Storeys
2.00
Square Footage
1100 - 1500 sqft
Bathrooms Total
3
Bedrooms Above Ground
3
Bedrooms Total
3
Amenities
Park, Public Transit, Schools
Exterior Finish
Brick
Fireplace Present
No
Basement Type
N/A (Finished)
Basement Features
Building Heating Type
Forced air
Heating Fuel
Natural gas
Building Cooling Type
Central air conditioning

Utilities

Water
Municipal water
Utility Sewer
Sanitary sewer

Room Layout

Primary Bedroom
Second level
5.19 m x 3.18 m
Bedroom 2
Second level
3.54 m x 3.44 m
Bedroom 3
Second level
2.87 m x 2.69 m
Recreational, Games room
Basement
4.73 m x 3.26 m
Office
Basement
2.91 m x 2.76 m
Living room
Main level
3.54 m x 4.9 m
Dining room
Main level
3.56 m x 3.18 m
Kitchen
Main level
3.93 m x 2.99 m

Location