433 Kennedy Circle, Milton, Ontario L9T 7E7

Listed for:
$1,319,990
4 beds
3 baths
Listed 30 days ago
House for rent: 433 Kennedy Circle, Milton, Ontario L9T 7E7

View all 4 photos

Learn more about this property
Listing provided by:
ROYAL LEPAGE PREMIUM ONE REALTY
MLS® number:
W12591224
Agent:
Robert Mario Vigna
*Indicates required field
Name is required
Email is required
Please enter a valid phone number (e.g., 416-111-1111).

About

Brittania Road & Thompson Road S Brand-new Single Home in Milton, a most sought-after neighbourhood of The Sixteen Mile Creek! This exquisitely designed house is the ultimate combination of contemporary style and practical living, making it suitable for both professionals and families. Perfect for entertaining or daily living, this open-concept space boasts high ceilings, Large windows throughout, and a bright, airy design with smooth flow. Featuring 4 bedrooms plus Laundry on Upper Floor with plenty of storage space, a calm main bedroom with 1 Large Walk-in closet, 4 Granite countertops, stylish cabinetry, and a sizeable centre Island for creative cooking and Pantry. A lot of natural light, improved curb appeal! Well situated in the affluent neighbourhood, A short distance from supermarkets, stores, near parks, schools, upscale dining options, quaint stores, and quick access to the highway. This exquisitely crafted residence in one of Halton's most desirable neighbourhoods is the pinnacle of modern living. Don't pass up the chance to claim it as your own! Don't miss this one! (id:27476)

Property Highlights

MLS® Number
W12591224
Type
Single Family
Community Name
1026 - CB Cobban
Ownership Type
Freehold
Land Size
30.1 x 88.7 FT|under 1/2 acre
Parking Space Total
2

Building

Building Type
House
Storeys
2.00
Square Footage
2000 - 2500 sqft
Bathrooms Total
3
Bedrooms Above Ground
4
Bedrooms Total
4
Amenities
Fireplace(s)
Exterior Finish
Brick
Fireplace Present
Yes
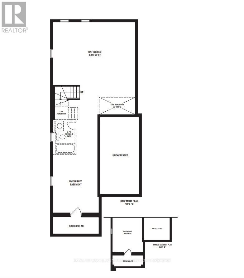
Basement Type
Full (Unfinished)
Basement Features
Building Heating Type
Forced air
Heating Fuel
Natural gas
Building Cooling Type
Central air conditioning

Utilities

Water
Municipal water
Utility Sewer
Sanitary sewer

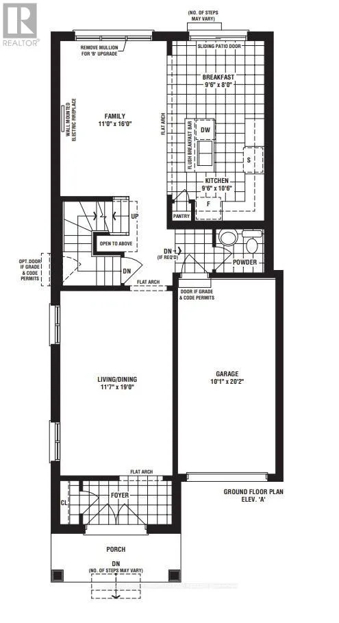
Room Layout

Kitchen
Main level
3.23 m x 2.92 m
Eating area
Main level
2.92 m x 2.44 m
Family room
Main level
4.87 m x 3.35 m
Dining room
Main level
5.79 m x 3.56 m
Living room
Main level
5.79 m x 3.56 m
Primary Bedroom
Upper Level
4.93 m x 3.75 m
Bedroom 2
Upper Level
3.04 m x 2.8 m
Bedroom 3
Upper Level
3.53 m x 3.35 m
Bedroom 4
Upper Level
3.23 m x 2.43 m
Laundry room
Upper Level
2.8 m x 1.82 m

Location

Street Spotlight - For sale