633 Wettlaufer Terrace, Milton, Ontario L9T 8N1

Listed for:
$1,439,000
5 beds
4 baths
Listed 26 days ago
House for rent: 633 Wettlaufer Terrace, Milton, Ontario L9T 8N1

View all 49 photos

Learn more about this property
Listing provided by:
ROYAL LEPAGE MEADOWTOWNE REALTY
MLS® number:
W12604070
Agent:
Jason Kyle Power
*Indicates required field
Name is required
Email is required
Please enter a valid phone number (e.g., 416-111-1111).

About

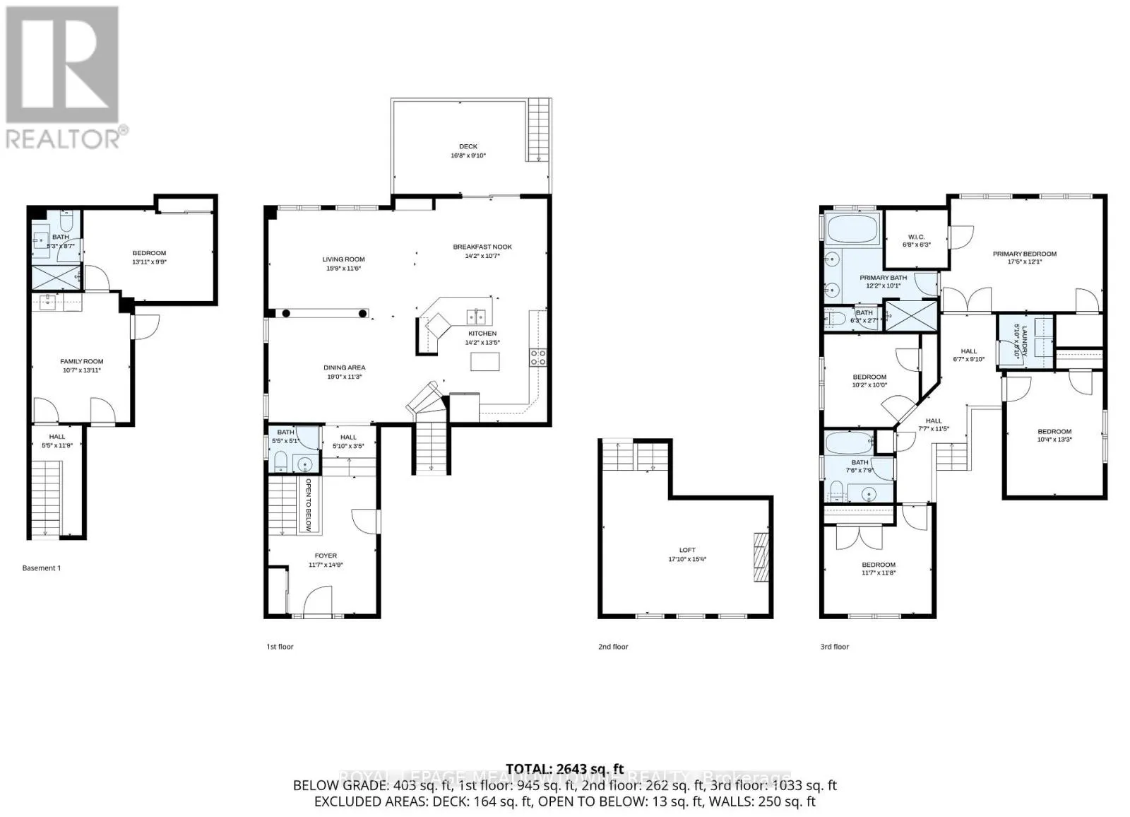
Cross Streets: Pringle & Wettlaufer Terrace. ** Directions: Savoline to Kincardine Terrace to Wettlaufer Ter. MUST SEE! This gorgeous 43-ft lot truly has it all! Set on a Premium Ravine lot, this stunning detached home offers over 3,000 sq. ft. of modern living in one of Milton's most desirable neighbourhoods. From the moment you arrive, the curb appeal stands out with a beautifully landscaped yard with a built-in irrigation system, a custom front-yard waterfall and stream, and landscaped stone front steps, creating a warm and memorable first impression. Inside, you'll find a bright, open-concept layout featuring a sunlit living area, an elegant dining room, an upgraded kitchen with quartz countertops, stainless steel appliances, abundant storage, and potlights. The family room is equally impressive with potlights and a gas fireplace, offering the perfect place to gather and unwind. The upper level includes a bonus living area-ideal for a media room or family lounge-along with four generous bedrooms. The primary suite is a true retreat with his-and-her walk-in closets and a spa-like ensuite featuring double sinks, a stand-up shower, and a private water closet. The primary bedroom also features lower-set windows designed to highlight the ravine views, allowing you to enjoy the natural landscape right from your bedside. All bedrooms include large windows and ample closet space. The partially finished basement adds even more versatility with a rec room complete with a kitchen sink and mini fridge, a full bathroom, a bedroom with lots of potlights, and plenty of open space ready for your finishing touches. Step outside to your private backyard oasis, complete with an oversized deck, beautiful landscaping, and peaceful ravine views. In the summertime, the yard comes alive with hummingbirds, cardinals, and natural surroundings, offering a serene, nature-filled escape-perfect for relaxing or entertaining. Located close to top-rated schools, parks, shopping, restaurants, the Milton GO Station, Highway 401,and the upcoming university campus, this home delivers style and location! (id:27476)

Property Highlights

MLS® Number
W12604070
Type
Single Family
Community Name
1036 - SC Scott
Ownership Type
Freehold
Land Size
54.8 x 95.4 FT ; 95.38ft x 43.02ft x 6.61ft x 89.84ft
Parking Space Total
4

Building

Building Type
House
Storeys
2.00
Square Footage
2500 - 3000 sqft
Bathrooms Total
4
Bedrooms Above Ground
4
Bedrooms Total
5
Amenities
Fireplace(s) Golf Nearby, Hospital
Exterior Finish
Brick, Vinyl siding
Fireplace Present
Yes
Basement Type
N/A (Partially finished)
Basement Features
Building Heating Type
Forced air
Heating Fuel
Natural gas
Building Cooling Type
Central air conditioning

Utilities

Water
Municipal water
Utility Sewer
Septic System

Room Layout

Primary Bedroom
Second level
5.16 m x 3.64 m
Bedroom 2
Second level
4.11 m x 3.19 m
Bedroom 3
Second level
3.03 m x 3.03 m
Bedroom 4
Second level
3.01 m x 3.63 m
Bedroom 5
Basement
4.27 m x 3 m
Recreational, Games room
Basement
4.25 m x 3.03 m
Bathroom
Basement
1.92 m x 1.47 m
Dining room
Main level
4.76 m x 3.35 m
Living room
Main level
5.48 m x 3.31 m
Kitchen
Main level
3.8 m x 4.24 m
Eating area
Main level
3.53 m x 3.63 m
Family room
In between
5.39 m x 3.89 m

Location