112 - 470 Gordon Krantz Avenue, Milton, Ontario L9E 1Z3

Listed for:
$499,000
2 beds
2 baths
Listed 11 days ago
Apartment for rent: 112 - 470 Gordon Krantz Avenue, Milton, Ontario L9E 1Z3

View all 22 photos

About

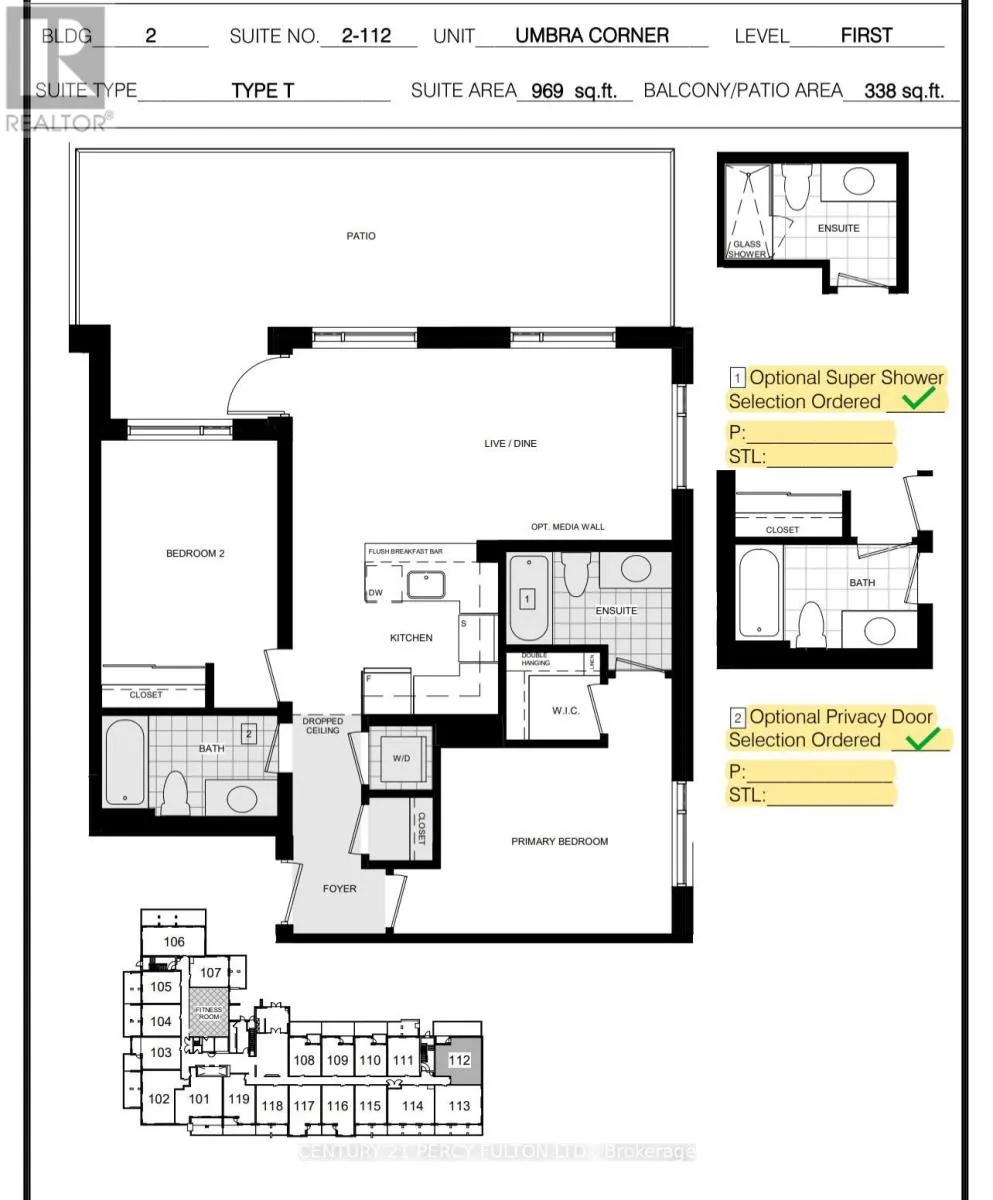
Tremaine/Louis St Laurent Ave Welcome to an exceptional corner suite at Soleil Condos by Mattamy Homes in Milton-where fined design meets effortless living. This luminous 2-bed, 2-bath residence offers 969 sq ft of indoor space plus an expansive 338 sq ft patio, thoughtfully laid out for both everyday comfort and memorable entertaining. Step inside to soaring 9-ft ceilings and rich, modern flooring that flow throughout the home. The fully upgraded bathrooms and chef-inspired kitchen are true showpieces: sleek quartz countertop, striking backsplash, premium stainless-steel appliances, designer deep sink, contemporary cabinetry, and brushed-gold faucet with matching soap dispenser. Smart touch Entry such as keyless entry and a smart thermostat elevate convenience and security. The primary suite is generously proportioned, and features a stylish ensuite with a glass-door standing shower. Bedroom feature a spacious walk-in closet with large window. The second bedroom is equally large, with an oversized window, ample closet space, and a private three-piece bathroom, ideal for family or guests. The open family and dining area looks onto the patio through three large windows, filling the home with daylight and framing serene outdoor views. Outside, the expansive patio serves as a perfect venue for hosting friends, dining al fresco, or simply enjoying quiet evenings. Building amenities enrich daily life: a rooftop garden terrace, fitness center, and social lounge. The suite includes one underground parking ( designated handicap-accessible parking, offering ease and convenience for residents, Next to the Elevator) and one locker. Shows beautifully-arare opportunity that stands out. Great place to call a home : close to shopping, Milton Hospital, public/catholic schools, parks, Public Transit, Restaurants & plazas, with easy access to Highways 401, 407, and 403. (id:27476)

Property Highlights

MLS® Number
W12911846
Type
Single Family
Community Name
1051 - Walker
Maintenance Fee
595.00
Ownership Type
Condominium/Strata
Parking Space Total
1

Building

Building Type
Apartment
Square Footage
900 - 999 sqft
Bathrooms Total
2
Bedrooms Above Ground
2
Bedrooms Total
2
Amenities
Security/Concierge, Exercise Centre, Visitor Parking, Storage - Locker Park, Place of Worship, Public Transit, Schools
Exterior Finish
Concrete
Fireplace Present
No
Basement Type
None
Basement Features
Building Heating Type
Forced air
Heating Fuel
Natural gas
Building Cooling Type
Central air conditioning

Location

Learn more about this property
Listing provided by:
CENTURY 21 PERCY FULTON LTD.
MLS® number:
W12911846
Agent:
Imran Nazir
*Indicates required field
Name is required
Email is required
Please enter a valid phone number (e.g., 416-111-1111).

Street Spotlight - For sale