50 Windover Drive, Minden Hills, Ontario K0M 2K0

Listed for:
$779,900
3 beds
2 baths
Listed 89 days ago
House for rent: 50 Windover Drive, Minden Hills, Ontario K0M 2K0

View all 11 photos

Learn more about this property
Listing provided by:
Century 21 Granite Realty Group Inc.
MLS® number:
X12357691
Agent:
Ashley Mckeigue
*Indicates required field
Name is required
Email is required
Please enter a valid phone number (e.g., 416-111-1111).

About

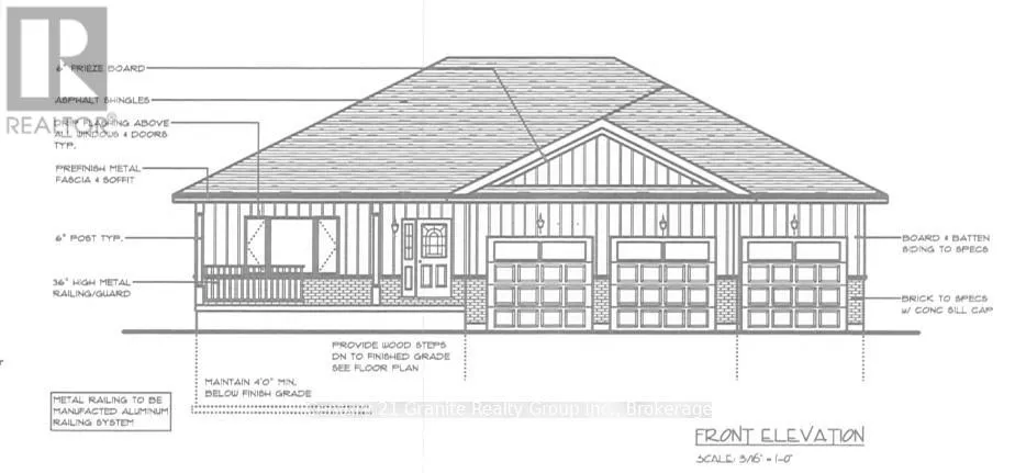
HIGHLAND GATE & DEEP BAY RD NEW CONSTRUCTION TO BE BUILT in Minden! Set in one of Minden's most desirable neighbourhoods, this brand-new build offers 1,585 sq. ft. of modern living with 3 bedrooms, 2 bathrooms, and the convenience of main floor laundry. The open-concept design seamlessly connects the kitchen, dining, and living areas, creating a bright and functional flow that's ideal for both everyday living and entertaining. A triple-car garage with inside entry adds convenience, while the full basement provides excellent potential for additional living space or storage. Built with quality craftsmanship and backed by a 7-Year Tarion Warranty, this home also gives buyers the opportunity to select interior and exterior finishes to match their style. Within walking distance to downtown Minden, you'll enjoy easy access to the Gull River, scenic boardwalk, trails, shops, and nearby boat launches. A fresh new build in a prime location ready for you to make it your own. (id:27476)

Property Highlights

MLS® Number
X12357691
Type
Single Family
Community Name
Minden
Ownership Type
Freehold
Land Size
60 x 150 FT|under 1/2 acre
Parking Space Total
5

Building

Building Type
House
Storeys
1.00
Square Footage
1500 - 2000 sqft
Bathrooms Total
2
Bedrooms Above Ground
3
Bedrooms Total
3
Amenities
Beach, Golf Nearby, Schools
Exterior Finish
Stone, Vinyl siding
Fireplace Present
No
Basement Type
N/A (Unfinished)
Basement Features
Building Heating Type
Forced air
Heating Fuel
Propane
Building Cooling Type
None

Utilities

Water
Municipal water
Utility Sewer
Sanitary sewer

Room Layout

Primary Bedroom
Main level
3.35 m x 4.26 m
Bedroom 2
Main level
3.65 m x 3.04 m
Bedroom 3
Main level
3.04 m x 3.04 m
Kitchen
Main level
5.48 m x 5.79 m
Living room
Main level
5.48 m x 4.57 m
Bathroom
Main level
2.64 m x 1.93 m
Bathroom
Main level
2.74 m x 1.52 m
Laundry room
Main level
2.48 m x 2.28 m

Location