60-62 - 3176 Ridgeway Drive, Mississauga, Ontario L5L 5S6

Listed for:
$1
0 beds
0 baths
Listed 8 days ago
Multi-Tenant Industrial for rent: 60-62 - 3176 Ridgeway Drive, Mississauga, Ontario L5L 5S6

View all 3 photos

About

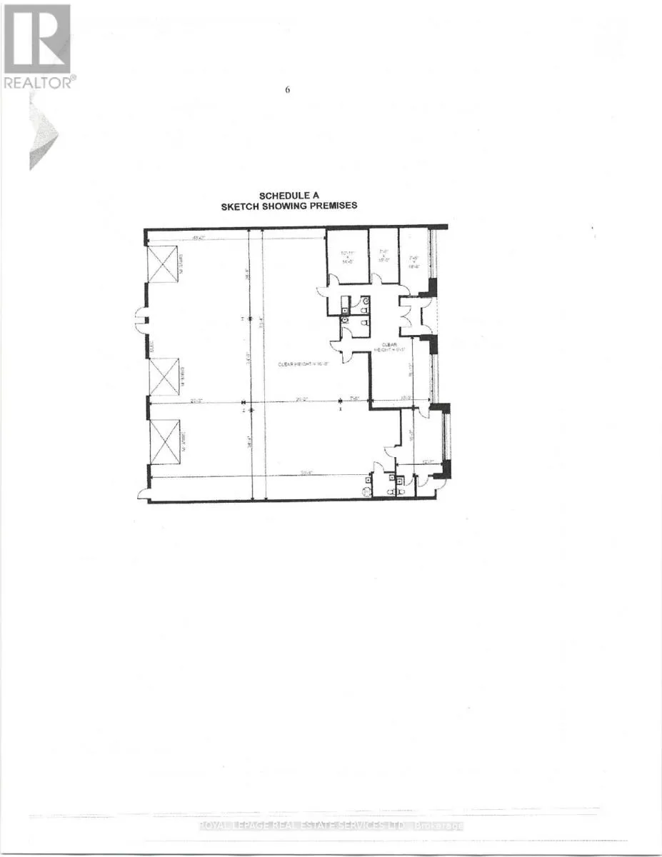
Ridgeway Drive / Dundas Street W CLEAN TRIPLE UNIT WITH NO DEMISING WALLS IN WAREHOUSE AREA. APPROXIMATELY 30% OFFICE COMPONENT. THE UNITS CAN BE DIVIDED INTO A 2500 SF x 3500 SF AND SUBLEASED INDEPENDENTLY. FEATURING RECEPTION, 5 PRIVATE OFFICES, BOARDROOM, BULLPEN/ OPEN AREA & 4 WASHROOMS. WAREHOUSE HAS GOOD CLEAR HEIGHT AND 3 DRIVE-IN DOORS (ONE BEING OVERSIZED), EXCELLENT ON SITE PARKING. WALKING DISTANCE TO RESTAURANTS AND SHOPPING. TRANSIT ON RIDEWAY DRIVE. CONVENIENTLY LOCATED IN CLOSE PROXIMITY TO HWYS QEW, 403 & 407. (id:27476)

Property Highlights

MLS® Number
W12206302
Type
Industrial
Community Name
Western Business Park

Building

Building Type
Multi-Tenant Industrial
Square Footage
5942 sqft
Fireplace Present
No
Basement Type
Basement Features
Building Heating Type
Forced air
Heating Fuel
Natural gas
Building Cooling Type
Partially air conditioned

Utilities

Water
Municipal water

Location

Learn more about this property
Listing provided by:
ROYAL LEPAGE REAL ESTATE SERVICES LTD.
MLS® number:
W12206302
Agent:
Mark Chapman
*Indicates required field
Name is required
Email is required
Please enter a valid phone number (e.g., 416-111-1111).