2286 Woking Crescent, Mississauga, Ontario L5K 1Z7

Listed for:
$3,050,000
6 beds
5 baths
Listed 129 days ago
House for rent: 2286 Woking Crescent, Mississauga, Ontario L5K 1Z7

View all 13 photos

Learn more about this property
Listing provided by:
RE/MAX REAL ESTATE CENTRE INC.
MLS® number:
W12286994
Agent:
Bassam Al-kerwi
*Indicates required field
Name is required
Email is required
Please enter a valid phone number (e.g., 416-111-1111).

About

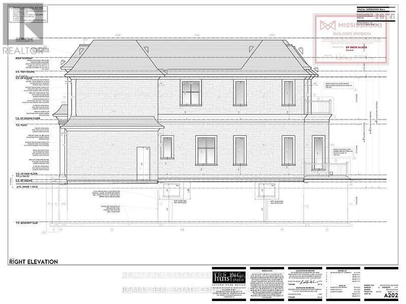
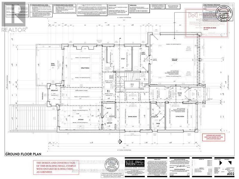
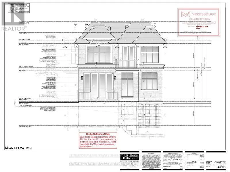
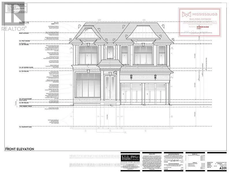
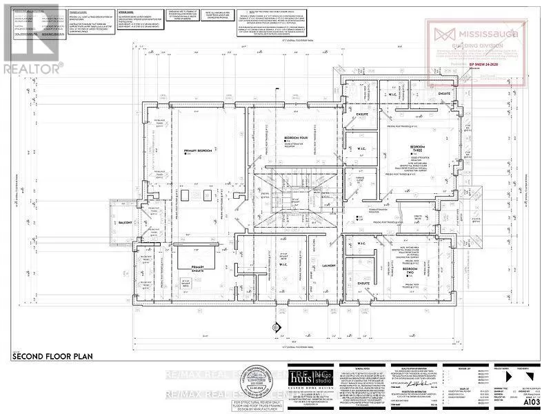
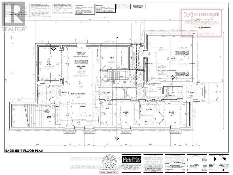
Winston Churchill /Dundas Great Opportunity to Own Your Dream Home in Desirable Sheridan homelands! Have You Ever Imagined Living In A Home That Was Designed And Built Specifically For You? Highest end Custom Home Builder, Better Homes Development & Builder Inc. will build the home of your dreams! completely customizable from top to bottom. Designed By boutique architectural design firm, specializing in the niche of custom residential and custom home design, Huis Design Studio Ltd. Build Over 6000 of total Luxurious Living Space!The Property Would Have 12 ft Ceiling Hight at the Main Floor, 10 ft Ceiling Hight at the Second Floor & 10 ft Ceiling Hight at the Basement! Main floor has Living, Dinning, Kitchen, Servery, Family room as well as study/office area with over 1650 Sqf! Second Floor has Four Bedrooms, Four Washrooms, double sided fireplace at the Primary Room with Breathtaking Balcony, Furnace Room and Balcony! Basement has a 9 ft Wide Walkout with Full Kitchen, 2 bedrooms, 3 Washrooms including Steam Shower, Laundry and Gym Area! Aluminum Triple Glassing Windows and Doors for the Entire Property. Plywood carcass with Veneer Finish Millwork including kitchens, Vanities and Full Custom Closets for All Bedrooms! JennAir Luxury Appliances! Elite Lennox Furnaces with Tankless Owned Two Water Heaters and two A/Cs! Favorable Low Deposit structure within balance upon closing. Currently the property is being constructed expected completion end of summer/fall, 2025. (id:27476)

Property Highlights

MLS® Number
W12286994
Type
Single Family
Community Name
Sheridan
Ownership Type
Freehold
Land Size
50.1 x 120.9 FT
Parking Space Total
6

Building

Building Type
House
Storeys
2.00
Square Footage
3500 - 5000 sqft
Bathrooms Total
5
Bedrooms Above Ground
4
Bedrooms Total
6
Amenities
Fireplace(s) Park, Schools
Exterior Finish
Stone, Stucco
Fireplace Present
Yes
Basement Type
N/A, N/A
Basement Features
Apartment in basement, Walk-up
Building Heating Type
Forced air
Heating Fuel
Natural gas
Building Cooling Type
Central air conditioning

Utilities

Water
Municipal water
Utility Sewer
Sanitary sewer

Room Layout

Primary Bedroom
Second level
7.3 m x 5.2 m
Bedroom 2
Second level
4 m x 3.3 m
Bedroom 3
Second level
4.6 m x 4.26 m
Bedroom 4
Second level
5.2 m x 3.08 m
Laundry room
Second level
3.6 m x 1.85 m
Living room
Main level
3.9 m x 3.3 m
Dining room
Main level
4.26 m x 3.5 m
Laundry room
Main level
5.2 m x 5.2 m
Eating area
Main level
3 m x 1.5 m
Office
Main level
3.1 m x 3.04 m

Location

Community Spotlight: Homes For sale in Your Neighborhood