Upper Unit - 1759 Sherwood Forrest Circle, Mississauga, Ontario L5K 2H7

Listed for:
$4,500
4 beds
3 baths
Listed 155 days ago
House for rent: Upper Unit - 1759 Sherwood Forrest Circle, Mississauga, Ontario L5K 2H7

View all 23 photos

Learn more about this property
Listing provided by:
REAL ONE REALTY INC.
MLS® number:
W12312909
Agent:
Kevin Zou
*Indicates required field
Name is required
Email is required
Please enter a valid phone number (e.g., 416-111-1111).

About

Mississauga Rd/Dundas Close to UTM! Free high speed Wi-Fi! Students and newcomers are welcome! First floor partially furnished! Landlord takes care of lawn! Close to shopping mall, park! Quiet Sherwood Forrest home with lots upgrades. Renovated kitchen & baths, hardwood floor thru-out. Fantastic spacious layout with a main floor office. Professionally landscaped gardens, front covered porch area, and a walk-out from deck to a private cedar lined backyard. Basement not included. Tenant responsible for 65% of whole house utilities. (id:27476)

Property Highlights

MLS® Number
W12312909
Type
Single Family
Community Name
Sheridan
Ownership Type
Freehold
Land Size
60.2 x 125.1 FT
Parking Space Total
3

Building

Building Type
House
Storeys
2.00
Square Footage
2500 - 3000 sqft
Bathrooms Total
3
Bedrooms Above Ground
4
Bedrooms Total
4
Exterior Finish
Brick
Fireplace Present
Yes
Basement Type
N/A
Basement Features
Separate entrance
Building Heating Type
Forced air
Heating Fuel
Natural gas
Building Cooling Type
Central air conditioning

Utilities

Water
Municipal water
Utility Sewer
Sanitary sewer

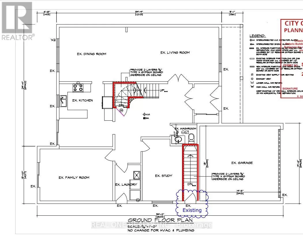
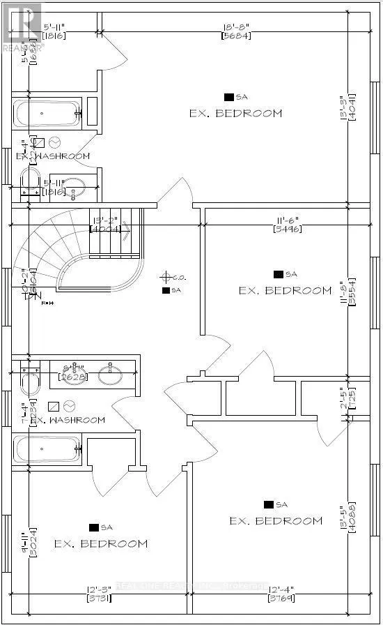
Room Layout

Bedroom 4
Second level
3.7 m x 3 m
Bathroom
Second level
2.6 m x 2.2 m
Bedroom
Second level
7.4 m x 4 m
Bedroom 2
Second level
3.5 m x 3.5 m
Bedroom 3
Second level
4 m x 3.7 m
Family room
Main level
5 m x 4 m
Living room
Main level
4 m x 7 m
Dining room
Main level
5 m x 4 m
Kitchen
Main level
4.5 m x 4 m
Office
Main level
4.5 m x 3.5 m

Location

Community Spotlight: Homes For rent in Your Neighborhood