1115 Derry Road E, Mississauga, Ontario L5T 1P3

Listed for:
$35
0 beds
3 baths
Listed 81 days ago
1115 Derry Road E, Mississauga, Ontario L5T 1P3

View all 8 photos

Learn more about this property
Listing provided by:
SPARK REALTY INC.
MLS® number:
W12374530
Agent:
Paul Kochhar
*Indicates required field
Name is required
Email is required
Please enter a valid phone number (e.g., 416-111-1111).

About

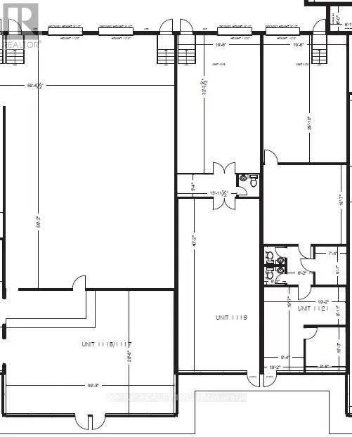
Cross Streets: Between Dixie & Tomken at Maxwell. ** Directions: Facing Derry Road Between Dixie & Tomken at Maxwell. Offering units 1115 (@ 1954sqrft), 1117 (@ 1954sqrft), 1119 (1792sqrft) and 1121 (1788sqrft) are each available either as separate units or all together. This listing describes the total square footage of 7488sqrft for all 4 units. Rare opportunity to lease prime commercial space with direct exposure on Derry Rd in a high-traffic, high-visibility plaza. These versatile unit is ideal for a wide range of uses including retail, showroom, warehouse, restaurant or catering, grocery, real estate brokerage, or professional office space. Features include prominent street-facing frontage, truck-level shipping access for 53 ft. trailers and all units are separately metered with gas and hydro. A flexible layout suitable for retail, office, warehousing, distribution, and light manufacturing or assembly operations. Strategically located with convenient access to Highways 410, 407, and 401. Surrounded by established businesses in a busy commercial hub a fantastic opportunity to grow your business. Net rent ranges from $35 to $36 per sq ft, depending on proposed use. Additional TMI applies. (id:27476)

Property Highlights

MLS® Number
W12374530
Type
Retail
Community Name
Northeast

Building

Square Footage
7488 sqft
Bathrooms Total
3
Fireplace Present
No
Basement Type
Basement Features
Building Heating Type
Forced air
Heating Fuel
Natural gas
Building Cooling Type
Fully air conditioned

Utilities

Water
Municipal water

Location

Street Spotlight - For lease