108 - 3170 Erin Mills Parkway, Mississauga, Ontario L5L 0B6

Listed for:
$675,000
2 beds
2 baths
Listed 3 days ago
Apartment for rent: 108 - 3170 Erin Mills Parkway, Mississauga, Ontario L5L 0B6

View all 19 photos

Learn more about this property
Listing provided by:
Royal Lepage Real Estate Associates
MLS® number:
W12379669
Agent:
Michele Dunlop
*Indicates required field
Name is required
Email is required
Please enter a valid phone number (e.g., 416-111-1111).

About

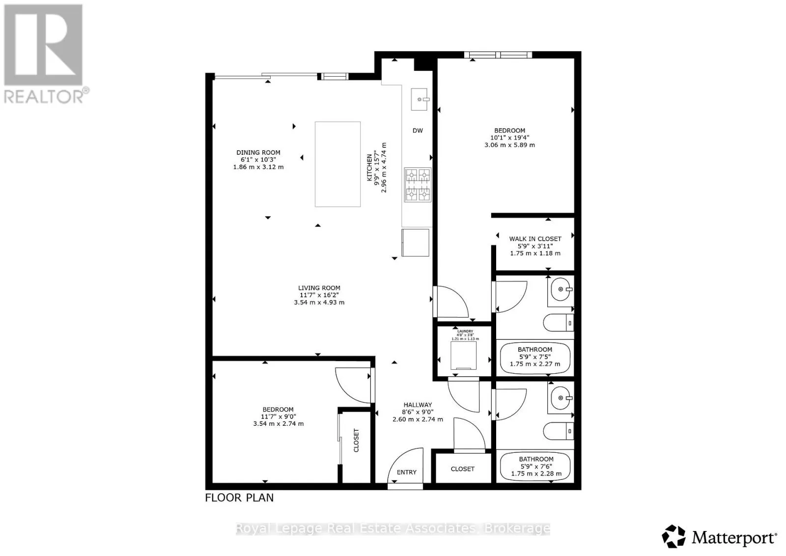
Cross Streets: Erin Mills Pkwy & Dundas. ** Directions: North of Dundas and Erin Mills Pkwy. This is Windows on the Green! A bright and spacious 2-bedroom, 2 full bathroom suite that backs onto the Glen Erin Trail for rare privacy and tranquility. This desirable main-floor suite is not your typical condo layout, features large windows, 9-foot ceilings, and a dining area walk-out to a private terrace with a gas BBQ hookup. The primary retreat comfortably fits a king-size bed and offers a private ensuite. Enjoy 2 side-by-side parking spaces, 2 lockers (1 standard + 1 executive), and convenient bike storage, perfect for exploring the endless nearby trails, parks, or walking your dog right from your doorstep. Located in the community of Erin Mills, steps to shopping, UTM, close to Credit Valley Hospital, GO Transit, and major highways. Resort-style amenities include underground visitor parking, a south-facing rooftop terrace, party room with bar & fireplace, a welcoming main floor lounge with flat screen TV, and a fully equipped exercise room. Just waiting for you!!! (id:27476)

Property Highlights

MLS® Number
W12379669
Type
Single Family
Community Name
Erin Mills
Maintenance Fee
574.85
Ownership Type
Condominium/Strata
Parking Space Total
2

Building

Building Type
Apartment
Square Footage
900 - 999 sqft
Bathrooms Total
2
Bedrooms Above Ground
2
Bedrooms Total
2
Amenities
Exercise Centre, Party Room, Visitor Parking, Separate Heating Controls, Storage - Locker Hospital, Park, Public Transit, Place of Worship, Schools
Exterior Finish
Brick
Fireplace Present
No
Basement Type
None
Basement Features
Building Heating Type
Forced air
Heating Fuel
Natural gas
Building Cooling Type
Central air conditioning

Location