3 - 205 Export Boulevard W, Mississauga, Ontario L5S 1Z2

Listed for:
$2,900
0 beds
2 baths
Listed 257 days ago
Offices for rent: 3 - 205 Export Boulevard W, Mississauga, Ontario L5S 1Z2

View all 4 photos

About

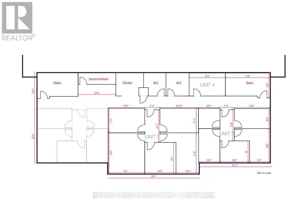
Cross Streets: Derry Rd & Hurontario. ** Directions: Edwards Blvd & Derry Rd. Bright updated office space with high ceilings. 2nd level walkup space with wide staircases. Ample parking. Common area consists of large reception and kitchen with 2 washrooms. Fibre optic and unit security available to the building. Offices are clean and in move in condition. Tenant cleans their own usable space and Landlord cleans common areas. (id:27476)

Property Highlights

MLS® Number
W12389984
Type
Office
Community Name
Gateway
Land Size
33 x 143 M
Parking Space Total
4

Building

Building Type
Offices
Square Footage
1430 sqft
Bathrooms Total
2
Amenities
Public Transit
Fireplace Present
No
Basement Type
Basement Features
Building Heating Type
Forced air
Heating Fuel
Natural gas
Building Cooling Type
Fully air conditioned

Utilities

Water
Municipal water

Location

Learn more about this property
Listing provided by:
RE/MAX WEST REALTY INC.
MLS® number:
W12389984
Agent:
Grant Fisher
*Indicates required field
Name is required
Email is required
Please enter a valid phone number (e.g., 416-111-1111).

Street Spotlight - For lease