1-3 - 205 Export Boulevard W, Mississauga, Ontario L5S 1Z2

Listed for:
$17
0 beds
2 baths
Listed 130 days ago
Offices for rent: 1-3 - 205 Export Boulevard W, Mississauga, Ontario L5S 1Z2

View all 4 photos

About

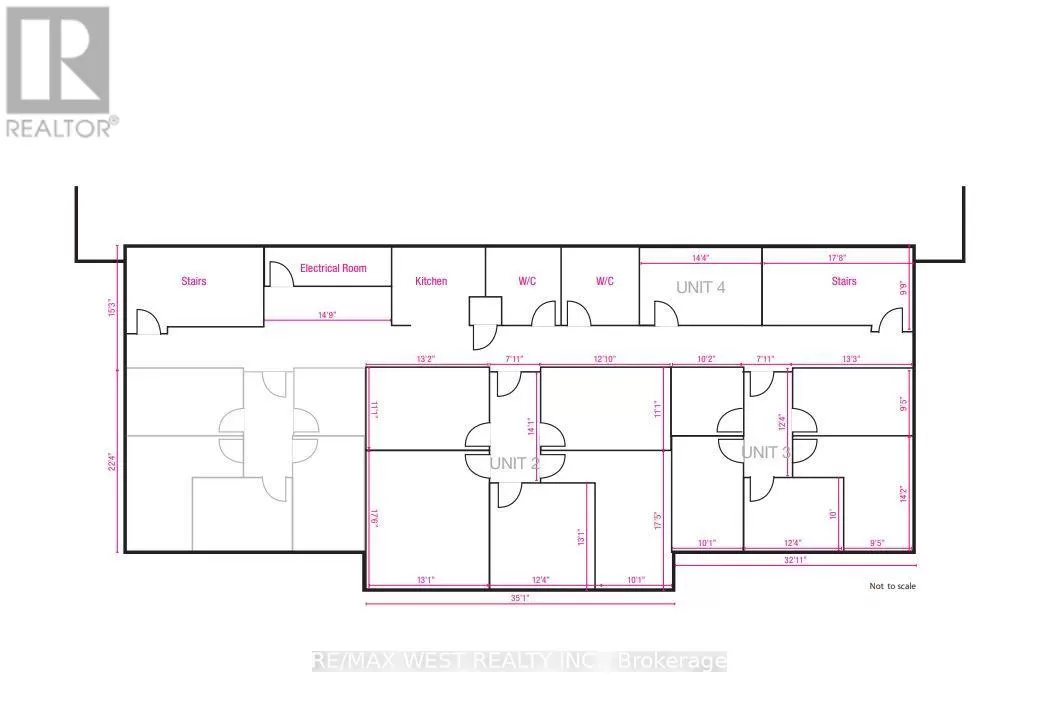
Cross Streets: Derry Rd & Hurontario. ** Directions: Edwards Blvd & Derry Rd. 2nd floor walk up space. Bright high ceilings updated office space. Ample parking outside door. Common area consists of large kitchen, 2 washrooms and large reception area. Occupancy is based on 7:30 am -5:30pm Monday to Friday. Tenant pays for utilities use ( Gas & Electricity). Fibre opt available to the space. (id:27476)

Property Highlights

MLS® Number
W12389996
Type
Office
Community Name
Gateway
Land Size
33 x 143 M
Parking Space Total
20

Building

Building Type
Offices
Square Footage
4800 sqft
Bathrooms Total
2
Amenities
Public Transit
Fireplace Present
No
Basement Type
Basement Features
Building Heating Type
Forced air
Heating Fuel
Natural gas
Building Cooling Type
Fully air conditioned

Utilities

Water
Municipal water

Location

Learn more about this property
Listing provided by:
RE/MAX WEST REALTY INC.
MLS® number:
W12389996
Agent:
Grant Fisher
*Indicates required field
Name is required
Email is required
Please enter a valid phone number (e.g., 416-111-1111).

Community Spotlight: Homes For lease in Your Neighborhood