2154 Oneida Crescent, Mississauga, Ontario L5C 1V6

Listed for:
$2,799,000
5 beds
4 baths
Listed 40 days ago
House for rent: 2154 Oneida Crescent, Mississauga, Ontario L5C 1V6

View all 49 photos

About

Cross Streets: Queensway W & Stavebank Rd. ** Directions: East. Located in a the prestigious Credit Valley Golf Club area is a rare opportunity to own a unique property, a 136-foot-wide lot with almost an acre of sprawling sunbathed gardens. Enjoy the magnificent view of your own exquisite landscape with mature trees from the oversized windows of a tastefully renovated home. Gaze into the garden and sip your drink while sitting in the completely redone chef's kitchen with luxury dacor appliances (including 48" gas range top, 2 dacor built in fridges) and oversized waterfall island. The house spans over 4200 sq ft on the upper levels with almost 6000 sq ft of living space in total. The house features massive primary rooms including both expansive lounge and family room on the main level. The upper level features over 400sqft of master bedroom with cathedral ceiling, his and her's closets, massive windows gazing into the garden, romantic wood burning fireplace and luxurious ensuite with spa. The upper floor is complete with snack bar/kitchenette (with rough in for 2nd laundry) and another 4 generously sized bedrooms and fully renovated bathrooms. This house is a rare opportunity to live in the city while enjoying complete privacy in a Muskoka like setting. Enjoy the closeness to numerous trails, recreation centre, parks, highly rated schools and golf! (id:27476)

Property Highlights

MLS® Number
W12475517
Type
Single Family
Community Name
Erindale
Ownership Type
Freehold
Land Size
134 x 327 FT|1/2 - 1.99 acres
Parking Space Total
9

Building

Building Type
House
Storeys
2.00
Square Footage
3500 - 5000 sqft
Bathrooms Total
4
Bedrooms Above Ground
5
Bedrooms Total
5
Exterior Finish
Brick, Stone
Fireplace Present
Yes
Basement Type
N/A (Finished)
Basement Features
Building Heating Type
Forced air
Heating Fuel
Natural gas
Building Cooling Type
Central air conditioning

Utilities

Water
Municipal water
Utility Sewer
Sanitary sewer

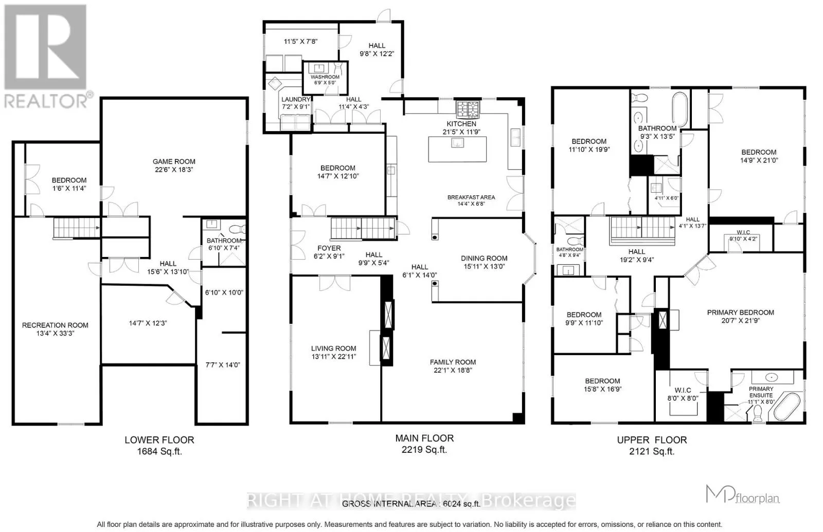
Room Layout

Recreational, Games room
Lower level
10.01 m x 3.8 m
Games room
Lower level
6.81 m x 5.4 m
Living room
Main level
6.7 m x 3.99 m
Dining room
Main level
4.8 m x 3.9 m
Kitchen
Main level
6.56 m x 3.7 m
Office
Main level
4.46 m x 3.7 m
Family room
Main level
6.73 m x 5.73 m
Primary Bedroom
Upper Level
6.4 m x 6.3 m
Bedroom 2
Upper Level
6.6 m x 3.4 m
Bedroom 3
Upper Level
4.54 m x 6.4 m
Bedroom 4
Upper Level
3.04 m x 3.06 m
Bedroom 5
Upper Level
4.57 m x 4.87 m

Location

Learn more about this property
Listing provided by:
RIGHT AT HOME REALTY
MLS® number:
W12475517
Agent:
Ainiwaer Aimaiti
*Indicates required field
Name is required
Email is required
Please enter a valid phone number (e.g., 416-111-1111).