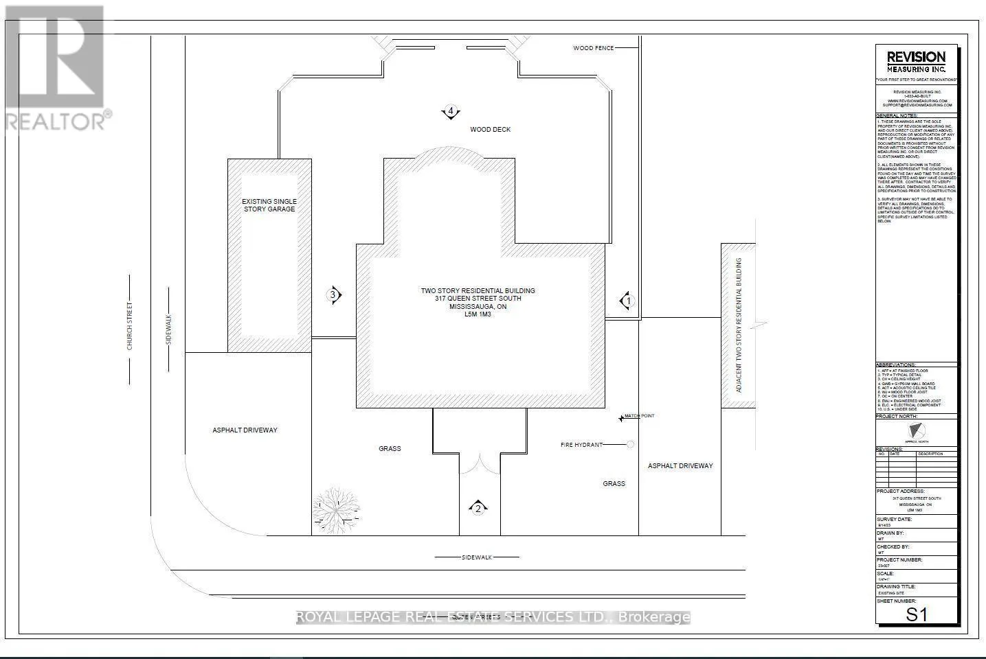
317 Queen Street S, Mississauga, Ontario L5M 1M3

Listed for:
$1,400,000
0 beds
0 baths
Listed 71 days ago
Offices for rent: 317 Queen Street S, Mississauga, Ontario L5M 1M3

View all 37 photos

Learn more about this property
Listing provided by:
ROYAL LEPAGE REAL ESTATE SERVICES LTD.
MLS® number:
W12485239
Agent:
Manuel Choi
*Indicates required field
Name is required
Email is required
Please enter a valid phone number (e.g., 416-111-1111).

About

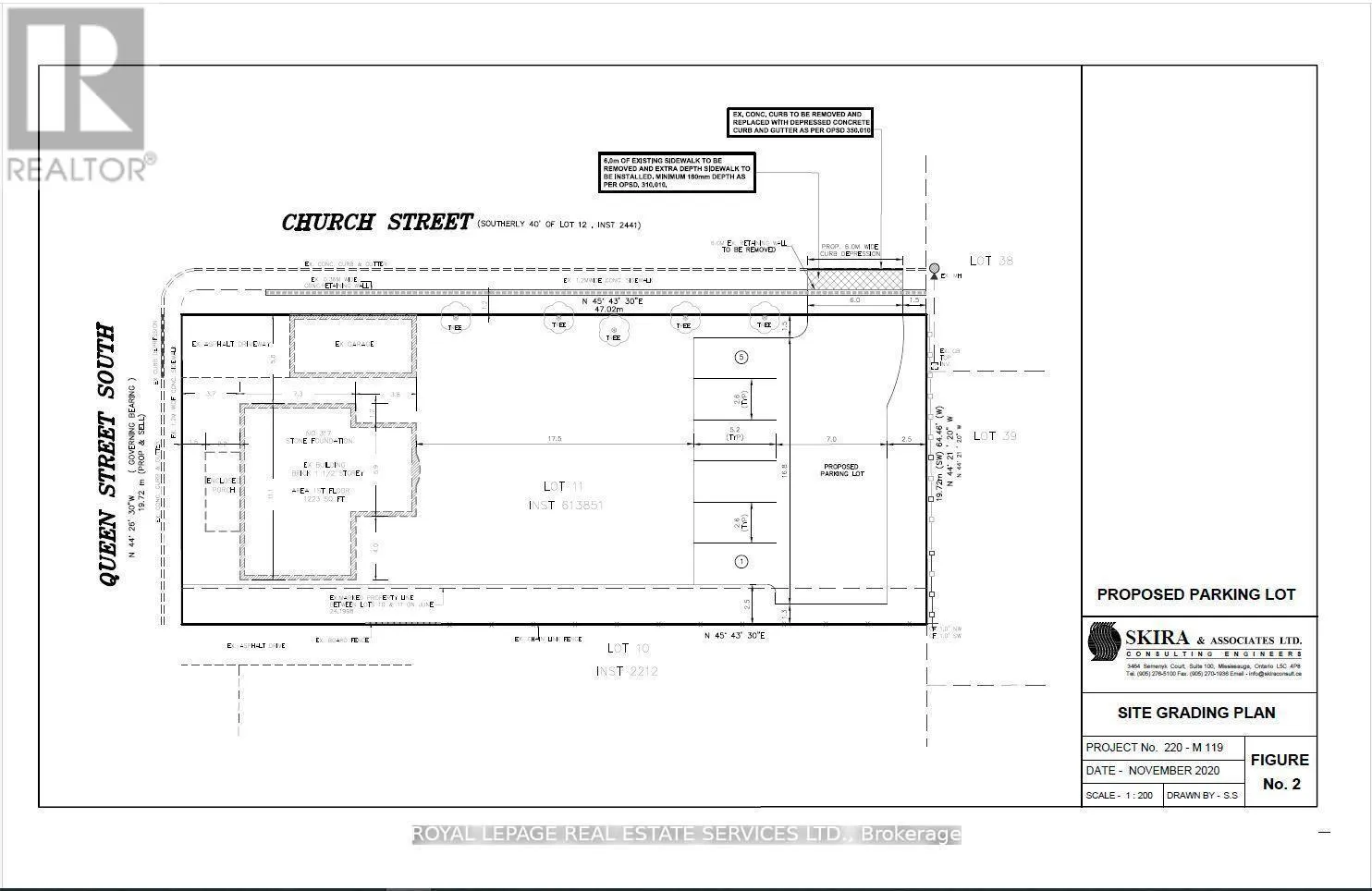
Mississauga Road (Queen St S) & Church Great Opportunity for Investment/Live/Work Property Located at the Corner of Queens St S & Church St in Famous Destination Olde Village of Streetsville. Residence with Commercial Unit, Zoning R3 with Permit Issued on 2002-09-05 for Private Office within Single Family Dwelling (No Employees) Described as Commercial Office - Single User. Classic Georgian Centre Hall Style - Known as the McKeith Home Built in 1852 and it is Designated Under the Terms of the Ontario Heritage Act as Part of the Streetsville Heritage Conservation District, Refer to Heritage Impact Assessment on File. Potential to Convert Entire Home to Commercial Office Space, Proposed Sketch for Additional Parking is on File. See Sketch of Former Kitchen, Now a Blank Slate for Your Dream Kitchen. Newly Renovated Interior, Generous Size Principal Rooms, 2218 sq ft of Living Space. Was Used as a Chiropractor Clinic, Great Street Exposure. Backs onto Green Space and the Credit River Ravine, Gentle Slope with Panoramic View. Newly Renovated Interior, Carpet Free. Updated Furnace & Owned Hot Water Tank in 2017. Washer & Dryer. New Gas Fireplace in Living Room. Attachments: Survey, Pre-Listing Inspection Report, Heritage Impact Assessment Report, Letter from Streetsville Heritage Conservation with FAQ for Future Potential, 2024 Tax Bill, Letter from Credit Valley Conseration Authority, Floor Plan Garden Suite (Independent Building) or Addition to the Main Building with Number of Additional Parking in the Back Yard Would be Possible. Also 100% Commercial Use Would be Possible upon City's Approval. (id:27476)

Property Highlights

MLS® Number
W12485239
Type
Office
Community Name
Streetsville
Land Size
63 x 154 FT
Parking Space Total
2

Building

Building Type
Offices
Square Footage
2238 sqft
Amenities
Public Transit
Fireplace Present
No
Basement Type
Basement Features
Building Heating Type
Forced air
Heating Fuel
Natural gas
Building Cooling Type
Fully air conditioned

Utilities

Water
Municipal water
Utility Sewer
Sanitary sewer

Location