1103 - 4099 Brickstone Mews, Mississauga, Ontario L5B 0G2

Listed for:
$590,000
3 beds
2 baths
Listed 6 days ago
Apartment for rent: 1103 - 4099 Brickstone Mews, Mississauga, Ontario L5B 0G2

View all 19 photos

About

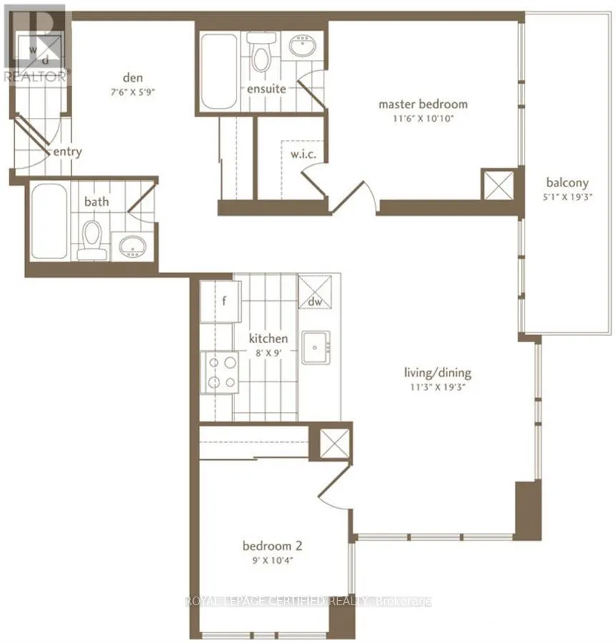
Burnhamthorpe/Confederation ***BRIGHT & SPACIOUS*** 2 Bedroom + DEN & 2 Bathroom - CORNER Unit ** 986 Sqft (884+102 Balcony) ** Birch Model. One Of The LARGEST Corner Units With Gorgeous SOUTH WEST City & Lake Views. Open Concept & FUNCTIONAL Floorplan. WIDE Living/Dining Room OVERLOOKING Kitchen With Engineered HARDWOOD Floors. WALK-OUT To Large BALCONY. MODERN Kitchen With GRANITE Countertop & STAINLESS STEEL Appliances. SPLIT Floorplan With Both Bedrooms On Opposite Side. PRIMARY Bedroom With SOUTH View, WALK-IN Closet & 4Pc ENSUITE Bathroom. GENEROUS Size 2nd Bedroom With WEST View. Separate DEN For OFFICE use Or Occasional GUEST Room. Located In the HEART Of Mississauga DOWNTOWN. Walking Distance To SQUARE ONE Mall, CELEBRATION Square, Living ARTS, Sheridan COLLEGE, Central LIBRARY, Ymca, GO Transit & More. Extra WIDE Parking CLOSE To Elevators. LARGE Locker. State Of The Art AMENITIES Including: GYM, Indoor POOL, Sauna, JACUZZI, MEDIA Room, POKER Room, KIDS Room, GAMES Room, PARTY Room, ROOFTOP Garden, BBQ & More!!! Photos Taken When Unit Was Vacant. FLOORPLAN Attached. (id:27476)

Property Highlights

MLS® Number
W12517016
Type
Single Family
Community Name
City Centre
Maintenance Fee
866.19
Ownership Type
Condominium/Strata
Parking Space Total
1

Building

Building Type
Apartment
Square Footage
800 - 899 sqft
Bathrooms Total
2
Bedrooms Above Ground
2
Bedrooms Total
3
Amenities
Security/Concierge, Exercise Centre, Party Room, Sauna, Storage - Locker Public Transit, Schools
Exterior Finish
Concrete
Fireplace Present
No
Basement Type
None
Basement Features
Building Heating Type
Forced air
Heating Fuel
Natural gas
Building Cooling Type
Central air conditioning

Location

Learn more about this property
Listing provided by:
ROYAL LEPAGE CERTIFIED REALTY
MLS® number:
W12517016
Agent:
Waji Ali
*Indicates required field
Name is required
Email is required
Please enter a valid phone number (e.g., 416-111-1111).

Street Spotlight - For sale