1416 - 4055 Parkside Village Drive, Mississauga, Ontario L5B 0K8

Listed for:
$2,450
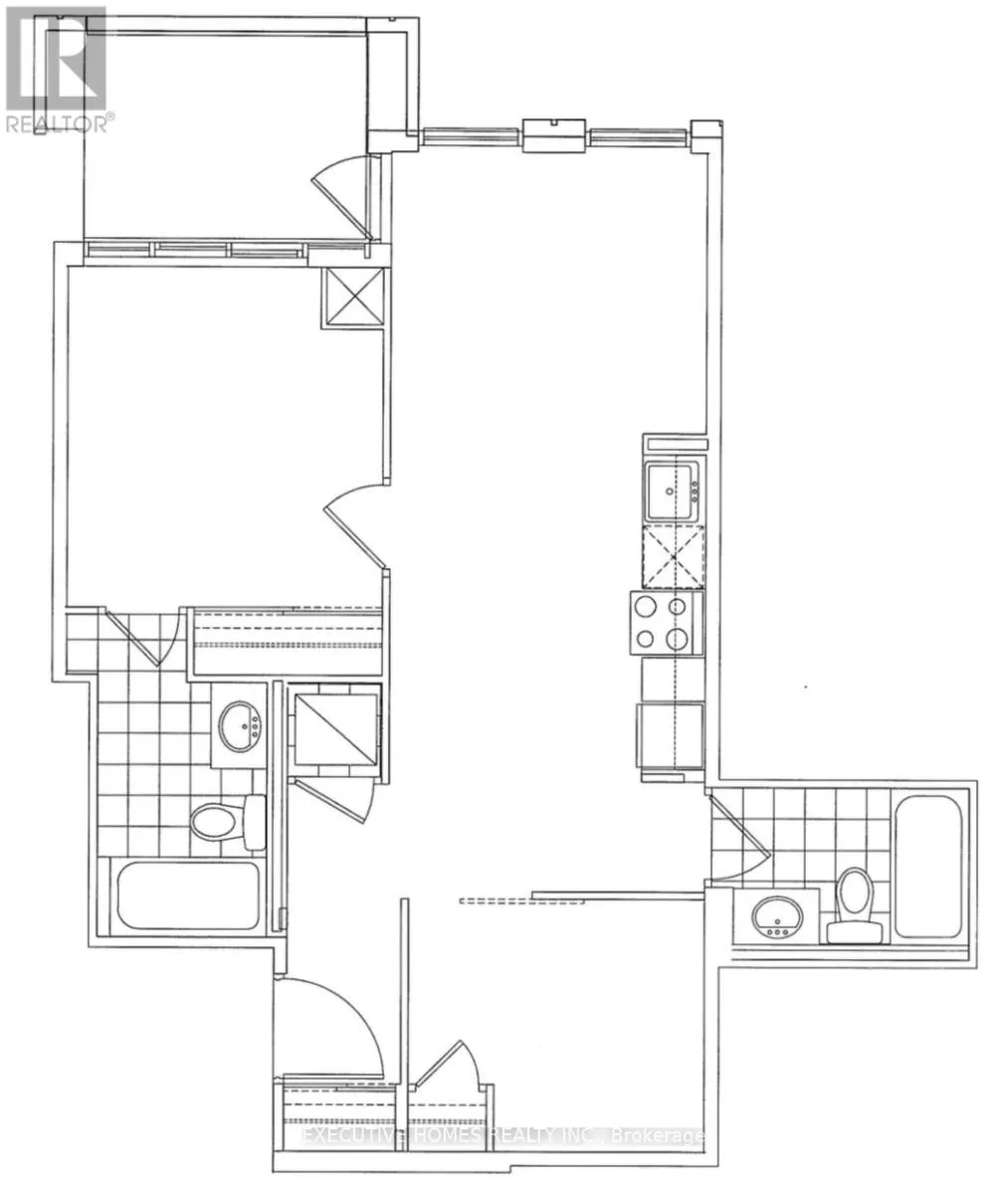
2 beds
2 baths
Listed 31 days ago
Apartment for rent: 1416 - 4055 Parkside Village Drive, Mississauga, Ontario L5B 0K8

View all 12 photos

Learn more about this property
Listing provided by:
EXECUTIVE HOMES REALTY INC.
MLS® number:
W12525470
Agent:
Sarah Gu
*Indicates required field
Name is required
Email is required
Please enter a valid phone number (e.g., 416-111-1111).

About

Burnhamthorpe / Confederation Beautiful 2-bedroom, 2-bath condo in the heart of Mississauga on a highly desired central street. Features an open-concept layout, granite countertops, a cabinet-paneled fridge and dishwasher, full-size appliances, carpet-free floors, and high ceilings. Modern building with top-notch amenities including gym, yoga studio, theatre, media lounge, party room, guest suites, library, kids' play area, outdoor terrace, and 24-hour concierge. Enjoy ensuite laundry, one parking space, and one locker. Walk to Square One, Celebration Square, YMCA, and Central Library. Steps to transit and highways 403/401. Excellent Walk Score of 91-perfect for families, students (id:27476)

Property Highlights

MLS® Number
W12525470
Type
Single Family
Community Name
City Centre
Ownership Type
Condominium/Strata
Parking Space Total
1

Building

Building Type
Apartment
Square Footage
700 - 799 sqft
Bathrooms Total
2
Bedrooms Above Ground
2
Bedrooms Total
2
Amenities
Security/Concierge, Exercise Centre, Recreation Centre, Party Room, Storage - Locker Park, Public Transit, Schools
Exterior Finish
Concrete
Fireplace Present
No
Basement Type
None
Basement Features
Building Heating Type
Forced air
Heating Fuel
Electric
Building Cooling Type
Central air conditioning

Location

Street Spotlight - For rent