3503 - 4015 The Exchange, Mississauga, Ontario L5B 0N9

Listed for:
$2,650
2 beds
2 baths
Listed 12 days ago
Apartment for rent: 3503 - 4015 The Exchange, Mississauga, Ontario L5B 0N9

View all 2 photos

Learn more about this property
Listing provided by:
RE/MAX METROPOLIS REALTY
MLS® number:
W12526942
Agent:
Anil Kumar Sharma
*Indicates required field
Name is required
Email is required
Please enter a valid phone number (e.g., 416-111-1111).

About

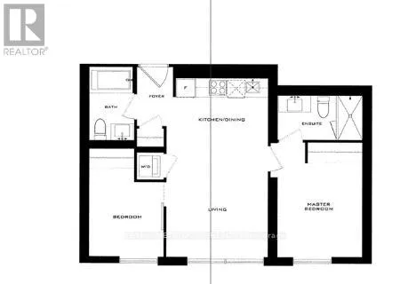
Hurontario St & Burnhamthorpe Rd W The Exchange Tower one , a bright and modern suite offering stunning city views from the 35th floor! This thoughtfully designed 2 bedroom, 2 bath unit features an open-concept layout, floor-to-ceiling windows, and a contemporary kitchen with built-in appliances and quartz countertops. The building offers shared premium amenities including a fitness auditorium with circuit training and cardio equipment, indoor pool, whirlpool spa, and steam room, rooftop terrace, party room, and 24-hour concierge. Conveniently located steps to Square One, transit, and major highways (id:27476)

Property Highlights

MLS® Number
W12526942
Type
Single Family
Community Name
City Centre
Ownership Type
Condominium/Strata

Building

Building Type
Apartment
Square Footage
600 - 699 sqft
Bathrooms Total
2
Bedrooms Above Ground
2
Bedrooms Total
2
Amenities
Exercise Centre, Party Room, Sauna
Exterior Finish
Concrete Block, Steel
Fireplace Present
No
Basement Type
None
Basement Features
Building Heating Type
Forced air
Heating Fuel
Natural gas
Building Cooling Type
Central air conditioning

Location

Street Spotlight - For rent