7100 Walworth Court, Mississauga, Ontario L5N 7L4

Listed for:
$2,600
3 beds
1 baths
Listed 55 days ago
House for rent: 7100 Walworth Court, Mississauga, Ontario L5N 7L4

View all 31 photos

Learn more about this property
Listing provided by:
HOMELIFE/MIRACLE REALTY LTD
MLS® number:
W12544602
Agent:
Vishwa Pankaj Patel
*Indicates required field
Name is required
Email is required
Please enter a valid phone number (e.g., 416-111-1111).

About

Derry Rd/Financial Dr 3 Bedroom legal basement apartment for Lease in the prestigious Levi Creek community in Meadowvale Village. Levi creek PS, David Leeder MS and top ranking St Marceiinius Catholic HS. Extra Deep Lot On A Child Safe Court. Beautifully renovated and well maintained. Large Living, Dining and Kitchen. Fully upgraded kitchen with stainless steel appliances and granite coutertop. Hardwood floor throughout. Steps to nature, trails, Meadowvale Conservation Area, 401,407 & Restaurants.**Garage is NOT for tenant use** Tenant Pay 40% Of All Utilities. 1 Parking is available on the pavement and not on the driveway. (id:27476)

Property Highlights

MLS® Number
W12544602
Type
Single Family
Community Name
Meadowvale Village
Ownership Type
Freehold

Building

Building Type
House
Storeys
2.00
Square Footage
1500 - 2000 sqft
Bathrooms Total
1
Bedrooms Above Ground
3
Bedrooms Total
3
Exterior Finish
Brick
Fireplace Present
Yes
Basement Type
N/A
Basement Features
Separate entrance
Building Heating Type
Forced air
Heating Fuel
Natural gas
Building Cooling Type
Central air conditioning

Utilities

Water
Municipal water
Utility Sewer
Sanitary sewer

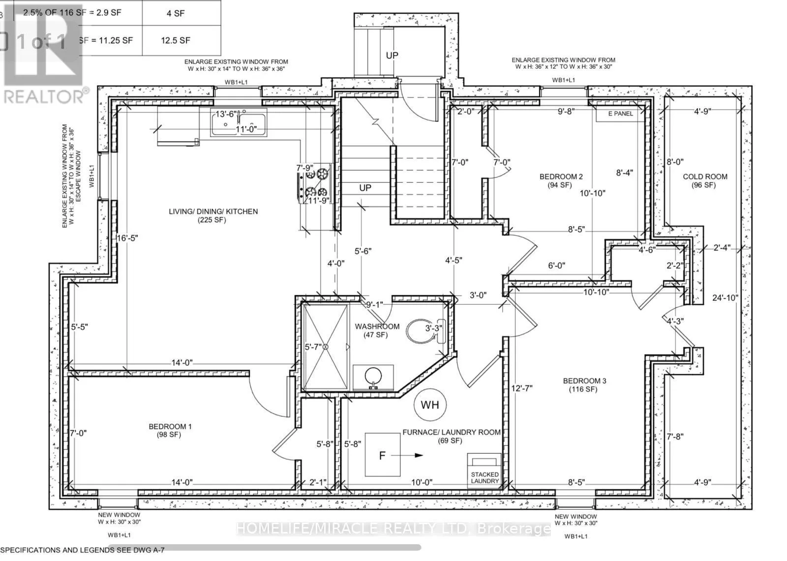
Room Layout

Living room
Basement
5.03 m x 4.26 m
Kitchen
Basement
4.14 m x 3.63 m
Primary Bedroom
Basement
3.87 m x 2.59 m
Bedroom 2
Basement
4.26 m x 2.13 m
Bedroom 3
Basement
3.07 m x 2.99 m

Location

Community Spotlight: Homes For rent in Your Neighborhood