1585 Stavebank Road, Mississauga, Ontario L5G 2V6

Listed for:
$1,499,000
0 beds
0 baths
Listed 16 days ago
1585 Stavebank Road, Mississauga, Ontario L5G 2V6

View all 15 photos

Learn more about this property
Listing provided by:
ROYAL LEPAGE REAL ESTATE SERVICES PHINNEY REAL ESTATE
MLS® number:
W12610788
Agent:
Michael Phinney
*Indicates required field
Name is required
Email is required
Please enter a valid phone number (e.g., 416-111-1111).

About

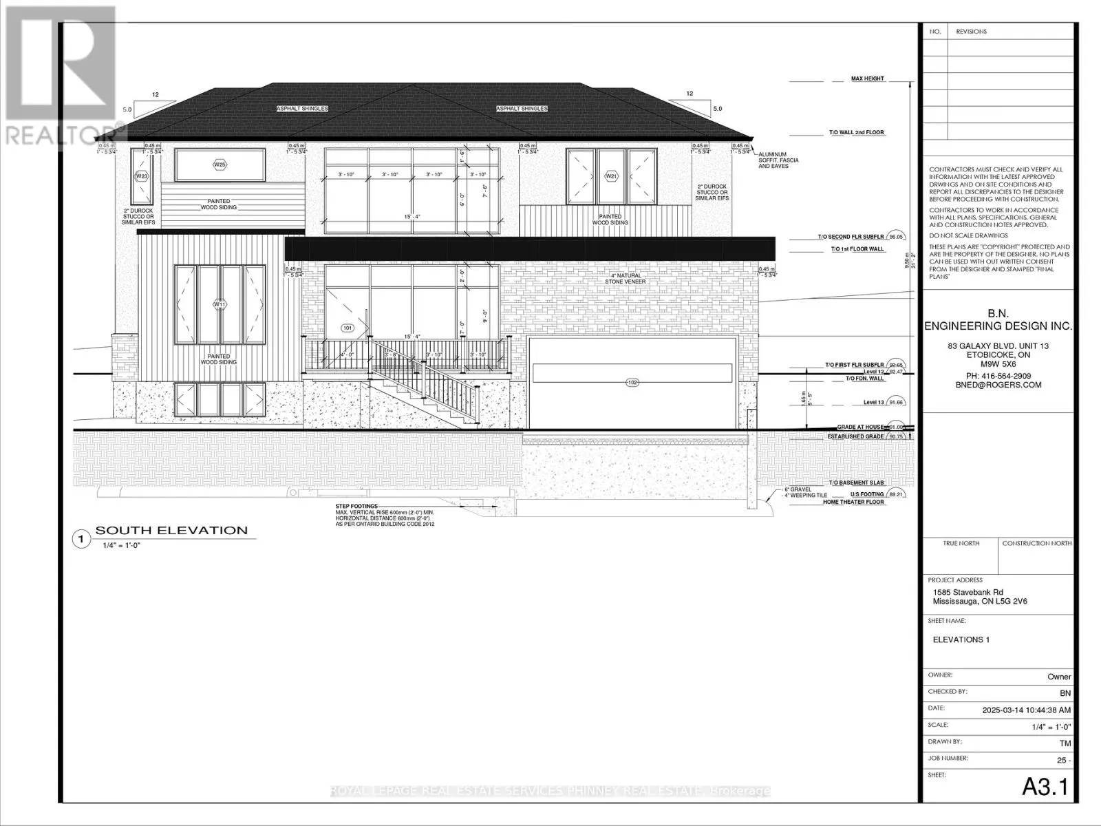
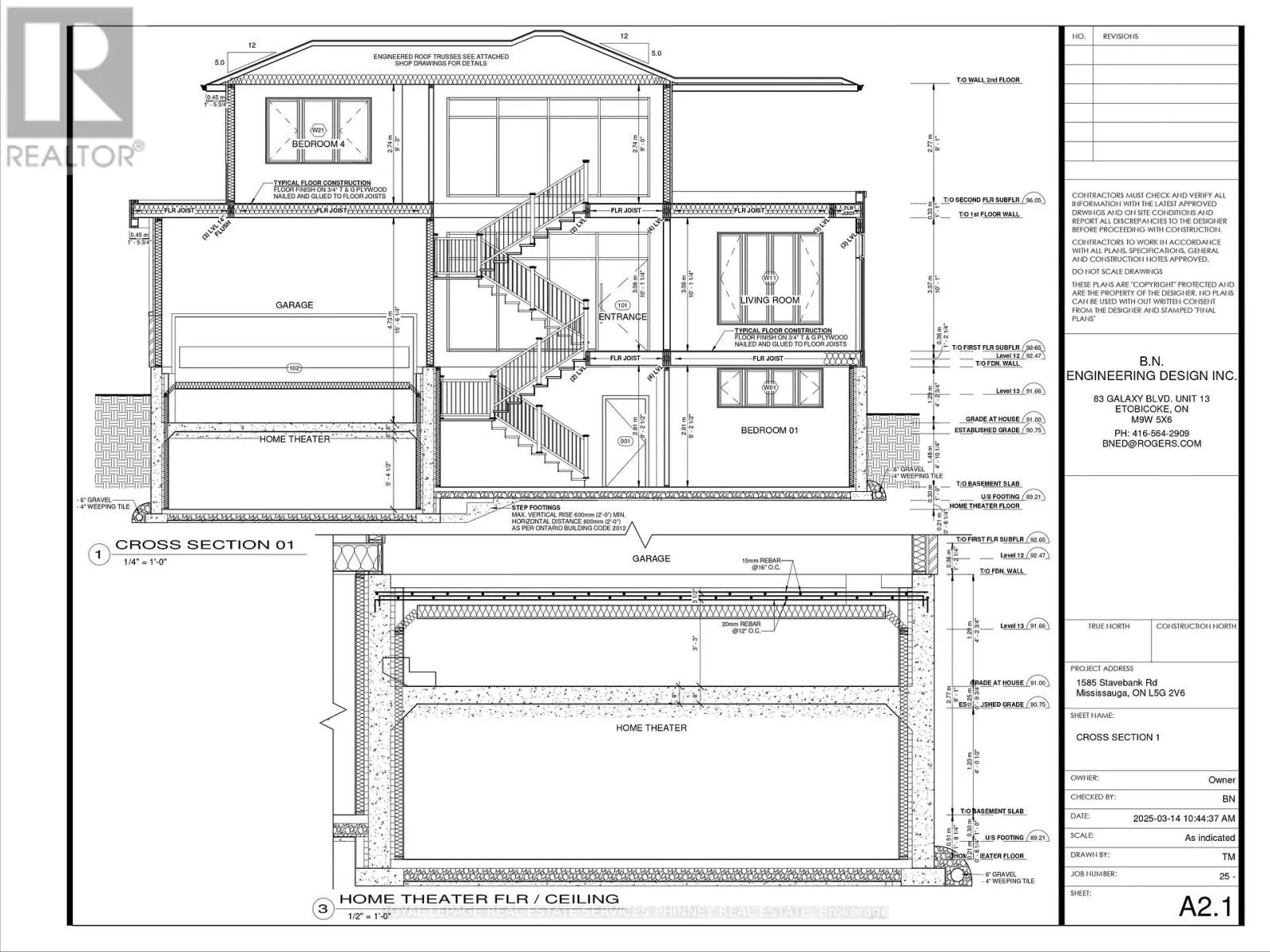
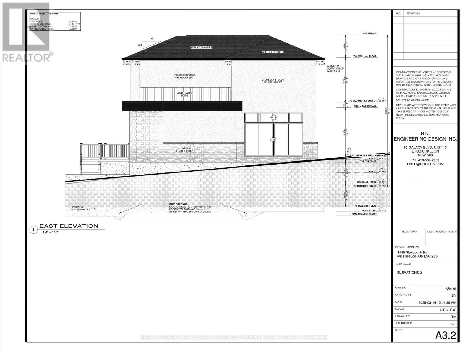
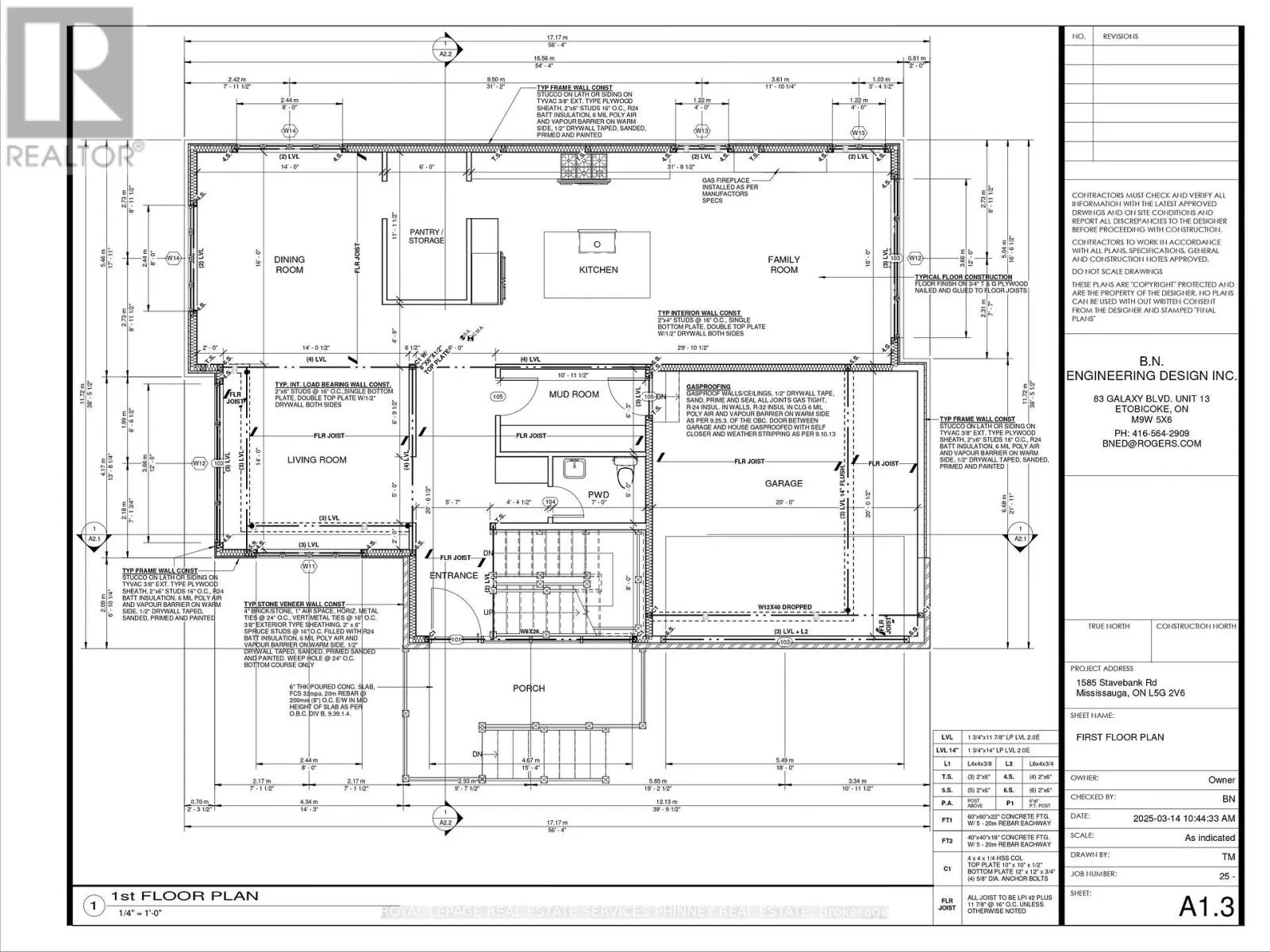
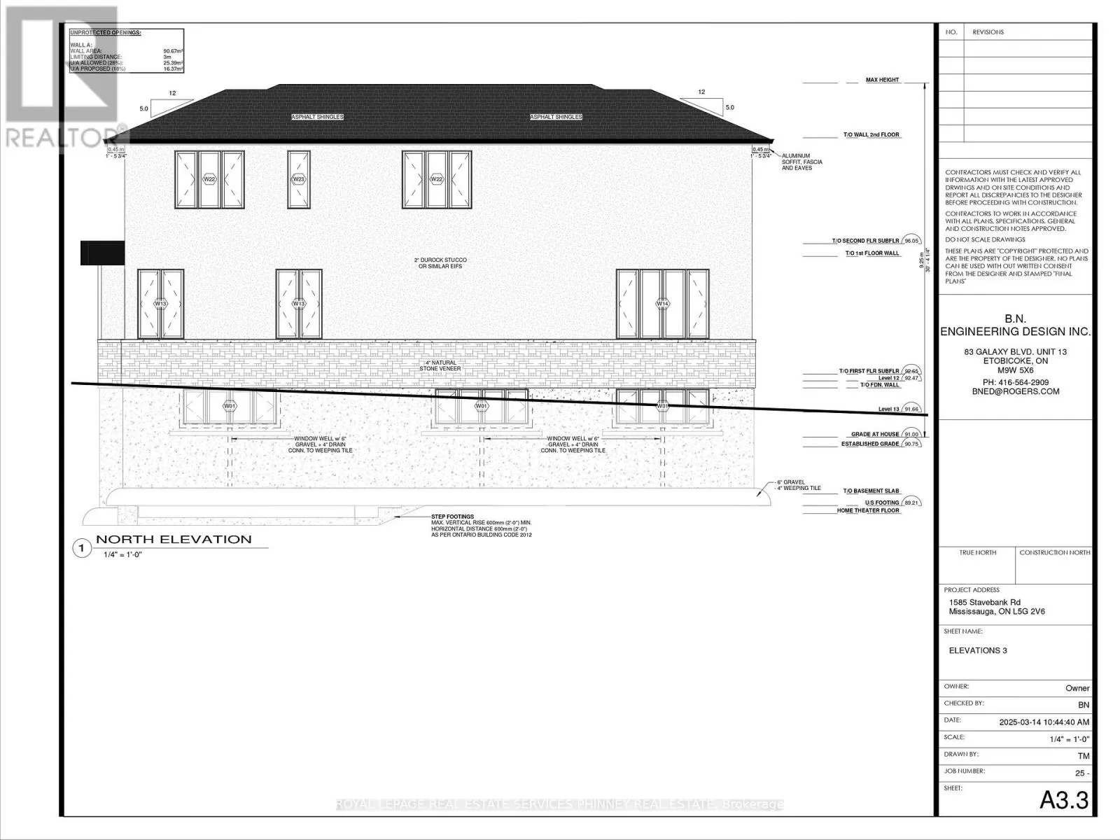
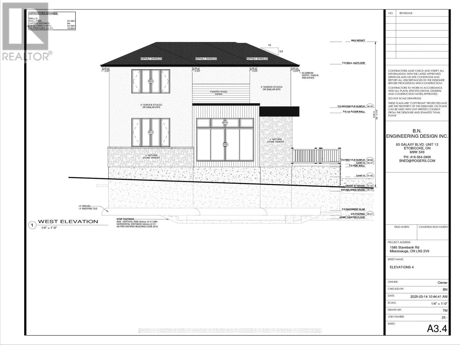
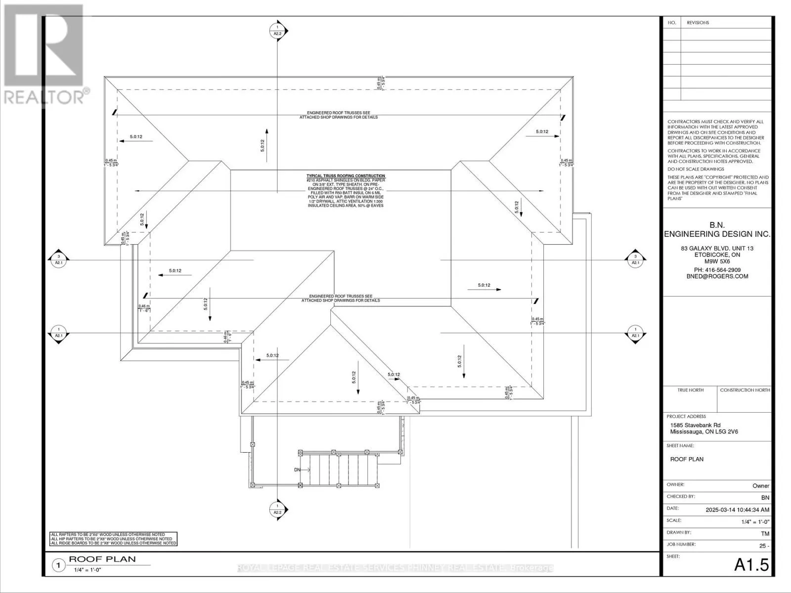
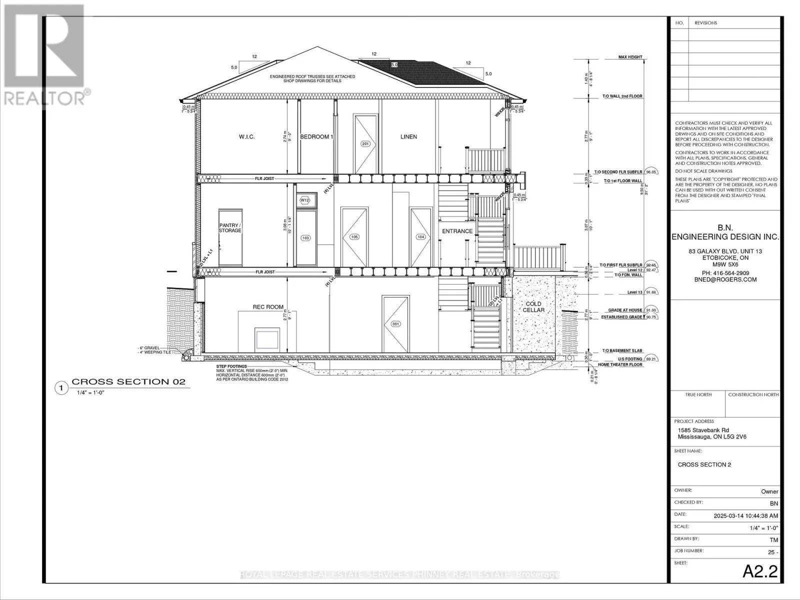
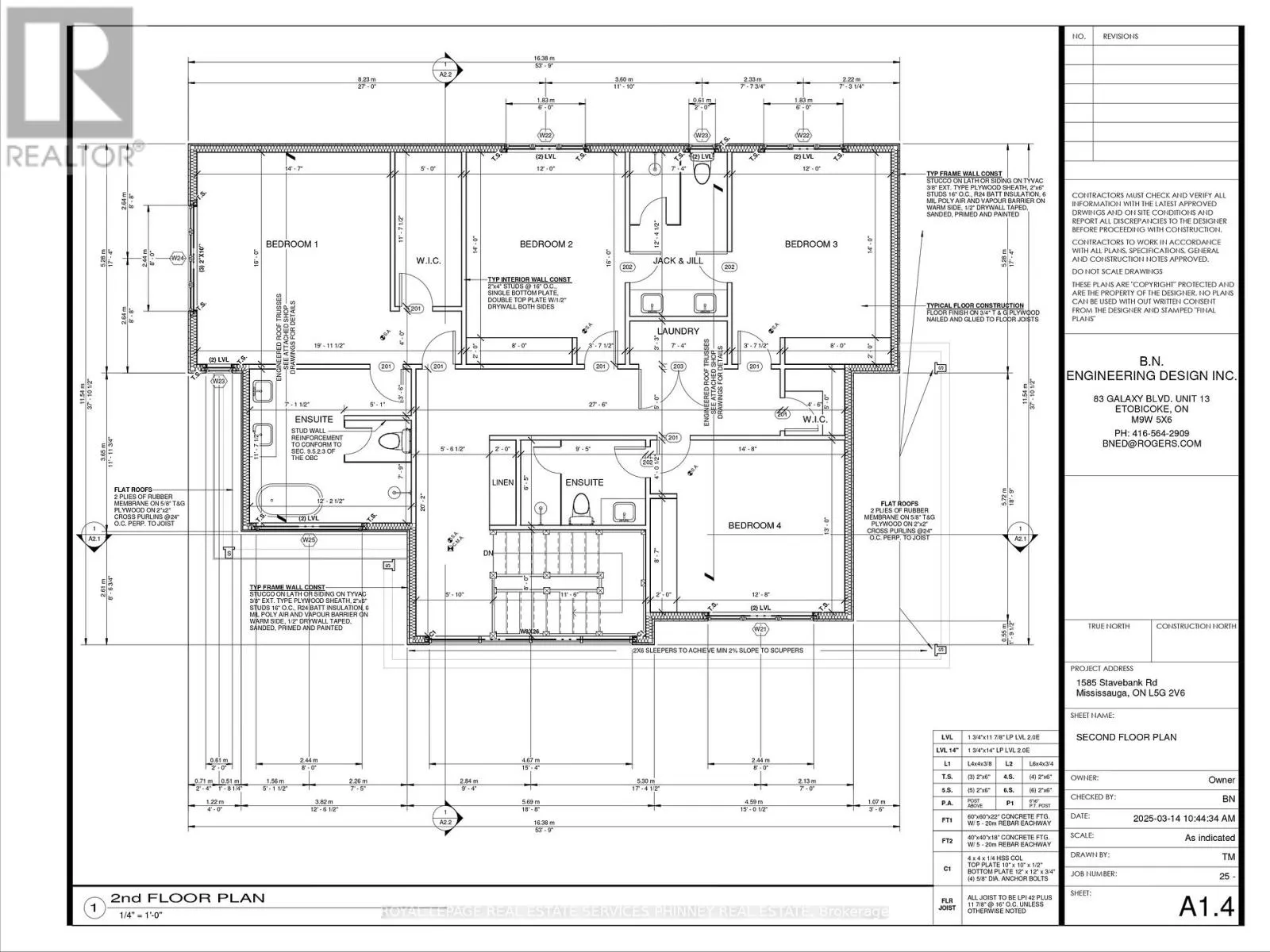
Pinetree Way and Stavebank A fantastic opportunity to live on Stavebank road and build the property of your dreams. Full severance approved with no conditions and full planning consent to build a 4200 sq ft house with driveway facing onto Stavebank road. As a corner estate lot 1585 Stavebank road's land area shows much larger than its actual building lot which has a frontage of 55ftx87ft depth x 116ft rear. Existing engineering, surveys and architects drawings are also available to the purchasers. The lot is offered at this very competitive sale price to reflect recent market valuations and conditions and activity. This estate lot is nestled in the highly sought-after Mineola West neighborhood, just moments from Mississauga's top-rated elementary school, Port Credit, scenic parks, walking trails, and the lake (id:27476)

Property Highlights

MLS® Number
W12610788
Type
Vacant Land
Community Name
Mineola
Land Size
54.49 x 86.61 FT|under 1/2 acre

Building

Amenities
Golf Nearby, Park, Schools
Fireplace Present
No
Basement Type
Basement Features
Building Heating Type
Heating Fuel
Building Cooling Type

Location