723 Lakeshore Road E, Mississauga, Ontario L5G 1J7

Listed for:
$1,245,000
0 beds
0 baths
Listed 60 days ago
Multi-Family for rent: 723 Lakeshore Road E, Mississauga, Ontario L5G 1J7

View all 8 photos

About

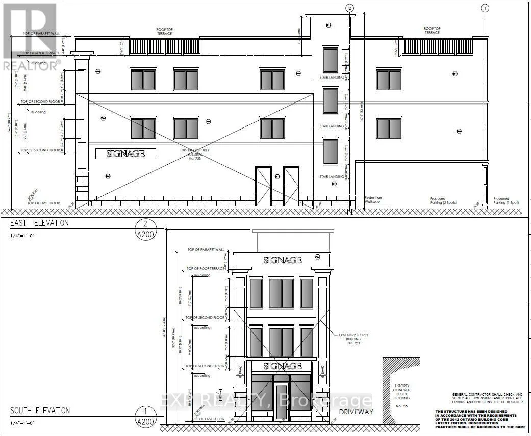
Cross Streets: Cawthra. ** Directions: Cawthra-Lakeshore. Shovel-ready mixed-use redevelopment opportunity along the Lakeshore corridor. The existing two-storey building features one retail unit and one residential apartment, offering holding income with clear upside. The property is fully approved to add a third storey and convert to six residential units plus one retail space. Zoning by-law approval, site plan approval, and architectural drawings are all complete. A new owner can pull permits and proceed directly to construction. Further value is created through reduced development charges from the City of Mississauga, available until November 2026, enhancing overall project economics. (id:27476)

Property Highlights

MLS® Number
W12748344
Type
Multi-family
Community Name
Lakeview
Land Size
2000 ac
Parking Space Total
4

Building

Building Type
Multi-Family
Square Footage
2000 sqft
Fireplace Present
No
Basement Type
Basement Features
Building Heating Type
Forced air
Heating Fuel
Natural gas
Building Cooling Type
Fully air conditioned

Utilities

Water
Municipal water

Location

Learn more about this property
Listing provided by:
EXP REALTY
MLS® number:
W12748344
Agent:
Haven Vincett
*Indicates required field
Name is required
Email is required
Please enter a valid phone number (e.g., 416-111-1111).

Street Spotlight - For sale