178 Breezy Pines Drive, Mississauga, Ontario L5B 1B4

Listed for:
$2,080,000
4 beds
3 baths
Listed 13 days ago
House for rent: 178 Breezy Pines Drive, Mississauga, Ontario L5B 1B4

View all 30 photos

About

Queensway W/Gordon Dr Welcome To This Inviting Home In The Heart Of Gordon Woods Where Space, Comfort, And Nature Come Together. Offering 4 Bedrooms And 3 Bathrooms, There's Plenty Of Room For The Whole Family. Nestled On A Quiet Cul-De-Sac And Surrounded By Mature Trees, This Property Feels Private And Peaceful, Like Your Own Retreat. Set On A Generous 100 X 130 Ft Lot, Its Perfect For Families Or Developers Alike. The Home Features A Separate Dining Room, A Versatile Office Space, And Four Spacious Bedrooms Upstairs Designed For Comfort and a Finished Basement Surrounded By Multi-Million Dollar Homes, The Area Offers A Prestigious Setting. Just Minutes From Square One Shopping Centre, Trillium Hospital, And The QEW, With Easy Access To GO Stations On Both The Milton And Lakeshore Lines, Convenience And Connectivity Are Always Within Reach. (id:27476)

Property Highlights

MLS® Number
W12749616
Type
Single Family
Community Name
Cooksville
Ownership Type
Freehold
Land Size
100 x 130 FT
Parking Space Total
10

Building

Building Type
House
Storeys
2.00
Square Footage
2000 - 2500 sqft
Bathrooms Total
3
Bedrooms Above Ground
4
Bedrooms Total
4
Amenities
Hospital, Place of Worship, Public Transit
Exterior Finish
Brick
Fireplace Present
Yes
Basement Type
N/A (Finished)
Basement Features
Building Heating Type
Forced air
Heating Fuel
Natural gas
Building Cooling Type
Central air conditioning

Utilities

Water
Municipal water
Utility Sewer
Sanitary sewer

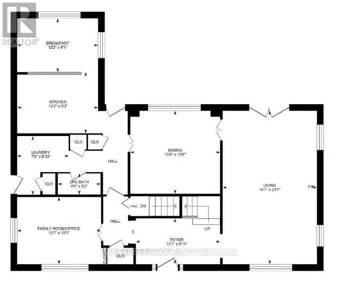
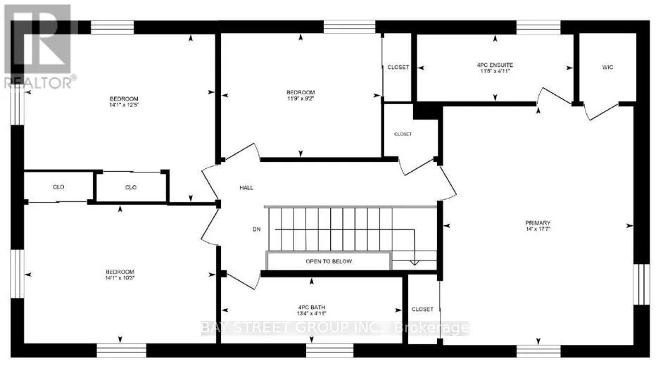
Room Layout

Primary Bedroom
Second level
5.36 m x 4.27 m
Bedroom 2
Second level
3.77 m x 4.29 m
Bedroom 3
Second level
3.11 m x 4.31 m
Bedroom 4
Second level
2.79 m x 3.58 m
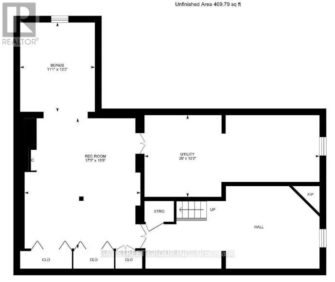
Recreational, Games room
Basement
5.25 m x 5.91 m
Living room
Main level
7.03 m x 4.31 m
Dining room
Main level
3.8 m x 4.11 m
Kitchen
Main level
2.81 m x 3.7 m
Office
Main level
3.08 m x 3.83 m
Laundry room
Main level
2.69 m x 2.35 m

Location

Learn more about this property
Listing provided by:
BAY STREET GROUP INC.
MLS® number:
W12749616
Agent:
Elena Vankevich
*Indicates required field
Name is required
Email is required
Please enter a valid phone number (e.g., 416-111-1111).

Community Spotlight: Homes For sale in Your Neighborhood