1128 Sylvania Drive, Mississauga, Ontario L4Y 2M1

Listed for:
$729,000
4 beds
2 baths
Listed 9 days ago
House for rent: 1128 Sylvania Drive, Mississauga, Ontario L4Y 2M1

View all 36 photos

About

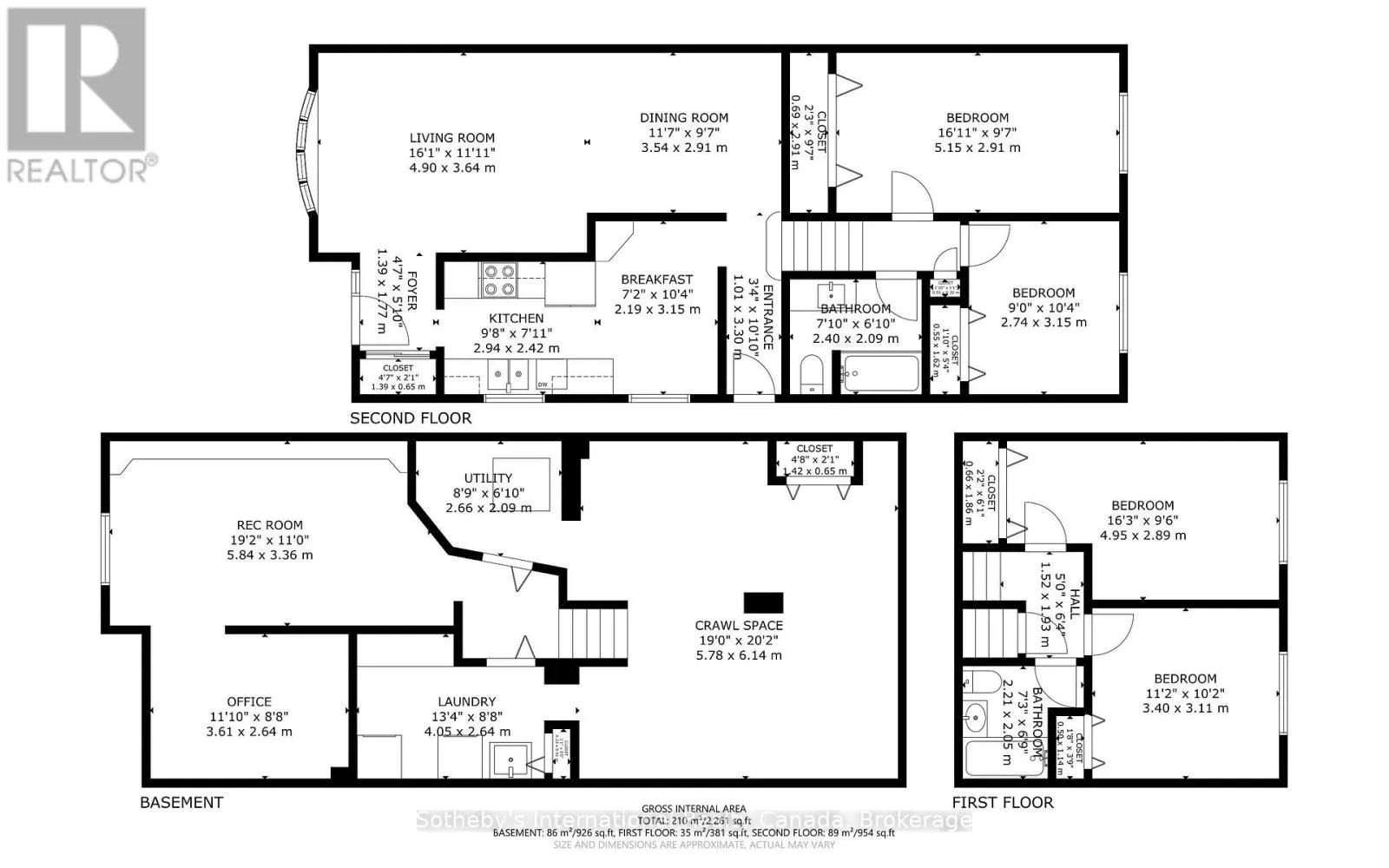
Cross Streets: Bloor Street & Ivernia Road. ** Directions: Bloor Street, heading east. Turn onto Ivernia Road. Left onto Sylvania Drive. Tucked into the desirable, mature, Applewood neighbourhood on a wide 48 x 122 foot lot, this well maintained, brick semi-detached backsplit offers an incredible opportunity to create a home that truly reflects your vision. With 4 bedrooms, 2 full bathrooms, and over 1,300 sq ft above grade plus a partially finished basement, the layout provides generous living space across multiple levels, ideal for growing families, multi-generational living, or those needing room to work from home. The main floor features a bright living and dining area with large windows, an eat-in kitchen, and a functional flow, while the upper and lower levels offer spacious bedrooms and full baths. The basement includes a large recreation room with an abundance of built in bookshelves perfect for a home library, office, laundry, and ample storage space. Outside, the deep backyard and private driveway with parking for three vehicles add everyday practicality. Located steps from parks, schools, transit, trails, shopping, and everyday amenities, this is a rare chance to get into a highly desirable Mississauga community. (id:27476)

Property Highlights

MLS® Number
W12765666
Type
Single Family
Community Name
Applewood
Ownership Type
Freehold
Land Size
41 x 122 FT
Parking Space Total
3

Building

Building Type
House
Square Footage
1100 - 1500 sqft
Bathrooms Total
2
Bedrooms Above Ground
4
Bedrooms Total
4
Amenities
Place of Worship, Schools, Park
Exterior Finish
Brick Facing, Brick Veneer
Fireplace Present
No
Basement Type
Full (Partially finished)
Basement Features
Building Heating Type
Forced air
Heating Fuel
Natural gas
Building Cooling Type
Central air conditioning

Utilities

Water
Municipal water
Utility Sewer
Sanitary sewer

Room Layout

Foyer
Second level
1.39 m x 1.77 m
Kitchen
Second level
2.94 m x 2.42 m
Eating area
Second level
2.19 m x 3.15 m
Dining room
Second level
3.54 m x 2.91 m
Living room
Second level
4.9 m x 3.64 m
Bathroom
Second level
2.4 m x 2.09 m
Bedroom
Second level
2.74 m x 3.15 m
Bedroom
Second level
5.15 m x 2.91 m
Recreational, Games room
Basement
5.84 m x 3.36 m
Office
Basement
3.61 m x 2.64 m
Laundry room
Basement
4.05 m x 2.64 m
Utility room
Basement
2.66 m x 2.09 m
Bedroom
Main level
4.95 m x 2.89 m
Bathroom
Main level
2.21 m x 2.05 m
Bedroom
Main level
3.4 m x 3.11 m

Location

Learn more about this property
Listing provided by:
Sotheby's International Realty Canada, Brokerage
MLS® number:
W12765666
Agent:
Zack Haight
*Indicates required field
Name is required
Email is required
Please enter a valid phone number (e.g., 416-111-1111).

Community Spotlight: Homes For sale in Your Neighborhood