10a Benson Avenue, Mississauga, Ontario L5H 2P2

Listed for:
$1
5 beds
5 baths
Listed 3 days ago
House for rent: 10a Benson Avenue, Mississauga, Ontario L5H 2P2

View all 50 photos

About

Mississauga Rd/Lakeshore Rd Experience refined living in this newly built family home just steps from Lake Ontario and vibrant Port Credit. Designed with convenience in mind, the residence features a custom-built elevator providing access from the basement to the third floor. Oversized windows and a skylight flood the home with natural light, highlighting the open-concept design. The chef-inspired kitchen is a true centerpiece, complete with a spacious island, premium Decor appliances, and seamless flow into a bright great room featuring custom built-in shelving and an elegant electric fireplace. The private fenced backyard offers the perfect setting for relaxing or entertaining. The primary suite is a retreat of its own with a walk-through closet, spa-like ensuite with heated floors, and a dream soaker tub. Each of the four bedrooms includes its own ensuite and generous closet space. A full-sized laundry room on the second floor adds convenience to everyday living. The fully finished basement provides flexibility with an additional bedroom or office, guest bathroom, bar, and a spacious recreation room with a separate entrance. Heated floors in the powder room and foyer, engineered hardwood throughout, and high-end European/Italian tiles elevate the homes sophisticated style. An EV charger is also included. (id:27476)

Property Highlights

MLS® Number
W12782916
Type
Single Family
Community Name
Port Credit
Ownership Type
Freehold
Land Size
28 x 95 FT
Parking Space Total
3

Building

Building Type
House
Storeys
3.00
Square Footage
3000 - 3500 sqft
Bathrooms Total
5
Bedrooms Above Ground
4
Bedrooms Total
5
Exterior Finish
Brick, Stone
Fireplace Present
Yes
Basement Type
N/A
Basement Features
Separate entrance
Building Heating Type
Forced air
Heating Fuel
Natural gas
Building Cooling Type
Central air conditioning

Utilities

Water
Municipal water
Utility Sewer
Sanitary sewer

Room Layout

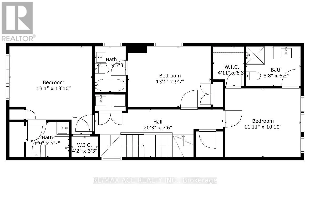
Bedroom
Second level
4.17 m x 3.93 m
Bedroom 2
Second level
2.89 m x 3.94 m
Bedroom 3
Second level
3.35 m x 3.69 m
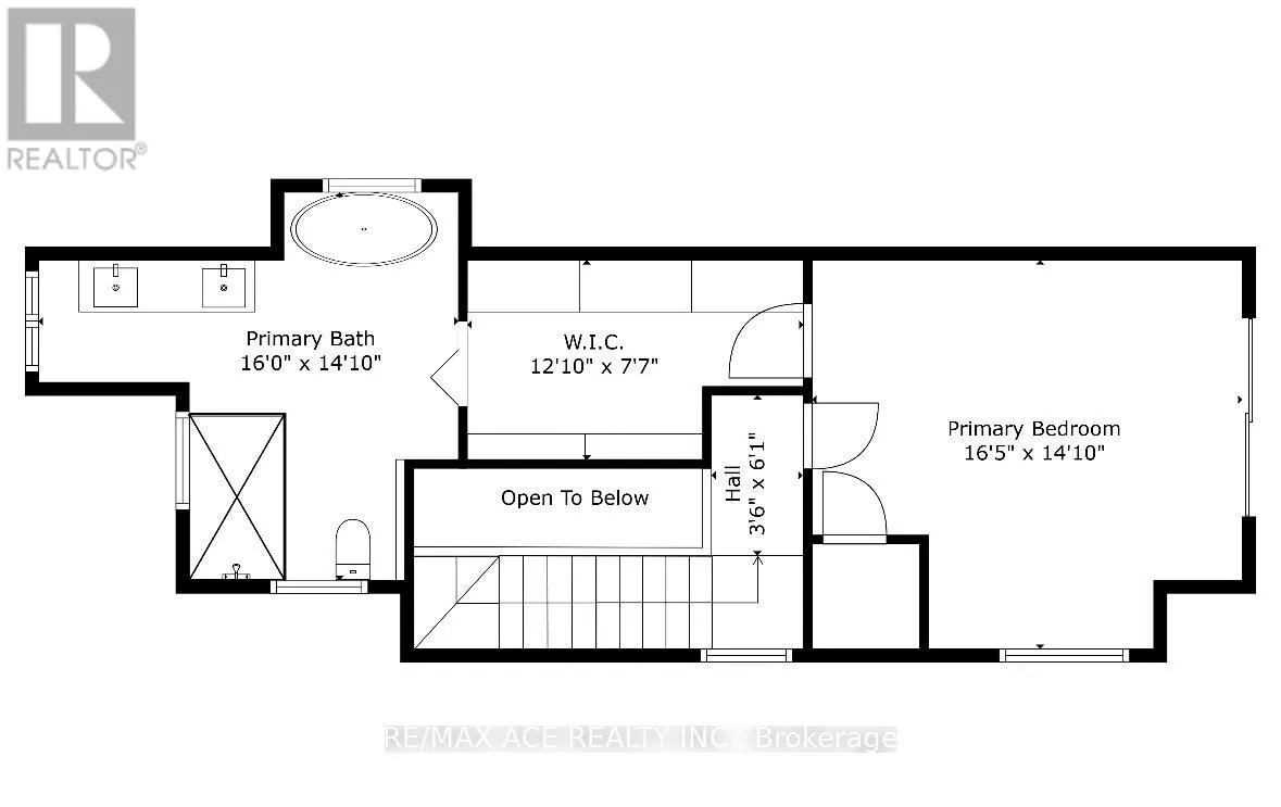
Primary Bedroom
Third level
4.58 m x 5.01 m
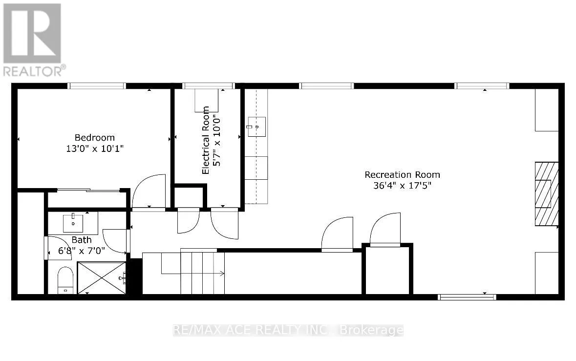
Office
Basement
3.9 m x 2.94 m
Recreational, Games room
Basement
6.33 m x 5.18 m
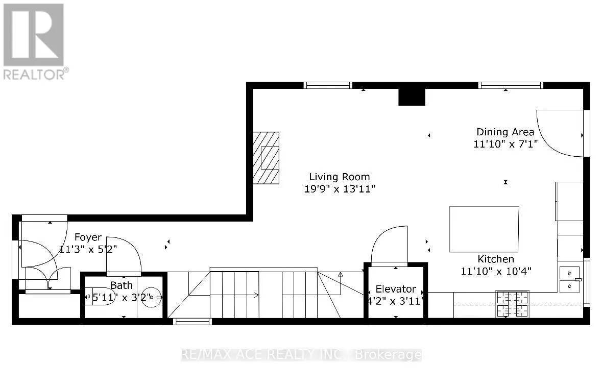
Living room
Main level
4.31 m x 4.09 m
Dining room
Main level
2.14 m x 3.67 m
Kitchen
Main level
3.19 m x 3.67 m

Location

Learn more about this property
Listing provided by:
RE/MAX ACE REALTY INC.
MLS® number:
W12782916
Agent:
Muska Waheed
*Indicates required field
Name is required
Email is required
Please enter a valid phone number (e.g., 416-111-1111).