2 - 1591 South Parade Court, Mississauga, Ontario L5M 6G1

Listed for:
$735,000
3 beds
2 baths
Listed 13 days ago
Row / Townhouse for rent: 2 - 1591 South Parade Court, Mississauga, Ontario L5M 6G1

View all 32 photos

About

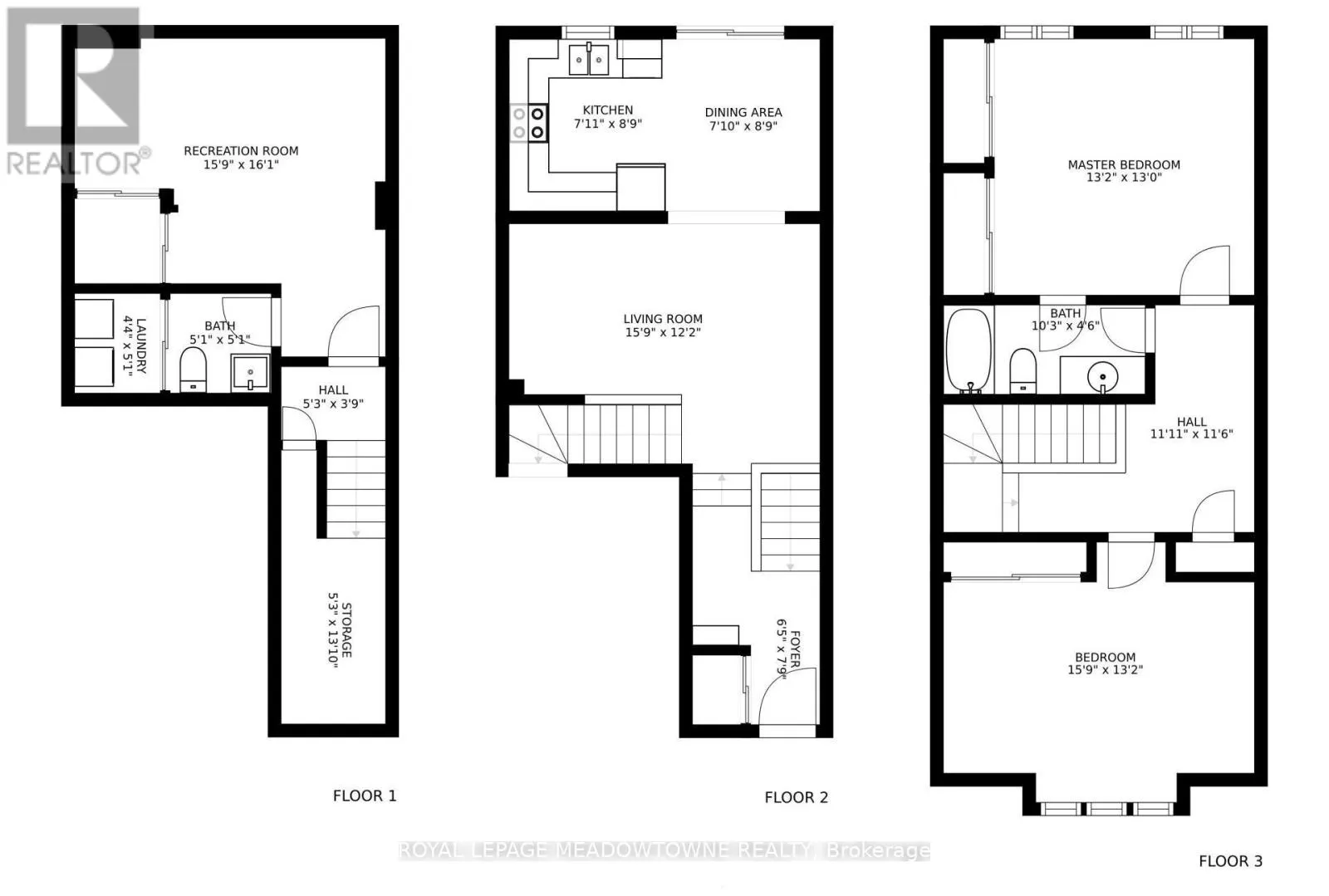
Creditview Rd & Eglinton Ave W Welcome to this beautiful, freshly painted townhouse in a sought-after Mississauga pocket! Set at the end of a quiet court, this home is perfectly located minutes from Hwys 403/401, Square One, and the GO Station. The main floor features a open-concept living room and a bright dining room with an overview of the backyard. The modern kitchen includes SS appliances, sleek quartz countertops, and a stylish backsplash. This layout features two absolutely massive, king-sized bedrooms-the 2nd bedroom is as large as the Primary! Plus, a versatile flex space easily converts to a 3rd bedroom, office, or gym. The garage Includes a Level 2 EV charger. Enjoy a finished rec room and a clever storage loft in the garage. Turn-key living at its finest! Relax under your private gazebo or enjoy the neighbourhood park just paces away. Steps to visitor parking. (id:27476)

Property Highlights

MLS® Number
W12795524
Type
Single Family
Community Name
East Credit
Maintenance Fee
409.41
Ownership Type
Condominium/Strata
Parking Space Total
2

Building

Building Type
Row / Townhouse
Storeys
2.00
Square Footage
1200 - 1399 sqft
Bathrooms Total
2
Bedrooms Above Ground
2
Bedrooms Total
3
Exterior Finish
Brick, Shingles
Fireplace Present
No
Basement Type
N/A (Finished)
Basement Features
Building Heating Type
Forced air
Heating Fuel
Natural gas
Building Cooling Type
Central air conditioning

Location

Learn more about this property
Listing provided by:
ROYAL LEPAGE MEADOWTOWNE REALTY
MLS® number:
W12795524
Agent:
Emerson Vivas Zambrano
*Indicates required field
Name is required
Email is required
Please enter a valid phone number (e.g., 416-111-1111).