3066 Patrick Crescent, Mississauga, Ontario L5N 3G5

Listed for:
$859,000
5 beds
2 baths
Listed 39 days ago
House for rent: 3066 Patrick Crescent, Mississauga, Ontario L5N 3G5

View all 19 photos

About

Winston Churchill & Battleford Discover This Lovely 3 + 2 Beds/2 Baths Bungalow That Complements Your Ideal Lifestyle! Featuring A Fully Finished Basement W/Separate Entrance & 2 Additional Beds /1 Bath Ideal As An In-Law Suite Or For Other Creative Uses Whether For Entertaining, A Home Office, Or Additional Living Space. The Main Floor Open-Concept Living And Dining Area Boasts Beautiful Hardwood Floors, Creating A Warm And Inviting Atmosphere. Walk-Out From The Main Bedroom To Your Own Private Oasis-A Stunning Backyard Equipped With A Hot Tub And Gazebo, Ideal For Fun And Relaxation With Family And Friends. Conveniently Located Within Walking Distance To Parks, Schools And Meadowvale Town Centre Easy Access To Everything Groceries, Restaurants, Shopping , Places Of Worship And Major Highways 401, 403, And 407 So Commuting Is A Breeze. 2 Stoves, 2 Fridges. Washer/ Dryer Combo on Main Kitchen + Washer/ Dryer in Basement. All Window Coverings & Light Fixtures, Gazebo, Hot Tub and Backyard shed! New Hot Water Tank, Rangehood & Backsplash. New A/C 2025 Owned, New Furnace 2025 Owned, Washer/dryer under warranty until 2029 (id:27476)

Property Highlights

MLS® Number
W12809256
Type
Single Family
Community Name
Meadowvale
Ownership Type
Freehold
Land Size
30.1 x 125.2 FT
Parking Space Total
3

Building

Building Type
House
Storeys
1.00
Square Footage
700 - 1100 sqft
Bathrooms Total
2
Bedrooms Above Ground
3
Bedrooms Total
5
Exterior Finish
Brick, Steel
Fireplace Present
No
Basement Type
N/A (Finished), N/A
Basement Features
Separate entrance
Building Heating Type
Forced air
Heating Fuel
Natural gas
Building Cooling Type
Central air conditioning

Utilities

Water
Municipal water
Utility Sewer
Sanitary sewer

Room Layout

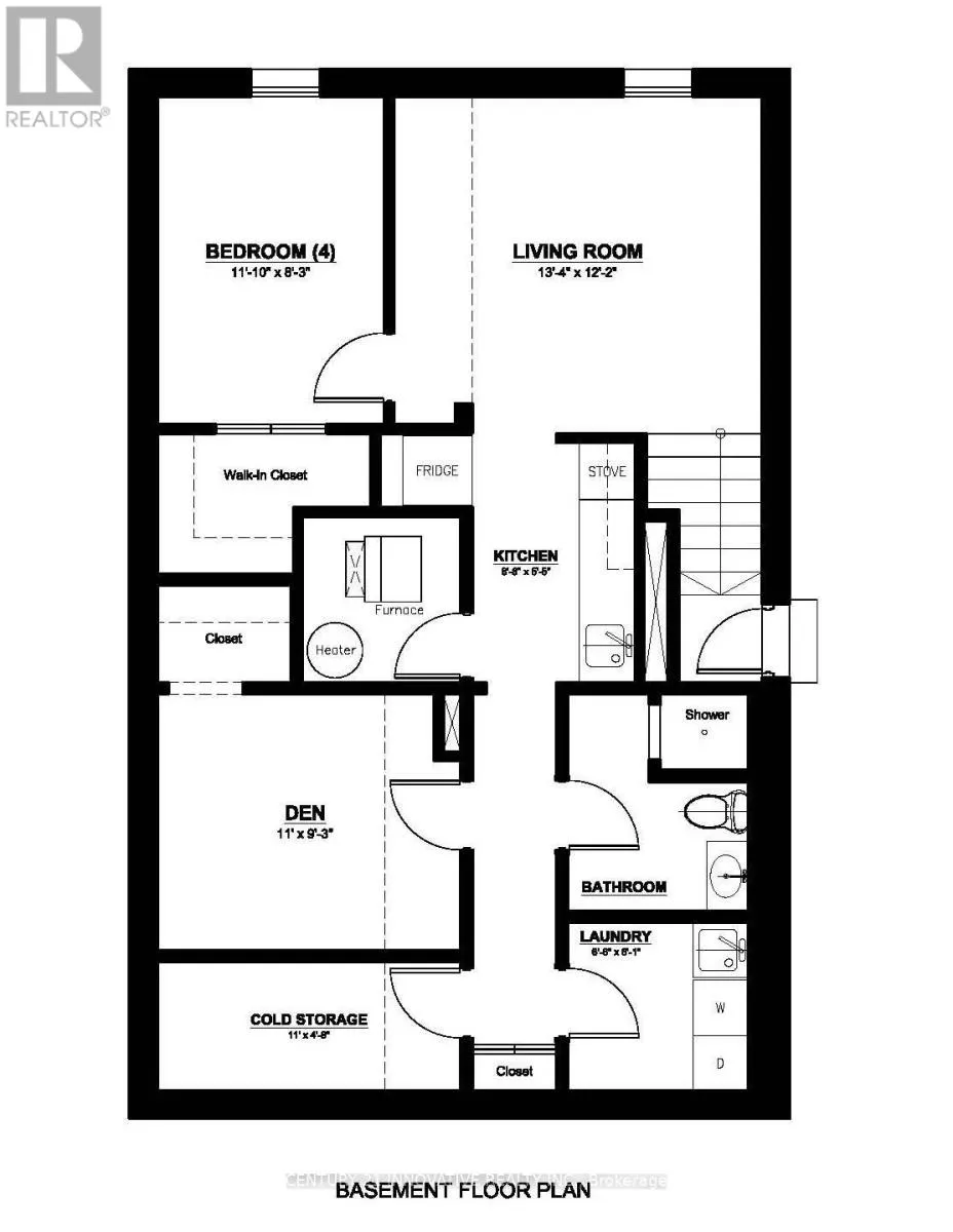
Cold room
Basement
Measurements not available
Bedroom 4
Basement
3.6 m x 2.51 m
Den
Basement
3.35 m x 2.82 m
Living room
Basement
4.06 m x 3.71 m
Kitchen
Basement
Measurements not available
Laundry room
Basement
Measurements not available
Living room
Main level
4.95 m x 4.62 m
Kitchen
Main level
3.02 m x 2.69 m
Bedroom
Main level
3.35 m x 3.22 m
Bedroom 2
Main level
3.4 m x 2.69 m
Bedroom 3
Main level
3.35 m x 2.64 m

Location

Learn more about this property
Listing provided by:
CENTURY 21 INNOVATIVE REALTY INC.
MLS® number:
W12809256
Agent:
Ibrahim Zaki
*Indicates required field
Name is required
Email is required
Please enter a valid phone number (e.g., 416-111-1111).