6 & 7 - 1935 Drew Road, Mississauga, Ontario L5S 1M7

Listed for:
$15
0 beds
3 baths
Listed 17 days ago
Multi-Tenant Industrial for rent: 6 & 7 - 1935 Drew Road, Mississauga, Ontario L5S 1M7

View all 40 photos

About

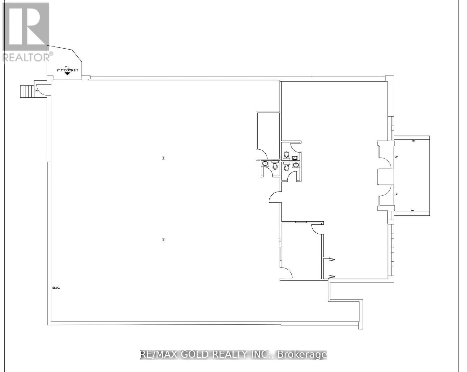
Derry Rd & Bramalea Rd Excellent Location In Mississauga! Beautiful, Bright & Spacious Showroom, Great Exposure Fronting on Bramalea Road!!Clean Industrial Unit and Well-Managed Building, 6143 Sqft One Truck-Level Shipping Door & One Shipping Man Door in the Back. Unit has a Office, Showroom, three Washrooms and the industrial space, Close to Pearson International Airport, Easily Accessible To All Major Highways 410, 407, 427, and 401. New Renovations To The Exterior Of The Building. Easily Accessible, Steps Away From Public Transportation And Various Amenities within minutes. The property at the intersection of two major roads (Bramalea Rd & Drew Rd). (id:27476)

Property Highlights

MLS® Number
W12844366
Type
Industrial
Community Name
Northeast

Building

Building Type
Multi-Tenant Industrial
Square Footage
6143 sqft
Bathrooms Total
3
Amenities
Highway, Public Transit
Fireplace Present
No
Basement Type
Basement Features
Building Heating Type
Forced air
Heating Fuel
Natural gas
Building Cooling Type
Partially air conditioned

Utilities

Water
Municipal water

Location

Learn more about this property
Listing provided by:
RE/MAX GOLD REALTY INC.
MLS® number:
W12844366
Agent:
Baljinder Sra
*Indicates required field
Name is required
Email is required
Please enter a valid phone number (e.g., 416-111-1111).