314 - 5035 Harvard Road, Mississauga, Ontario L5M 0W7

Listed for:
$2,700
2 beds
2 baths
Listed 27 days ago
Apartment for rent: 314 - 5035 Harvard Road, Mississauga, Ontario L5M 0W7

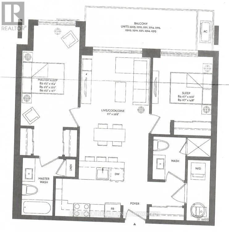
View all 17 photos

About

Cross Streets: Eglington/WinstonChurchill. ** Directions: NW Corner of Eglinton & WinstonChurchill; Driveway accessible from Eglinton. A meticulously maintained, rare offering with 2 Parking spaces + Locker included with this 2 bed + 2 bath fully upgraded suite with a sunny South exposure and preferred, quiet garden view. This low-rise boutique condo is located in Churchill Meadows, footsteps from public transit, Erin Mills Town Centre, Credit Valley Hospital, top-rated schools, community centre, public library, grocery, restaurants, and more. This bright and spacious unit features a thoughtfully designed split bedroom layout for maximum privacy, and open-concept living/dining/kitchen space. Modern finishes include engineered hardwood floors throughout, high ceilings, large windows, granite countertops, soft-close cabinetry, and custom window coverings. The kitchen, bathrooms and closets are well equipped with maximum storage and organization. Step out onto your large private balcony-one of the few in the area that allows personal BBQs. The suite also features an ensuite washer and dryer for added convenience. Residents enjoy access to a well-maintained, quiet community with a contemporary design and friendly atmosphere. Freshly cleaned and move-in ready!! (id:27476)

Property Highlights

MLS® Number
W12848228
Type
Single Family
Community Name
Churchill Meadows
Ownership Type
Condominium/Strata
Parking Space Total
2

Building

Building Type
Apartment
Square Footage
900 - 999 sqft
Bathrooms Total
2
Bedrooms Above Ground
2
Bedrooms Total
2
Amenities
Storage - Locker
Exterior Finish
Brick
Fireplace Present
No
Basement Type
None
Basement Features
Building Heating Type
Forced air
Heating Fuel
Natural gas
Building Cooling Type
Central air conditioning

Location

Learn more about this property
Listing provided by:
WEB MAX REALTY INC.
MLS® number:
W12848228
Agent:
Pat Greco
*Indicates required field
Name is required
Email is required
Please enter a valid phone number (e.g., 416-111-1111).